Attraktive Immobilie in Planung. Mietkauf möglich. Machen Sie den Check: Jetzt prüfen ob Sie Miet-Kauf berechtigt sind!
Raus aus der Alt-Immobilie - Rein in die eigenen vier Wände
- Ohne Eigenkapital
- Trotz Schulden
Vereinbaren Sie jetzt Ihren Termin mit unseren Miet-Kauf-Spezialisten!
Preiswerte Mietkaufimmobilie abzugeben. Altschulden kein Hindernis.
34253 Lohfelden
Die vollständige Adresse der Immobilie erhalten Sie vom Anbieter.
Auf Karte anzeigen
Die vollständige Adresse der Immobilie erhalten Sie vom Anbieter.
Infos
| Haustyp | Einfamilienhaus |
|---|---|
| Wohnfläche ca. | 140 m2 |
| Nutzfläche | 0 m2 |
| Grundstücksfläche | 650 m2 |
| Zimmer | 5 |
| Schlafzimmer | 3 |
| Badezimmer | 1 |
| Anzahl Garage/Stellplatz | 1 |
Kosten
| Kaltmiete |
1.490 € |
|---|---|
| Nebenkosten | keine Angabe |
| Heizkosten | keine Angabe |
| Gesamtmiete | 1.490 € |
Weiter mieten oder doch kaufen?
Wer in Miete wohnt, überweist dem Vermieter im Laufe der Jahre hohe Summen, die sich
auch in die eigenen vier Wände investieren lassen könnten.
Bausubstanz & Energieausweis
| Baujahr | 2026 |
|---|---|
| Qualität der Austattung | Gehoben |
| Heizungsart | Wärmepumpe |
Beschreibung des Objekts
Ausstattung
Jedes unserer Fertighäuser wird speziell für Sie geplant und ist perfekt auf die Anforderungen und Vorgaben Ihres Bauvorhabens angepasst – Bebauungspläne, eine besondere Grundstückslage und die gewünschten Eigenleistungen werden im Detail geprüft und berücksichtigt.
Jedes Schwabenhaus verfügt standardmäßig über:
- Doppel-Wärmepumpe mit 5 in 1-System: Heizen, Kühlen, Lüften, Luftreinigung und Warmwasser
- Zentrale kontrollierte Wohnraum Be- und Entlüftung mit Wärmerückgewinnung
- 3-Scheiben-Wärmeschutzglas
- elektrische Rollladensteuerung*
- Smart-Home-Technologie: Intelligentes Gebäude-Management für die Licht- und Rollladen-Steuerung*
- Schwimmender Estrich mit Wärmedämmung
- 10 Jahre Gewährleistung nach BGB (üblich: 5 Jahre) und 30 Jahre Garantie auf die Grundkonstruktion
*In Verbindung mit dem Technologie + Komfort-Paket „Blue-Edition“
Diesem Angebot liegt die beliebte Schwabenhaus-Ausbaustufe "Fast-Vollendet" zugrunde. Diese kann entsprechend Ihrer geplanten Eigenleistungen angepasst werden.
Lage
.
Sonstige Angaben
Vereinbaren Sie einen persönlichen Beratungstermin, um über unser Miet-Kauf-Modell zu sprechen und Ihren Haustraum umzusetzen.
Bitte beachten Sie, dass die dargestellten Bilder und Grundrisse nur beispielhaft sind und unter Umständen Sonderbauteile enthalten, die nicht im aufgerufenen Preis inkludiert sind.
Haben Sie außerdem Verständnis dafür, dass erst nach dem persönlichen Gespräch weitere Details zu dem angebotenen Grundstück bekanntgegeben werden und dass nur vollständige Anfragen bearbeitet werden können.
Anbauteile, Carport, Garage und Keller können Extras sein, die als Sonderausstattung angeboten werden. Abbildungen, Grundrisse und Flächenangaben sind beispielhaft und können Extras zeigen. Flächenangaben nach DIN 277.
Profitieren Sie jetzt von der Schwabenhaus Online Beratung und verwirklichen Sie Ihr Traumhaus https://www.schwabenhaus.de/anmeldung-hausbau-beratung-online/
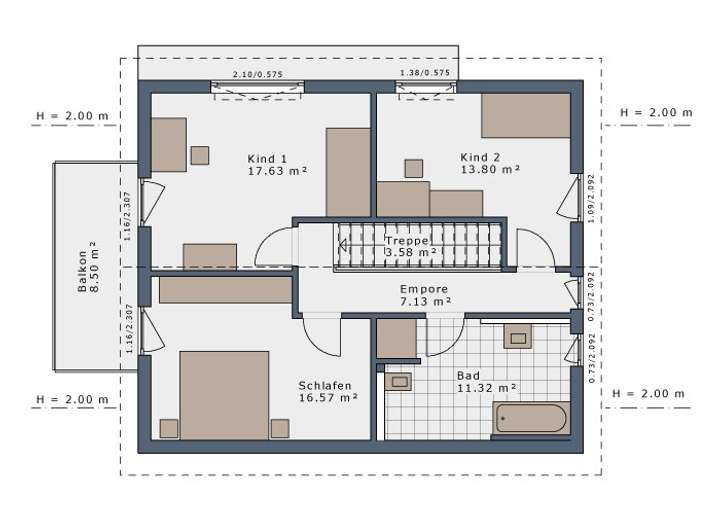
Grundriss
Grundriss Erdgeschoss
>
>
Grundriss Obergeschoss
>
>
Adresse
34253 Lohfelden
Interessante Orte
Preis- und Lageinformationen
Preistrend für Bestandsimmobilien in Lohfelden