Dieses ansprechende sowie charmante Anwesen wurde 1965 in solider und trockener Ziegelmassivbauweise errichtet. Das gediegene Einfamilienhaus strahlt eine angenehme Atmosphäre sowie ein harmonisches Raumgefühl aus.
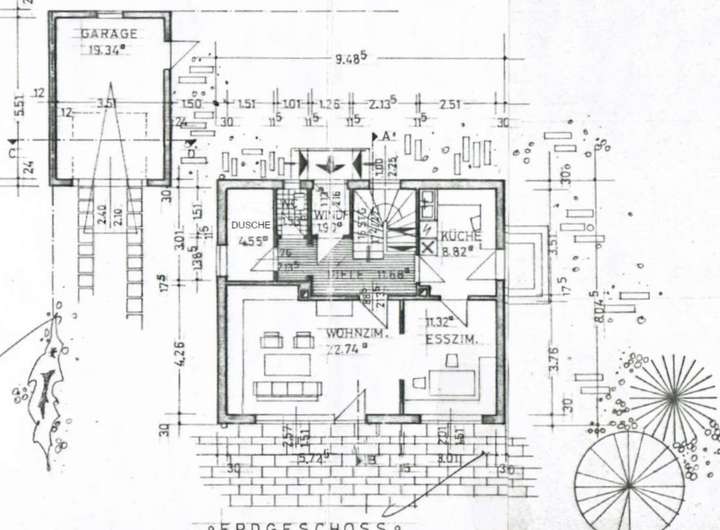
Der ideale Rückzugsort für ihre Familie. Die Raumaufteilung ist praktisch und optimal geschnitten. Wohnen/ Essen und Kochen verteilt sich im Parterre optimal. Ebenso ist hier ein Duschbad sowie das Gäste-WC installiert.
Im Obergeschoss befinden sich 3 Schlafräumlichkeiten, teils mit Gauben, ein Etagen-WC sowie das Hauptbadezimmer.
Hinreichend Lichtzufuhr ist in allen Räumlichkeiten vorhanden. Die Liegenschaft ist ab sofort bezugsfrei.
Gerne freuen wir uns über Ihre geschätzte Kontaktanfrage sowie die Realisierung einer eingehenden Objektbesichtigung mit Ihnen! Für Fragen zu dieser Immobilie stehen wir Ihnen jederzeit zur Verfügung!
… AIGNER - Gelegenheit: EFH mit großem Grundstück für die ganze Familie ...
Blumenstraße 7,
84453 Mühldorf am Inn
Auf Karte anzeigen
Infos
| Haustyp | Einfamilienhaus |
|---|---|
| Etagenzahl | 2 |
| Wohnfläche ca. | 116 m2 |
| Grundstücksfläche | 608 m2 |
| Bezugsfrei ab | 01.02.2026 bzw. nach Absprache |
| Zimmer | 5 |
| Schlafzimmer | 3 |
| Badezimmer | 2 |
| Haustiere | Nach Vereinbarung |
| Garage/Stellplatz | Garage |
| Anzahl Garage/Stellplatz | 1 |
Kosten
| Kaltmiete |
1.450 € |
|---|---|
| Nebenkosten | + 125 € |
| Heizkosten | keine Angabe |
| Gesamtmiete | 1.625 € (zzgl. Heizkosten) |
| Miete für Garage/Stellplatz | 50 € |
| Kaution o. Genossenschaftsanteile | 3 Nettomonatskaltmieten |
Weiter mieten oder doch kaufen?
Wer in Miete wohnt, überweist dem Vermieter im Laufe der Jahre hohe Summen, die sich
auch in die eigenen vier Wände investieren lassen könnten.
Bausubstanz & Energieausweis
| Baujahr | 1965 |
|---|---|
| Letzte Sanierung | 2023 |
| Objektzustand | Gepflegt |
| Qualität der Austattung | Normal |
| Heizungsart | Zentralheizung |
| Wesentliche Energieträger | Erdgas schwer |
| Energieausweis | liegt vor |
| Energieausweistyp | Bedarfsausweis |
| Energieverbrauchskennwert | 362,4 kWh/(m²*a) |
| Energieeffizienzklasse | H |
362,4
kWh/(m²*a)
Energieeffizienzklasse H
- A+
- A
- B
- C
- D
- E
- F
- G
- H
- 0
- 25
- 50
- 75
- 100
- 125
- 150
- 175
- 200
- 225
- >250
Beschreibung des Objekts
Ausstattung
Das Anwesen ist geprägt durch seine solide Ausführung und dem gepflegten Gesamtzustand im Hinblick auf die Bausubstanz. Nachstehend einige Merkmale zu dieser Immobilie:
+ freistehendes, trockenes Ziegelmassivbauwerk aus 1965
+ angenehm, eingewachsenes Grundstück in Höhe von rd. 608 m²
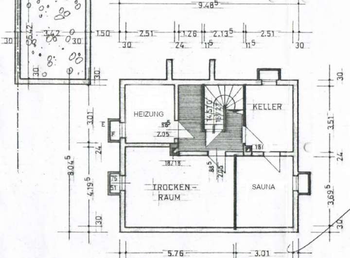
+ voll unterkellert
+ Einzelgarage (5,5 x 3,5 m, 19,34 m²) mit Tür zum Garten
+ manuell und teilweise elektrisch bedienbare Rollläden
+ 2 WCs und 2 Bäder sind vorhanden
+ moderne Gas-Zentralheizung von Viessmann aus 2003
+ Windfang zum Dielenbelag im EG
+ 3 helle Schlafräume im OG
+ Bad mit Wanne und Dusche sowie zwei Waschbecken und getrenntem WC
+ Sauna und Dusche im KG
+ stimmungsvoller, überdachter Freisitz mit Kamin im Außenbereich
+ direkter Zugang zum Innkanalfußweg mittels eigenem Tor
+ Anwesen wurde 2024 gestrichen und ist in ordentlichem Zustand
+ Badezimmer im OG farblich angepasst
+ Parkettboden im Wohn/ Esszimmer abgeschliffen
+ Sparrendämmung im DG
Lage
Die attraktive und historische Stadt Mühldorf mit seinen ca. 23.000 Einwohnern liegt in der reizvollen landschaftlichen Lage des oberbayerischen Voralpenlandes direkt am Inn. Die Bundesautobahn A94 ist seit 01.10.2019 eröffnet und ermöglicht eine zügige Anbindung zur Landeshauptstadt München. Es ist mit einer realistischen Fahrtzeit von etwa 35 Minuten zu rechnen.
Zahlreiche Einkaufs-/ u. Freizeitmöglichkeiten befinden sich in der Umgebung.
Der historischen Stadtplatz lädt zum Flanieren und Verweilen in wunderschönen Cafés ein. Erleben Sie die reizvolle Architektur des Stadtplatzes im Inn-Salzach-Stil.
Sonstige Angaben
Wir danken Ihnen für das Interesse zu dieser Immobilie.
Ohne weiteres beantworten wir Ihre Fragen und stehen Ihnen für einen Besichtigungstermin zur Verfügung.
ERREICHBARKEIT...
... Herrn Robert Aigner unter Festnetz 08631-1665959 sowie per e-Mail an info@e-aigner.de
Wir unterstützen Sie bei der Veräußerung Ihrer Immobilie. Sprechen Sie uns darauf an. Wir ermitteln den aktuellen Verkehrswert (Marktwert) mittels Verkehrswertgutachten. Dieser Service ist bei Erteilung eines Mandats selbstverständlich enthalten.
Adresse
Blumenstraße 7, 84453 Mühldorf am Inn
Interessante Orte
Preis- und Lageinformationen
Preistrend für Bestandsimmobilien in Mühldorf am Inn
>
>
>