Diese elegante Villa in Markkleeberg bietet mit ihren ca. 307 m² genug Raum für eine große Familie oder eine Kombination aus Wohnen und Arbeiten (Praxis, Kanzlei, Büro). Das Anwesen steht auf einem weitläufigen Grundstück von ca. 2.000 m² und verfügt über insgesamt 7 Zimmer sowie einen geräumigen Keller von ca. 144 m².
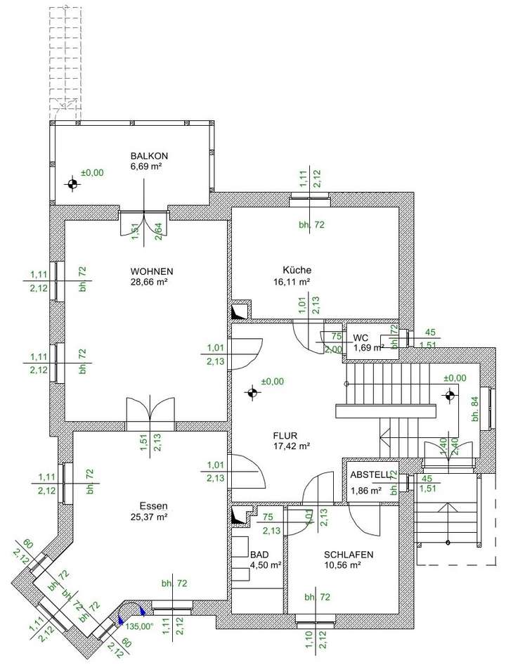
Im Erdgeschoss befindet sich das großzügige Wohn- und Esszimmer mit Kamin und direktem Zugang zum Balkon, der im Jahr 2024 vollständig erneuert wurde. Besonders hervorzuheben sind die originalen Bleiglasfenster, die dem Raum einen einzigartigen Charme verleihen. Für einen eigenen Charakter sorgt der im Wohnbereich stehende Flügel, der zum Musizieren mit Familie und Freunden einlädt. Die Küche sowie ein weiteres Zimmer mit separatem Badezimmer werden ebenfalls über das Erdgeschoss erreicht.
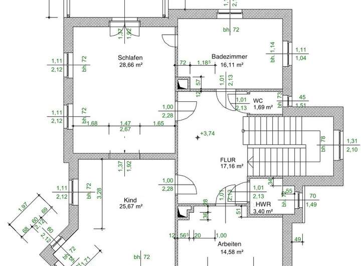
Im 1. Obergeschoss befindet sich ein Tageslicht-Badezimmer mit Dusche und Badewanne. In 2016 wurde hier der Boden neu gefliest und die Dusche erneuert. Ergänzt wird diese Etage durch weitere Zimmer, die sich als Schlaf- oder Kinderzimmer oder Büro eignen. Zwei der Räume besitzen einen eigenen Balkonzugang.
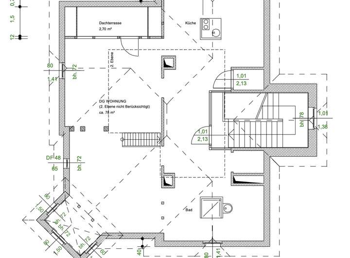
Im Dachgeschoss eröffnet sich die Möglichkeit, einen separaten Wohnbereich zu schaffen. Neben einem großen Hauptraum sind bereits Sanitäranlagen wie eine Toilette und Dusche vorhanden. Zudem ist ein Küchenblock installiert. Über den Hauptraum kann eine Loggia erreicht werden.
Das Gebäude wurde im Rahmen einer umfassenden Grundsanierung in den Jahren 1999/2000 modernisiert. 2014 erfolgte die Sanierung der Wasserleitungen sowie der Einbau eines neuen Brenners für die Gastherme. Neben der bereits erwähnten Balkonerneuerung erhielt der Balkon im EG in diesem Jahr einen neuen Anstrich. Zusätzlich wurde der Keller mit einem neuen Innenputz versehen.
Exklusiv mieten - Gründerzeitvilla in Bestlage von Markkleeberg
04416 Markkleeberg
Die vollständige Adresse der Immobilie erhalten Sie vom Anbieter.
Auf Karte anzeigen
Die vollständige Adresse der Immobilie erhalten Sie vom Anbieter.
Infos
| Haustyp | Villa |
|---|---|
| Etagenzahl | 3 |
| Wohnfläche ca. | 307 m2 |
| Nutzfläche | 451 m2 |
| Grundstücksfläche | 2.000 m2 |
| Zimmer | 7 |
| Badezimmer | 2 |
| Garage/Stellplatz | Außenstellplatz |
| Anzahl Garage/Stellplatz | 2 |
Kosten
| Kaltmiete |
3.950 € |
|---|---|
| Nebenkosten | + 650 € |
| Heizkosten | in Nebenkosten enthalten |
| Gesamtmiete | 4.600 € |
| Kaution o. Genossenschaftsanteile | 7.900,00 |
Weiter mieten oder doch kaufen?
Wer in Miete wohnt, überweist dem Vermieter im Laufe der Jahre hohe Summen, die sich
auch in die eigenen vier Wände investieren lassen könnten.
Bausubstanz & Energieausweis
| Baujahr | 1900 |
|---|---|
| Objektzustand | Gepflegt |
| Heizungsart | Zentralheizung |
| Wesentliche Energieträger | Gas |
| Energieausweis | laut Gesetz nicht erforderlich |
Beschreibung des Objekts
Ausstattung
- 2 Etagen plus Dachgeschoss und Keller
- ca. 307 m² Gesamtfläche
- ca. 2.000 m² Grundstück
- 7 Zimmer
- originale Holzfußböden, Türen und Fenster
- Stuckelemente
- Kamin
- vier Balkone
- zwei Bäder
- Keller
Lage
Die südlich an Leipzig angrenzende Stadt Markkleeberg gehört zu den besten und begehrtesten Wohnadressen der ganzen Region. Eingebettet zwischen dem Leipziger Neuseenland, der Leipziger Auelandschaft sowie den Parkanlagen von Agra und Wildpark erlebt man in Markkleeberg eine Lebensqualität, die Ihresgleichen sucht. Wichtigste Komponente dieser Lebensqualität ist allerdings die hervorragende Infrastruktur mit sämtlichen Schulen, Einkaufsmöglichkeiten und natürlich der hervorragenden Verkehrsanbindung an die Innenstadt von Leipzig. Die benötigte Zeit mit dem Auto beträgt ca. 10 Min., alternativ gibt es Anschlüsse von S-Bahn/City-Tunnel oder Bus. In weniger als 10 Minuten steigt man direkt am Leipziger Marktplatz aus. Die angebotene Villa auf einem Parkgrundstück liegt - in großartiger Markkleeberger Lage - umgeben von einer repräsentativen Umgebungsbebauung in einer ruhigen Anliegerstraße.
Grundriss
Erdgeschoss
>
>
Obergeschoss
>
>
Dachgeschoss
>
>
Adresse
04416 Markkleeberg
Interessante Orte
Preis- und Lageinformationen
Preistrend für Bestandsimmobilien in Markkleeberg