Dieses moderne und großzügige Reihenhaus vom Typ Vista L im
neuen Wohnquartier Albertstraße in Viersen-Dülken überzeugt
durch hochwertige Bauweise und gehobene Ausstattung. Mit 5
Zimmern, Bad, Gäste-WC, Terrasse, Garten und Stellplatz bietet
es hohen Wohnkomfort. Der Erstbezug ist ab 01.01.2026 möglich.
Das Haus wurde in massiver Bauweise als energieeffizientes KfW-
55-Gebäude errichtet und bietet auf rund 129 m² Wohnfläche
viel Platz für Familien und Paare. Eine Fußbodenheizung in allen
Räumen sorgt für angenehme Wärme und Komfort.
Anbei finden Sie einen Link zu einem 360° Rundgang des
baugleichen Musterhauses. Unter “Vista L” und dann “360°
Musterhaus”: https://www.dornieden-gruppe.com/vistareihenhaus-musterhaeuser/
EG:
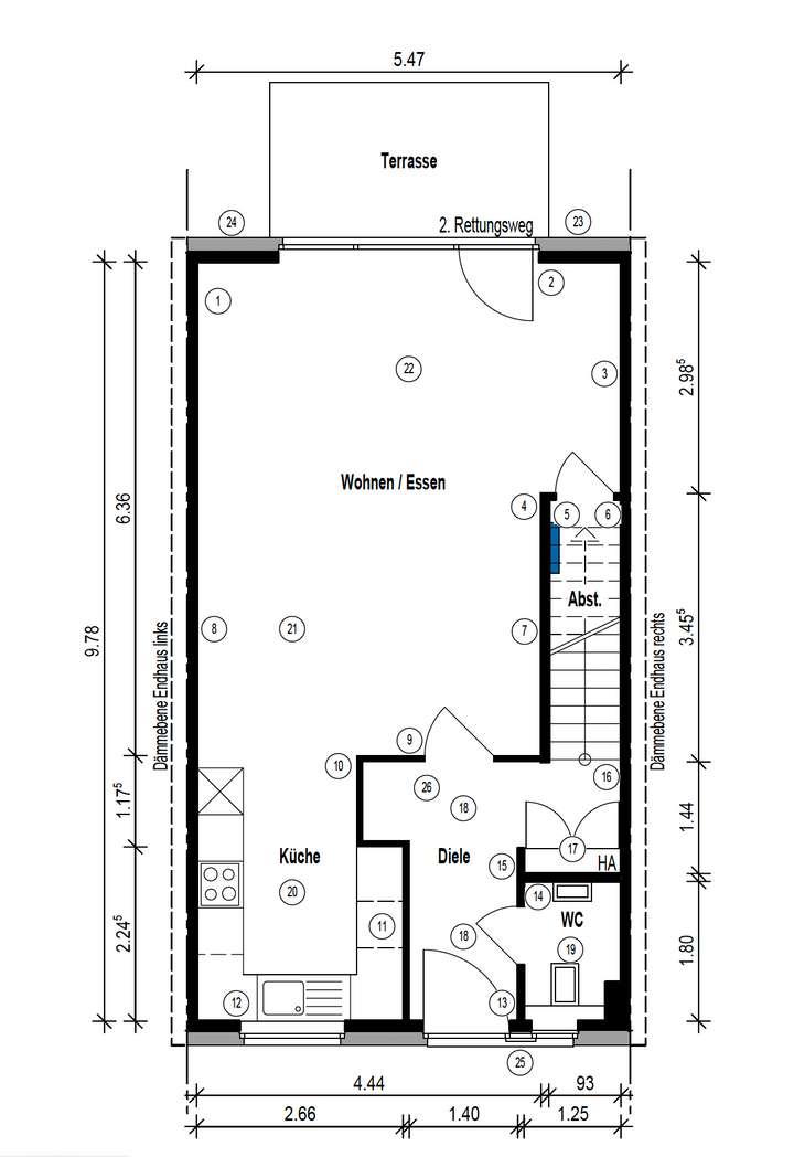
Schon beim Betreten empfängt Sie der helle Flur mit
Garderobennische. Von hier gelangen Sie in den offenen Wohn- und Essbereich mit angrenzender Küche. Vom Wohnzimmer geht
es direkt auf die Terrasse und in den Garten. Ein modernes
Gäste-WC und Abstellraum ergänzen die Etage. Besonders
schön: die große Glasfront im Wohnzimmer mit Zugang zur
Terrasse und Blick ins Grüne.
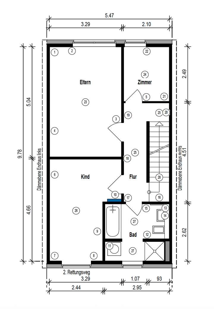
OG:
Das Obergeschoss bietet zwei großzügige, helle Schlafzimmer
sowie einen kleineren Raum, ideal als Büro oder Ankleidezimmer.
Das Tageslichtbad verfügt über bodengleiche Dusche,
Badewanne, WC und Waschbecken. Auch Waschmaschine und
Trockner finden hier Platz.
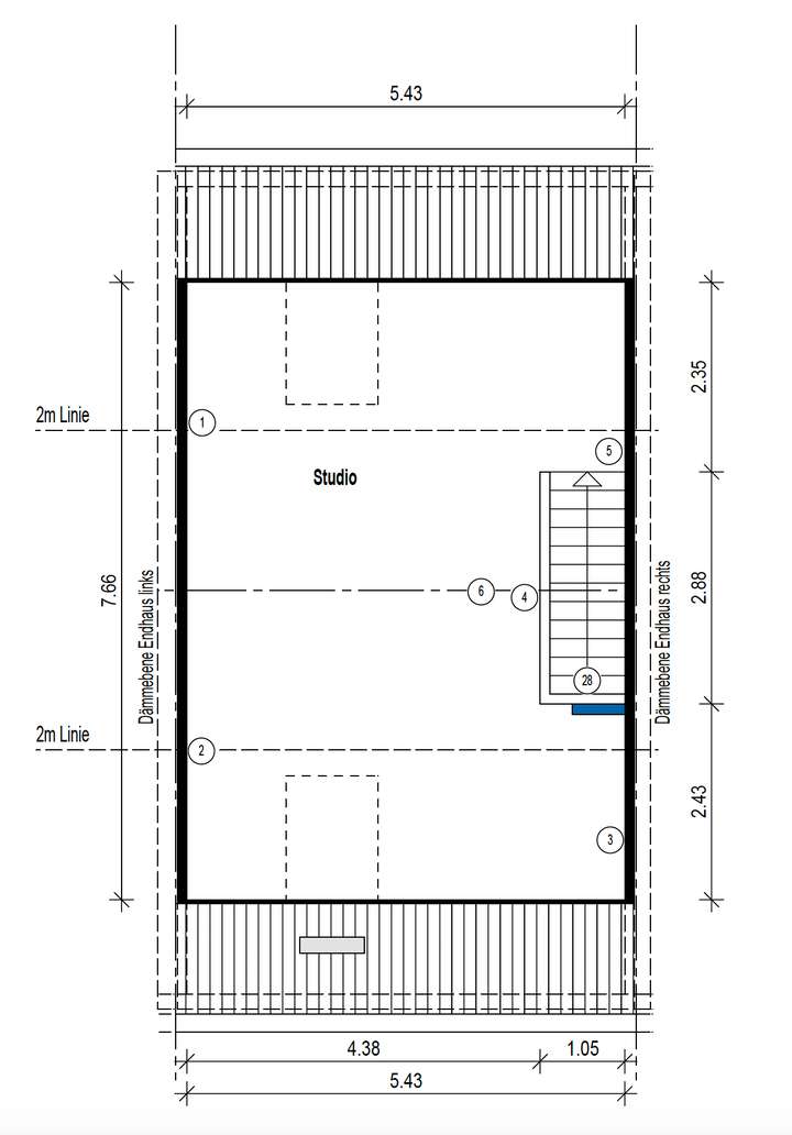
DG:
Das 27 m² große Dachgeschoss ist ein echtes Highlight –
vielseitig nutzbar als Gästezimmer, Büro oder kreatives
Spielparadies.
Checkliste für Mietinteressenten:
Wenn wir Ihr Interesse geweckt haben, freuen wir uns auf Ihre
aussagekräftige Anfrage. Bitte senden Sie uns hierfür folgende
Informationen:
• Anzahl und Alter der einziehenden Personen (einschließlich
Kinder)
• Beruf, Arbeitgeber sowie Dauer des bestehenden
Arbeitsverhältnisses
• Monatliches Gesamtnettoeinkommen Ihres Haushalts
Wir freuen uns auf Ihre Anfrage und darauf, Ihnen dieses schöne
Zuhause persönlich vorzustellen.
Viele Grüße
Jennifer Meister
Erstbezug: Neubautraum für Familien - 5-Zimmer-Einfamilienhaus in Viersen-Dülken
Mühlenberg 62,
41751 Viersen
Auf Karte anzeigen
Infos
| Haustyp | Reihenmittelhaus |
|---|---|
| Etagenzahl | 3 |
| Wohnfläche ca. | 129 m2 |
| Grundstücksfläche | 156 m2 |
| Bezugsfrei ab | 1.1.2026 |
| Zimmer | 5 |
| Schlafzimmer | 4 |
| Badezimmer | 1 |
| Haustiere | Nach Vereinbarung |
| Garage/Stellplatz | Außenstellplatz |
| Anzahl Garage/Stellplatz | 1 |
Kosten
| Kaltmiete |
1.665 € |
|---|---|
| Nebenkosten | + 350 € |
| Heizkosten | in Nebenkosten enthalten |
| Gesamtmiete | 2.015 € |
| Miete für Garage/Stellplatz | 40 € |
| Kaution o. Genossenschaftsanteile | 4.995,00 |
Weiter mieten oder doch kaufen?
Wer in Miete wohnt, überweist dem Vermieter im Laufe der Jahre hohe Summen, die sich
auch in die eigenen vier Wände investieren lassen könnten.
Bausubstanz & Energieausweis
| Baujahr | 2025 |
|---|---|
| Objektzustand | Erstbezug |
| Qualität der Austattung | Gehoben |
| Heizungsart | Fußbodenheizung |
| Wesentliche Energieträger | Bioenergie |
| Energieausweis | liegt vor |
| Energieausweistyp | Bedarfsausweis |
| Energieverbrauchskennwert | 40,9 kWh/(m²*a) |
| Energieeffizienzklasse | A |
40,9
kWh/(m²*a)
Energieeffizienzklasse A
- A+
- A
- B
- C
- D
- E
- F
- G
- H
- 0
- 25
- 50
- 75
- 100
- 125
- 150
- 175
- 200
- 225
- >250
Beschreibung des Objekts
Ausstattung
• Grundrissvariante mit 5 Zimmern, geschlossener Küche und Garderobennische
• Große Fensterflächen mit Dreifachverglasung
• Fußbodenheizung im gesamten Haus
• Elektrische Rollläden
• Glasfaseranschluss
• Modernes Marken-Badezimmer mit Dusche & Badewanne
• Markenarmaturen im Badezimmer
• Hochwertiger Vinylboden in Holzoptik in allen Wohnräumen
• Großformatige Fliesen in beige in den Bädern
• Eigener Garten mit bestehender Terrasse
• Terassenbelag aus Betonsteinplatten, Sichtschutz aus
Massivholz
• Rasen im Garten und Vorgarten bereits eingesät
• Stellplatz vor dem Haus mit bereits vorinstallierter Anschlussmöglichkeit einer Wallbox (separat anmietbar)
• Smarthome-System (Steuerung von Heizung & Rollläden)
• Geradläufige geschlossene Treppe
• Frisch tapeziert und weiß gestrichen
• Energieeffizienzhaus (KfW-55-Standard)
Lage
Ihr neues Zuhause liegt in einem attraktiven Neubauquartier mit
Grünflächen in einer ruhigen und naturnahen Lage in Viersen-
Dülken. Die charmante Altstadt von Dülken, Cafés, Restaurants,
diverse Einkaufsmöglichkeiten sowie Schulen und Kitas sind
fußläufig erreichbar. Die Umgebung bietet viel Natur und
Freizeitmöglichkeiten sowie eine schnelle Anbindung an
Mönchengladbach (ca. 15 Min.) und Düsseldorf (ca. 35 Min.).
• Kita, Grundschule und Spielplatz sind fußläufig erreichbar
• Ärzte, Bäckereien und Grünanlagen befinden sich in
unmittelbarer Nähe
• Sehr gute Anbindung: Buslinien sowie die Bahnlinien RE13 und
RE8 sind fußläufig erreichbar
• Ein neues Fitnessstudio entsteht direkt in der Nachbarschaft
• In wenigen Minuten erreichen Sie zu Fuß oder mit dem Fahrrad
Wiesen, Felder und kleine Waldgebiete – ideal für Spaziergänge,
Radtouren oder Joggingstrecken entlang der Niersauen. Auch
der Stadtgarten Dülken bietet nahe Erholung im Grünen.
• Die historische Altstadt überzeugt mit Veranstaltungen wie der
Dülkener Bierbörse, Stadtfesten und dem Wochenmarkt.
Kulturelle Highlights wie die traditionsreiche Narrenakademie
sowie Konzerte und Ausstellungen im Bürgerhaus sorgen für
Abwechslung.
• Auch kulinarisch hat Dülken viel zu bieten: Zahlreiche
Restaurants, Cafés und Gaststätten sorgen für eine vielseitige
Gastronomie – von regionaler Küche bis zu internationalen
Spezialitäten.
• Darüber hinaus zeichnet sich Dülken durch ein lebendiges
Vereinsleben aus: Ob Fußball im ASV Süchteln-Dülken, Handball
im ASV Dülken, Tennis im Tennisclub Dülken, Musikvereine,
Schützenbruderschaften oder Karnevalsvereine – hier findet
jeder eine passende Möglichkeit zur aktiven Freizeitgestaltung
und zum Anschluss in der Gemeinschaft.
Sonstige Angaben
• Anbei finden Sie einen Link zu einem 360° Rundgang des
baugleichen Musterhauses. Unter "Vista L" und dann "360°
Musterhaus": https://www.dornieden-gruppe.com/vistareihenhaus-musterhaeuser/
• Bei dieser Immobilie handelt es sich um einen Erstbezug – Sie
sind die ersten Mieter dieses neu errichteten Hauses.
• Das Haus befindet sich im letzten Bauabschnitt und ist ab dem
01.01.2026 bezugsbereit. Besichtigungstermine vor Ort sind ab sofort jederzeit nach Absprache möglich.
• Bitte beachten Sie: Das Haus befindet sich in einem
Neubaugebiet. Die Erschließungsarbeiten sind noch nicht
vollständig abgeschlossen.
• Einen anschaulichen Eindruck vom zukünftigen Wohnumfeld
erhalten Sie im angrenzenden, bereits fertiggestellten
Neubaugebiet an der Wasserstraße in Viersen-Dülken.
• Die genaue Lage des Hauses können Sie dem beigefügten
Lageplan entnehmen, sodass Sie sich bereits jetzt orientieren
können. Die Adresse des Hauses lautet: Mühlenberg 62 in 41751
Viersen-Dülken
• Die in dieser Anzeige gezeigten Fotos stammen aus einem
baugleichen Musterhaus. Aus diesem Grund kann es zu
Abweichungen bei Bodenbelägen, Farbe der Fließen,
Wandfarben und Tapeten kommen.
• Originalbilder vom aktuellen Baufortschritt sind ebenfalls in der
Anzeige enthalten und geben Ihnen ein realistisches Bild des
Objekts.
• Vorläufiger Energieausweis Bedarfsausweis. 49,8 kWh, Nah-
/Fernwärme BJ 2024 A
Grundriss
Grundriss Dachgeschoss
>
>
Grundriss Erdgeschoss
>
>
Grundriss Obergeschoss
>
>
Grundriss Erdgeschoss Maße
>
>
Grundriss Obergeschoss Maße
>
>
Grundriss Dachgeschoss Maße
>
>
Adresse
Mühlenberg 62, 41751 Viersen
Interessante Orte
Preis- und Lageinformationen
Preistrend für Bestandsimmobilien in Viersen