Mietkonditionen:
Kaltmiete: 900 €
Einbauküche: 50 €
Tiefgaragenstellplatz: 50 €
Betriebskostenvorauszahlung: 200 €
Warmmiete: 1.200 €
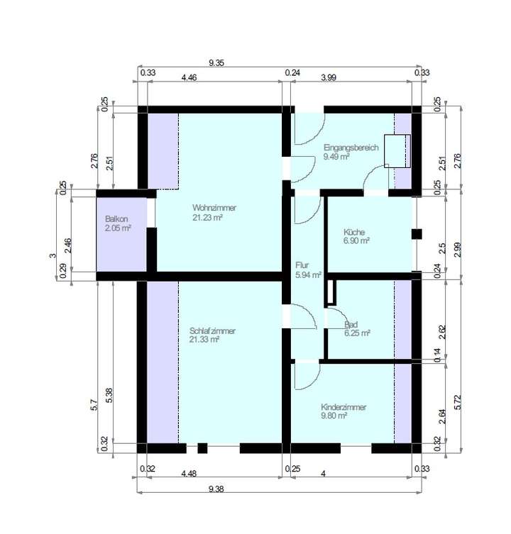
Diese wunderschöne, helle 3-Zimmer-Wohnung befindet sich im Herzen von Lahr im Schwarzwald und überzeugt durch ihre moderne Ausstattung sowie eine perfekte Innenstadtlage. Mit einer Wohnfläche von ca. 83 m² bietet sie ein komfortables Zuhause für Paare oder kleine Familien, die auf der Suche nach einer zentral gelegenen und gut ausgestatteten Wohnung sind.
Die Wohnung wurde im Jahr 2024 umfassend modernisiert und präsentiert sich in einem hervorragenden Zustand. Bereits beim Betreten werden Sie von einem großzügigen Eingangsbereich empfangen, der ausreichend Platz für eine Garderobe und zusätzlichen Stauraum bietet.
Das helle und geräumige Wohnzimmer beeindruckt mit einer großen Fensterfront, die für eine freundliche Atmosphäre sorgt. Von hier aus gelangen Sie direkt auf die Loggia, die mit einer Markise ausgestattet ist – perfekt, um sonnige Tage entspannt im Freien zu genießen.
Die moderne Einbauküche, die für 50 €/Monat mitvermietet wird, wird demnächst eingebaut und bietet alles, was das Herz begehrt.
Ein weiteres Highlight ist das hochwertig modernisierte Badezimmer, das sowohl über eine große Badewanne als auch eine separate Dusche verfügt – ein echtes Wellnessgefühl für Zuhause.
Zusätzlichen Stauraum bieten Ihnen ein eigener Kellerraum sowie ein separater Speicher, die Ihnen Platz für persönliche Gegenstände oder saisonale Utensilien ermöglichen.
Ein großer Vorteil dieser Wohnung ist der Tiefgaragenstellplatz, der für 50 €/Monat optional angemietet werden kann. Mitten im Stadtzentrum entfällt so die mühsame Suche nach einem Parkplatz – ein Komfort, den Sie besonders in dieser Lage zu schätzen wissen werden.
Ausstattung & Highlights auf einen Blick:
✅ Helle 3-Zimmer-Wohnung mit ca. 83 m² Wohnfläche
✅ Großes Wohnzimmer mit Loggia & Markise
✅ Moderne Einbauküche (optional für 50 €/Monat)
✅ Modernisiertes Badezimmer mit Badewanne & separater Dusche
✅ Tiefgaragenstellplatz (optional für 50 €/Monat)
✅ Kellerraum & separater Speicher für zusätzlichen Stauraum
✅ Perfekte Innenstadtlage mit fußläufiger Erreichbarkeit aller wichtigen Einrichtungen
📞 Interesse geweckt? Vereinbaren Sie noch heute einen Besichtigungstermin und überzeugen Sie sich selbst von dieser tollen Wohnung!
Anfragen bitte nur schriftlich.
Moderne 3-Zimmer-Wohnung im Herzen von Lahr – mit Einbauküche und Tiefgaragenstellplatz
77933 Lahr/Schwarzwald
Die vollständige Adresse der Immobilie erhalten Sie vom Anbieter.
Auf Karte anzeigen
Die vollständige Adresse der Immobilie erhalten Sie vom Anbieter.
Infos
| Wohnungskategorie | Dachgeschoss |
|---|---|
| Etage | 3 von 3 |
| Wohnfläche ca. | 83 m2 |
| Bezugsfrei ab | sofort |
| Zimmer | 3 |
| Schlafzimmer | 1 |
| Badezimmer | 1 |
| Haustiere | Nein |
| Garage/Stellplatz | Tiefgarage |
| Anzahl Garage/Stellplatz | 1 |
Kosten
| Kaltmiete |
950 € |
|---|---|
| Nebenkosten | + 200 € |
| Heizkosten | in Nebenkosten enthalten |
| Gesamtmiete | 1.200 € |
| Miete für Garage/Stellplatz | 50 € |
| Kaution o. Genossenschaftsanteile | 3000 |
Weiter mieten oder doch kaufen?
Wer in Miete wohnt, überweist dem Vermieter im Laufe der Jahre hohe Summen, die sich
auch in die eigenen vier Wände investieren lassen könnten.
Bausubstanz & Energieausweis
| Baujahr | 1979 |
|---|---|
| Letzte Sanierung | 2024 |
| Objektzustand | Modernisiert |
| Qualität der Austattung | Normal |
| Heizungsart | Gas-Heizung |
| Wesentliche Energieträger | Gas |
| Energieausweis | liegt vor |
| Energieausweistyp | Verbrauchsausweis |
| Energieverbrauchskennwert | 186,0 kWh/(m²*a) |
| Energieeffizienzklasse | F |
186,0
kWh/(m²*a)
Energieeffizienzklasse F
- A+
- A
- B
- C
- D
- E
- F
- G
- H
- 0
- 25
- 50
- 75
- 100
- 125
- 150
- 175
- 200
- 225
- >250
Beschreibung des Objekts
Ausstattung
Küche mit EBK
Badezimmer mit Badewanne und separater Dusche
Großzügiger Eingangsbereich
Loggia mit Markise
Kellerraum
Speicher
Tiefgaragenstellplatz
Komplett modernisiert im Jahr 2024
Wohnung ist bezugsfrei
Lage
Die Wohnung liegt im Stadtzentrum von Lahr im Schwarzwald, einer charmanten und lebendigen Kleinstadt, die eine perfekte Mischung aus urbanem Leben und naturnaher Umgebung bietet. Diese zentrale Lage ermöglicht es Ihnen, sämtliche Annehmlichkeiten des Stadtlebens direkt vor der Haustür zu genießen.
In unmittelbarer Nähe befinden sich zahlreiche Einkaufsmöglichkeiten, von kleinen Boutiquen bis hin zu größeren Supermärkten. Auch Restaurants, Cafés und Bars sind nur wenige Gehminuten entfernt, sodass Sie das kulinarische Angebot der Stadt in vollen Zügen nutzen können. Der historische Stadtkern von Lahr, bekannt für seine gut erhaltene Fachwerkarchitektur und das malerische Ambiente, lädt zu entspannten Spaziergängen ein.
Die Verkehrsanbindung ist hervorragend: Der Bahnhof Lahr liegt in der Nähe und bietet regelmäßige Verbindungen in Richtung Freiburg, Offenburg und Straßburg. Auch die Autobahn A5 ist nur wenige Minuten entfernt, was die Lage ideal für Pendler macht. Trotz der zentralen Lage erreichen Sie in kürzester Zeit die idyllische Landschaft des Schwarzwalds, die zu zahlreichen Freizeitaktivitäten wie Wandern, Radfahren oder einfach zum Entspannen in der Natur einlädt.
Schulen, Kindergärten, Ärzte und Apotheken befinden sich ebenfalls in direkter Nähe, was diese Lage besonders attraktiv für Familien macht. Kultur- und Sportangebote, wie das Lahrer Kulturzentrum oder der Stadtpark, sind ebenfalls schnell erreichbar.
Diese Lage kombiniert das pulsierende Leben einer lebendigen Stadt mit der Nähe zur Natur des Schwarzwalds – ideal für alle, die urbanes Flair und naturnahe Erholung schätzen.
Weitere Dokumente
Energieausweis (1).pdfGrundriss
Grundriss.jpg
>
>
Adresse
77933 Lahr/Schwarzwald
Interessante Orte
Preis- und Lageinformationen
Preistrend für Bestandsimmobilien in Lahr/Schwarzwald