Dieses großzügige Haus in der Siedlung "Am Feldhof" in Frohlinde bietet auf 166 m² viel Platz für Ihre Familie:
- im Erdgeschoss mit großem Wohnzimmer, Küche und Gäste-WC
- in der ersten Etage mit drei Schlafzimmern und Bad
- im ausgebauten Dachgeschoss mit einem großen Studio und einem Abstellraum
- weitere Möglichkeiten bietet die Souterrain-Etage mit zwei Zimmern, eigenem Bad und eigener Einbauküche - ideal als Gästebereich, Büro oder für ein erwachsenes Kind
Auf dem 269 m² großen Grundstück befindet ein liebevoll angelegter, sonniger Garten, eine Garage und ein zusätzlicher Außenstellplatz.
Die Garage verfügt über einen elektrischen Torantrieb und bietet viel Stauraum. Halterungen für Fahrräder und Dachbox sind vorhanden.
Die vorhandene Einbauküche im Erdgeschoss kann auf Wunsch kostenfrei übernommen werden.
Komfortables Einfamilienhaus mit Garten zum Wohlfühlen in toller Lage
44577 Castrop-Rauxel
Die vollständige Adresse der Immobilie erhalten Sie vom Anbieter.
Auf Karte anzeigen
Die vollständige Adresse der Immobilie erhalten Sie vom Anbieter.
Infos
| Haustyp | Reiheneckhaus |
|---|---|
| Etagenzahl | 4 |
| Wohnfläche ca. | 166 m2 |
| Nutzfläche | 33 m2 |
| Grundstücksfläche | 269 m2 |
| Bezugsfrei ab | 1.3.2026 |
| Zimmer | 7 |
| Schlafzimmer | 4 |
| Badezimmer | 2 |
| Haustiere | Nein |
| Garage/Stellplatz | Garage |
| Anzahl Garage/Stellplatz | 1 |
Kosten
| Kaltmiete |
2.000 € |
|---|---|
| Nebenkosten | + 245 € |
| Heizkosten | + 85 € |
| Gesamtmiete | 2.330 € (zzgl. Heizkosten) |
| Miete für Garage/Stellplatz | 100 € |
| Kaution o. Genossenschaftsanteile | 6000 |
Weiter mieten oder doch kaufen?
Wer in Miete wohnt, überweist dem Vermieter im Laufe der Jahre hohe Summen, die sich
auch in die eigenen vier Wände investieren lassen könnten.
Bausubstanz & Energieausweis
| Baujahr | 2002 |
|---|---|
| Letzte Sanierung | 2022 |
| Objektzustand | Modernisiert |
| Qualität der Austattung | Gehoben |
| Heizungsart | Wärmepumpe |
| Wesentliche Energieträger | Solarheizung, Strom |
| Energieausweis | liegt zur Besichtigung vor |
Beschreibung des Objekts
Ausstattung
- Rollläden an allen Fenstern, in den meisten Räumen elektrisch
- Fliesenboden im Erdgeschoss, Eichenparkett in der ersten Etage, hochwertiges Laminat im Studio im Dachgeschoss
- Fußbodenheizung im Erdgeschoss
- herausnehmbare Insektenschutzgitter an den meisten Fenstern
- PV-Anlage und Wärmepumpe vorhanden: siehe unten
- Sat-Antenne vorhanden
Lage
Wir - beide berufstätig in Dortmund mit zwei Kindern im Grundschul- und Kita-Alter - schätzen die Lage des Hauses sehr:
- sehr gepflegte Spielstraßensiedlung, freundliche Nachbarschaft
- Kindergärten, Grundschule und ÖPNV sind fußläufig leicht erreichbar
- auch durch den Dortmunder Berufsverkehr kommt man zügig nach Frohlinde
- Spaziergang oder Fahrradtour über die Felder beginnen hundert Meter vom Haus entfernt
- Fußballplatz, Tennisclub, Reiterhöfe, Golfplatz sind in wenigen Minuten erreichbar.
Die Lage verbindet ruhiges Wohnen im Grünen mit einer guten Erreichbarkeit der umliegenden Städte.
Sonstige Angaben
Energie: 2022 haben wir eine Photovoltaik-Anlage mit 6,0 kWp installiert. Seitdem hat die Anlage durchschnittlich 6.400 kWh im Jahr erzeugt. Ein Stromspeicher mit einer Kapazität von 10 kWh ist vorhanden. Den PV-Strom können Sie durch einen Mieterstromtarif nutzen.
Heizung: die Wärmepumpe wurde ebenfalls 2022 installiert. Der Energiebedarf der Wärmepumpe betrug in den letzten Jahren etwa 3.500 kWh/a.
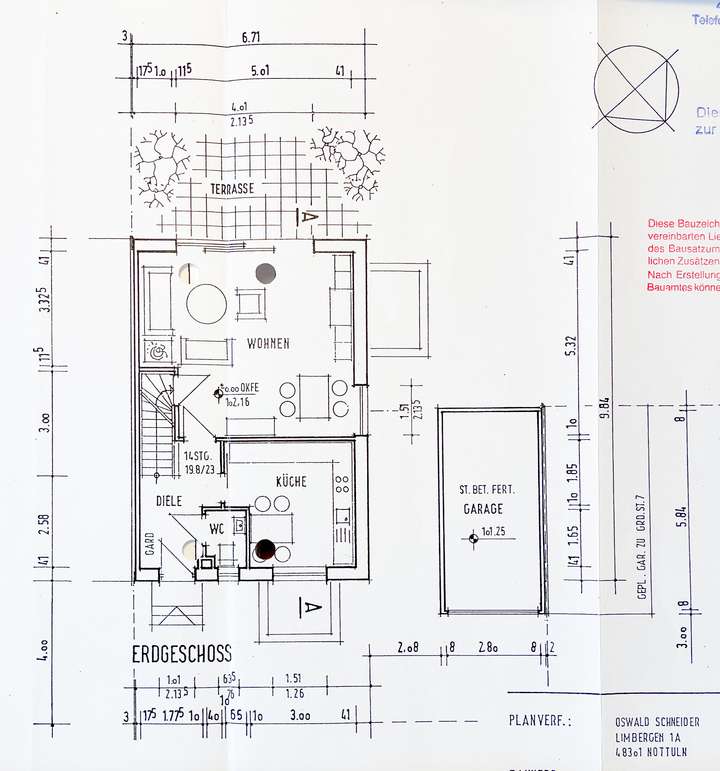
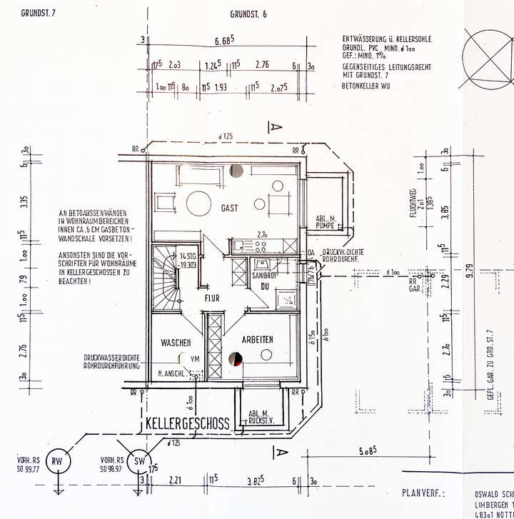
Grundriss
Grundriss EG
>
>
Grundriss 1 OG
>
>
Grundriss DG
>
>
Grundriss Souterrain
>
>
Adresse
44577 Castrop-Rauxel
Interessante Orte
Preis- und Lageinformationen
Preistrend für Bestandsimmobilien in Castrop-Rauxel