Attraktive Immobilie in Planung. Mietkauf möglich. Machen Sie den Check: Jetzt prüfen ob Sie Miet-Kauf berechtigt sind!
Raus aus der Alt-Immobilie - Rein in die eigenen vier Wände
- Ohne Eigenkapital
- Trotz Schulden
Vereinbaren Sie jetzt Ihren Termin mit unseren Miet-Kauf-Spezialisten!
Neubau - Erstbezug
42799 Leichlingen (Rheinland)
Die vollständige Adresse der Immobilie erhalten Sie vom Anbieter.
Auf Karte anzeigen
Die vollständige Adresse der Immobilie erhalten Sie vom Anbieter.
Infos
| Haustyp | Einfamilienhaus |
|---|---|
| Wohnfläche ca. | 152 m2 |
| Nutzfläche | 0 m2 |
| Grundstücksfläche | 480 m2 |
| Zimmer | 4 |
| Schlafzimmer | 3 |
| Badezimmer | 1 |
| Anzahl Garage/Stellplatz | 0 |
Kosten
| Kaltmiete |
1.950 € |
|---|---|
| Nebenkosten | keine Angabe |
| Heizkosten | keine Angabe |
| Gesamtmiete | 1.950 € |
Weiter mieten oder doch kaufen?
Wer in Miete wohnt, überweist dem Vermieter im Laufe der Jahre hohe Summen, die sich
auch in die eigenen vier Wände investieren lassen könnten.
Bausubstanz & Energieausweis
| Baujahr | 2026 |
|---|---|
| Qualität der Austattung | Gehoben |
| Heizungsart | Wärmepumpe |
Beschreibung des Objekts
Ausstattung
Gemeinsam mit Ihnen entwickeln wir von der ersten Idee bis zum fertigen Projekt-Konzept das perfekt zu Ihnen passende Traumhaus, um Ihren individuellen Haustraum zu verwirklichen. Sie erzählen uns was Ihnen wichtig ist, wir beraten Sie, geben wichtige Tipps und Tricks und entwickeln dann für Sie das perfekt passende Haus-Konzept. So wird Ihr neues White and Black Haus auch garantiert zu Ihrem neuen Traumhaus. Es ist uns besonders wichtig, und dies zählen wir auch zu einer unserer ganz großen Stärken, dass Sie von uns bereits im Standard ein Leistungspaket erhalten, das keinerlei Lücken aufweist. Und das von Anfang an. Wir möchten gemeinsam mit Ihnen transparent und realistisch planen und Ihnen unliebsame Überraschungen ersparen. Unser All-Inclusive-Konzept beinhaltet deshalb alle relevanten Hausbau-Details und alle wichtigen Leistungen rund um Ihr neues White and Black Haus.
Mit diesem Konzept beraten wir Sie von Anfang an ehrlich und fair. Wir entwickeln mit Ihnen gemeinsam bedarfs- und budgetorientiert Ihr individuelles Traumhaus made by White and Black Haus.
Lage
Ruhiges Umfeld wartet auf seine Bauherren
Sonstige Angaben
Mit 1.400,- Abtrag / Kaltmiete in die eigenen 4 Wände... ist das möglich? Ohne Eigenkapital?
Ja, aufgrund von Fördermittel des Bundes und des Landes ermöglichen wir jungen Familie den Traum vom Eigenheim schon zu sehr niedrigen monatlichen Abträgen / Kaltmieten.
Unsere Bankpartner finanzieren Sie auch ohne Eigenkapital.
Beispiel:
Finanzierungssumme 500.000,- €
Abtrag: 1.490,- €
Nebenkosten unserer Häuser für Strom, Wasser und Abwasser, Müllabfuhr, Grundbesitzabgaben sowie Versicherungen ca. 250,- €. ( Teilweise abhängig von Verbräuchen )
Lassen sie uns gemeinsam prüfen, ob wir auch Ihren Traum in die Realität umsetzen können und vereinbaren Sie einen kostenfreien Termin.
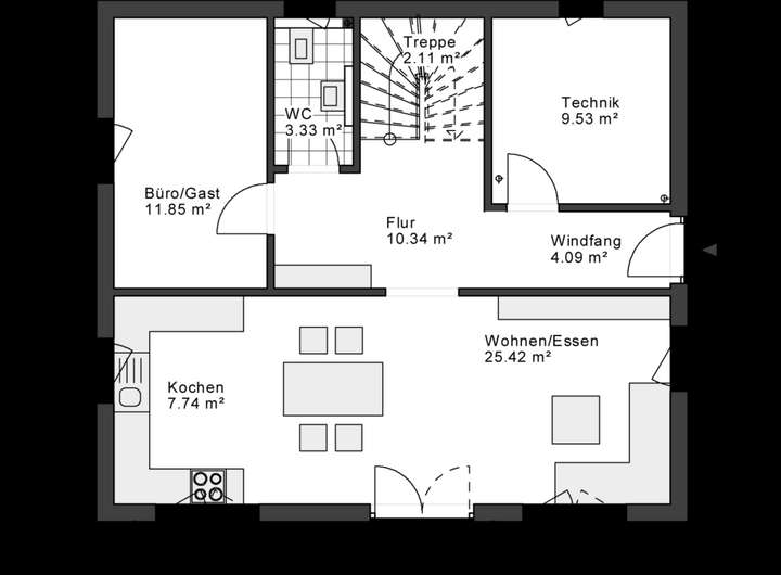
Grundriss
Grundriss EG
>
>
Grundriss OG
>
>
Adresse
42799 Leichlingen (Rheinland)
Interessante Orte
Preis- und Lageinformationen
Preistrend für Bestandsimmobilien in Leichlingen (Rheinland)