Sie suchen eine attraktive und bezahlbare Erdgeschoß-Mietwohnung ? Sie möchten endlich ankommen, hell, modern und ruhig Wohnen und etwas frisch Saniertes ?
Dann haben wir hier genau das Richtige! Eine 101m2 4-Zimmer Wohnung, frisch saniert und mit einem eigenen barrierefreie Zugang und eigenem Innenhof vor den Toren Dillingen´s
Frisch Renovierte 4-Zimmer Erdgeschoßwohnung in 89426 Bergheim !
89426 Mödingen
Die vollständige Adresse der Immobilie erhalten Sie vom Anbieter.
Auf Karte anzeigen
Die vollständige Adresse der Immobilie erhalten Sie vom Anbieter.
Infos
| Wohnungskategorie | Erdgeschosswohnung |
|---|---|
| Etage | 0 von 1 |
| Wohnfläche ca. | 101 m2 |
| Bezugsfrei ab | nach Vereinbarung |
| Zimmer | 4 |
| Schlafzimmer | 3 |
| Badezimmer | 1 |
| Haustiere | Nach Vereinbarung |
| Garage/Stellplatz | Außenstellplatz |
| Anzahl Garage/Stellplatz | 2 |
Kosten
| Kaltmiete |
800 € |
|---|---|
| Nebenkosten | + 200 € |
| Heizkosten | in Nebenkosten enthalten |
| Gesamtmiete | 1.000 € |
| Kaution o. Genossenschaftsanteile | 1600 |
Weiter mieten oder doch kaufen?
Wer in Miete wohnt, überweist dem Vermieter im Laufe der Jahre hohe Summen, die sich
auch in die eigenen vier Wände investieren lassen könnten.
Bausubstanz & Energieausweis
| Letzte Sanierung | 2025 |
|---|---|
| Objektzustand | Vollständig Renoviert |
| Qualität der Austattung | Normal |
| Heizungsart | Zentralheizung |
| Wesentliche Energieträger | Pelletheizung |
| Energieausweis | liegt zur Besichtigung vor |
Beschreibung des Objekts
Ausstattung
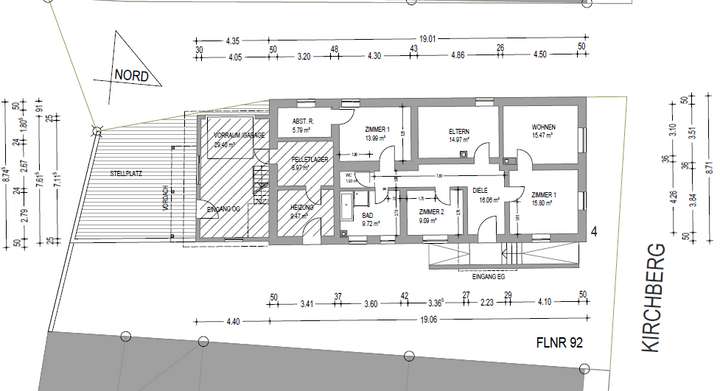
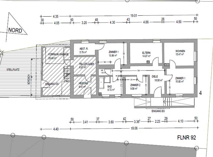
Nach Zugang des Eingangsbereichs erwarten Sie 3 Schlafzimmer, 1 Badezimmer mit separatem WC, ein Zimmer für die Kücheneinrichtung sowie ein Abstellraum u. Garderobenbereich.
Bei der Wohnung handelt es sich um einen Erstbezug nach einer fertig gestellten Sanierung ganz aktuell im Oktober 2025.
Die monatliche Kaltmiete beträgt 800€, der Einbau einer Einbauküche muss vom Mieter gestellt werden. Die zwei KFZ-Stellplätze vor der Türe sind in der Kaltmiete includiert. Die Nebenkosten belaufen sich auf ca. 200€ monatlich, inkl. aller Heiz- und Wasserkosten.
Lage
Bergheim gehört VG Wittislingen. Geographisch liegt Wittislingen perfekt zwischen den Großstädten Stuttgart, München, Augsburg, Ulm und Nürnberg. Die nächsten Autobahnanschlüsse Zusmarshausen (A 8), Günzburg oder Giengen Brenz (A 7) sind lediglich 20-25 km entfernt. Die Flughäfen München oder Stuttgart sind in einer Stunde mit dem Auto erreichbar, ebenso liegt die Bahnstrecke Ulm Regensburg direkt vor der Tür. Viele bekannte große Arbeitgeber wie Deutz-Fahr, Bosch, Grünbeck… sind nur einige Autominuten entfernt. In direktem Umfeld findet sich eine Bushaltestelle, Supermarkt, Bäckerei, Kindergarten, Schule und Gemeindezentrum. Alles fußläufig zu erreichen. Ebenso verfügt der Ort über einen Hausarzt, alle übrigen wichtigen Dinge des täglichen Bedarfs erreichen Sie in Dillingen und Lauingen in gerade mal 5 km Entfernung!
Sonstige Angaben
Wir erwarten von Ihnen:
-Mieterselbstauskunft (mit kleinem Bewerbungsanschreiben)
-Schufa-Bonitäts-Check
-Einkommensnachweis
-Mietzahlungsbestätigung (vom bisherigen Vermieter)
Die geforderten Unterlagen senden Sie uns bitte vorab per E-Mail
Das Angebot richtet sich ausschließlich an Personen, die an einer langfristigen Anmietung interessiert sind, eine Mindestmietdauer von 2-3 Jahren wird vertraglich festgelegt, ebenso sollten Sie in der Lage sein 2 Kaltmieten Kaution zu hinterlegen. Die Wohnung ist ab sofort bezugsbereit. Der Energieausweis liegt zur Besichtigung vor.
Für die Besichtigung der Wohnung wenden Sie sich bitte direkt an den Vermieter !
Die Angaben zum Objekt stammen vom Vermieter. Eine Haftung für deren Richtigkeit können wir nicht übernehmen.
Mit freundlichen Grüßen Immobilien mit Niveau
Grundriss
Grundriss
>
>
Adresse
89426 Mödingen
Interessante Orte
Preis- und Lageinformationen
Preistrend für Bestandsimmobilien in Mödingen