Diese großzügige Wohnung befindet sich in einem gepflegten 3-Parteien-Haus in ruhiger Lage von Willmsfeld. Auf rund 160 m² Wohnfläche bietet sie genügend Platz für eine kleine Familie.
Herzstück der Wohnung ist der lichtdurchflutete Wintergarten, der als gemütlicher Wohnbereich genutzt wird und einen wunderbaren Blick ins Grüne eröffnet. Ein Kamin sorgt hier zusätzlich für eine behagliche Atmosphäre und lädt zum Entspannen ein.
Die angrenzende Küche ist mit einer modernen Einbauküche ausgestattet und überzeugt durch ihre Funktionalität. Ein separates Esszimmer schafft zusätzlichen Raum für gemeinsame Mahlzeiten mit der Familie. Ebenfalls im Erdgeschoss befinden sich ein Duschbad sowie ein Hauswirtschaftsraum mit ausreichend Platz für Waschmaschine und Trockner.
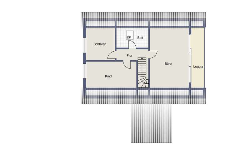
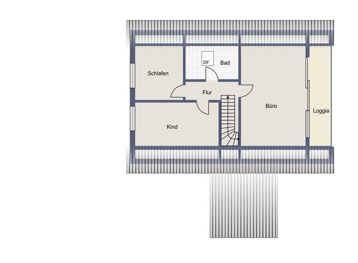
Im Obergeschoss stehen drei Schlafzimmer zur Verfügung, wobei eines direkten Zugang zur Loggia bietet. Das Badezimmer auf dieser Etage ist mit Handwaschbecken und Toilette ausgestattet.
Der pflegeleichte Gartenbereich mit Blockhütte lädt zum Verweilen im Freien ein. Zudem ist eine Garage vorhanden, die praktischen Stauraum sowie einen sicheren Stellplatz für das Auto bietet.
Kurzum vereint diese Wohnung Behaglichkeit, Komfort und eine familienfreundliche Aufteilung. Als besondere Ausstattungsmerkmale sind der großzügige Wintergarten als Wohnbereich, der gemütliche Kamin, die helle Loggia, die praktische Einbauküche sowie die Garage zu benennen.
Hinweis: Strom und Gas sind vom Mieter selbst anzumelden und direkt an den Versorger zu zahlen!
Großzügige Wohnung mit pflegeleichtem Garten
26556 Westerholt
Die vollständige Adresse der Immobilie erhalten Sie vom Anbieter.
Auf Karte anzeigen
Die vollständige Adresse der Immobilie erhalten Sie vom Anbieter.
Infos
| Haustyp | Mehrfamilienhaus |
|---|---|
| Wohnfläche ca. | 160 m2 |
| Nutzfläche | 20 m2 |
| Grundstücksfläche | 300 m2 |
| Bezugsfrei ab | Nach Absprache |
| Zimmer | 4 |
| Schlafzimmer | 3 |
| Badezimmer | 2 |
| Haustiere | Nach Vereinbarung |
| Garage/Stellplatz | Garage |
| Anzahl Garage/Stellplatz | 1 |
Kosten
| Kaltmiete |
1.050 € |
|---|---|
| Nebenkosten | + 100 € |
| Heizkosten | keine Angabe |
| Gesamtmiete | 1.150 € |
| Kaution o. Genossenschaftsanteile | 2400 |
Weiter mieten oder doch kaufen?
Wer in Miete wohnt, überweist dem Vermieter im Laufe der Jahre hohe Summen, die sich
auch in die eigenen vier Wände investieren lassen könnten.
Bausubstanz & Energieausweis
| Baujahr | 1980 |
|---|---|
| Heizungsart | Zentralheizung |
| Wesentliche Energieträger | Gas |
| Energieausweis | liegt vor |
| Energieausweistyp | Verbrauchsausweis |
| Energieverbrauchskennwert | 187,3 kWh/(m²*a) |
| Energieeffizienzklasse | F |
187,3
kWh/(m²*a)
Energieeffizienzklasse F
- A+
- A
- B
- C
- D
- E
- F
- G
- H
- 0
- 25
- 50
- 75
- 100
- 125
- 150
- 175
- 200
- 225
- >250
Beschreibung des Objekts
Lage
Diese schöne Wohnung befindet sich im Westerholter Ortsteil Willmsfeld. Das Landschaftsbild ist typisch ostfriesisch: Weite, Wiesen und Felder. Klimatisch wird dieser Landstrich von der nur 14 km entfernten Nordsee geprägt. Einkaufsmöglichkeiten, Ärzte, Apotheke, Kindergarten und Schulen sind schnell erreichbar. Als Ausflugsziele bieten sich natürlich die Nordseeküste, aber auch z. B. das in unmittelbarer Nähe befindliche "Ewige Meer" im Naturschutzgebiet Eversmeer oder der Naturbadesee mit Wassersportanlage und Hundestrand im Nachbarort Tannenhausen an. In etwa 15-20 Autominuten erreichen Sie die Küstenbadeorte Bensersiel (mit Anleger zur Insel Langeoog) und Dornumersiel.
Sonstige Angaben
Provision: Auftraggeber des Maklers ist der Vermieter.
Alle Angaben sind ohne Gewähr und basieren ausschließlich auf Informationen, die uns von unserem Auftraggeber übermittelt wurden. Wir übernehmen keine Gewähr für die Vollständigkeit, Richtigkeit und Aktualität dieser Angaben. Irrtum und Zwischenverkauf vorbehalten.
Grundriss
Erdgeschoss
>
>
Dachgeschoss
>
>
Adresse
26556 Westerholt
Interessante Orte
Preis- und Lageinformationen
Preistrend für Bestandsimmobilien in Westerholt