In ruhiger Lage von Kastorf entstehen zwei moderne Doppelhaushälften, die mit stilvoller Architektur, energieeffizienter Technik und einem durchdachten Raumkonzept überzeugen. Mit einer Wohnfläche von jeweils rund 140 Quadratmetern bieten die Häuser ein harmonisches Zuhause für Familien, Paare oder all jene, die modernes Wohnen mit hohem Komfort schätzen. Beide Einheiten verfügen über einen eigenen Hauseingang, einen separaten Gartenanteil sowie eine private Auffahrt mit Wallbox – hier genießt jeder Bewohner seine ganz persönliche Privatsphäre.
Schon beim Betreten spürt man die besondere Atmosphäre des Neubaus. Der großzügige Wohn- und Essbereich im Erdgeschoss bildet das Herzstück des Hauses. Große Fensterfronten lassen viel Tageslicht herein und schaffen eine freundliche, offene Wohnatmosphäre. Der fließende Übergang in die moderne Markeneinbauküche mit Backofen, Induktionskochfeldern, Mikrowelle, Geschirrspülmaschine und Kühlschrank lädt zum gemeinsamen Kochen und Genießen ein. Ergänzt wird das Erdgeschoss durch ein geschmackvolles Gäste-WC und einen praktischen Hauswirtschaftsraum, der zusätzlichen Stauraum bietet und den Alltag erleichtert.
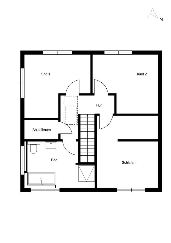
Im Obergeschoss setzt sich der hochwertige Stil fort. Das lichtdurchflutete Badezimmer überzeugt mit Badewanne, Dusche und Doppelwaschbecken – ein Ort zum Entspannen und Wohlfühlen. Neben dem großzügigen Schlafzimmer stehen zwei weitere Zimmer zur Verfügung, die flexibel als Kinderzimmer, Homeoffice oder Gästezimmer genutzt werden können.
Sämtliche Räume sind mit einer Fußbodenheizung ausgestattet und mit Vinylboden und Feinsteinzeugfliesen sowie verputzten, weiß gehaltenen Wänden gestaltet, die dem Interieur eine moderne und zugleich zeitlose Eleganz verleihen. Jede Haushälfte verfügt über eine eigene Erdwärmepumpe und entspricht somit der Energieklasse A+.
Mit der Fertigstellung im Jahr 2025 handelt es sich um einen echten Erstbezug – alles ist neu, hochwertig und bereit, um zum ersten Mal mit Leben erfüllt zu werden. Dieses Neubau-Doppelhaus in Kastorf vereint modernes Design, energieeffiziente Bauweise und ein behagliches Wohngefühl auf ideale Weise. Hier entsteht ein Ort, an dem sich Alltag und Wohlbefinden in perfekter Balance verbinden – ein Zuhause zum Ankommen, Entspannen und Genießen.
Neubau-Doppelhaushälften mit Erstbezug in Kastorf – modernes Wohnen mit Wohlfühlcharakter
23847 Kastorf
Die vollständige Adresse der Immobilie erhalten Sie vom Anbieter.
Auf Karte anzeigen
Die vollständige Adresse der Immobilie erhalten Sie vom Anbieter.
Infos
| Haustyp | Doppelhaushaelfte |
|---|---|
| Wohnfläche ca. | 140 m2 |
| Grundstücksfläche | 400 m2 |
| Zimmer | 4 |
| Schlafzimmer | 3 |
| Badezimmer | 1 |
Kosten
| Kaltmiete |
1.950 € |
|---|---|
| Nebenkosten | + 250 € |
| Heizkosten | keine Angabe |
| Gesamtmiete | 2.200 € |
| Kaution o. Genossenschaftsanteile | 5.850,00 EUR |
Weiter mieten oder doch kaufen?
Wer in Miete wohnt, überweist dem Vermieter im Laufe der Jahre hohe Summen, die sich
auch in die eigenen vier Wände investieren lassen könnten.
Bausubstanz & Energieausweis
| Baujahr | 2025 |
|---|---|
| Objektzustand | Neuwertig |
| Heizungsart | Fußbodenheizung |
| Wesentliche Energieträger | Erdwärme |
| Energieausweis | liegt vor |
| Energieausweistyp | Bedarfsausweis |
| Energieverbrauchskennwert | 15,6 kWh/(m²*a) |
| Energieeffizienzklasse | A+ |
15,6
kWh/(m²*a)
Energieeffizienzklasse A+
- A+
- A
- B
- C
- D
- E
- F
- G
- H
- 0
- 25
- 50
- 75
- 100
- 125
- 150
- 175
- 200
- 225
- >250
Beschreibung des Objekts
Ausstattung
Einbaumöbel
Abstellkammer
Einbauküche
Blick ins Grüne
PVC
Lage
Das Doppelhaus im Birkenkamp befindet sich in einer ruhigen und familienfreundlichen Wohnlage von Kastorf, einer charmanten Gemeinde im Kreis Herzogtum Lauenburg. Das Umfeld ist geprägt von Einfamilienhäusern, viel Grün und einer gewachsenen Nachbarschaft – ideal für alle, die ländliche Idylle mit guter Anbindung an umliegende Orte verbinden möchten.
Kastorf liegt zentral zwischen den Städten Lübeck, Ratzeburg und Bad Oldesloe. Über die Bundesstraße 208 sowie die nahegelegene Autobahn A20 sind alle drei Städte in rund 20 bis 25 Minuten bequem erreichbar. Auch die Anbindung an den öffentlichen Nahverkehr ist gegeben, sodass sowohl Berufspendler als auch Familien von der Lage profitieren. Für Familien ist die Gemeinde besonders attraktiv: In Kastorf befindet sich ein Kindergarten, der fußläufig oder mit dem Fahrrad schnell erreichbar ist. Die Grundschule liegt ebenfalls im Ort, weiterführende Schulen befinden sich im nahegelegenen Sandesneben, das in nur wenigen Fahrminuten erreichbar ist. Sandesneben stellt zudem das Versorgungszentrum der Region dar und bietet mehrere Einkaufsmöglichkeiten für den täglichen Bedarf – darunter EDEKA, Lidl und weitere Geschäfte des täglichen Lebens. Ergänzt wird das Angebot durch Ärzte, Apotheken, Banken sowie gastronomische Betriebe. Die naturnahe Umgebung rund um Kastorf lädt zu Spaziergängen, Fahrradtouren und Freizeitaktivitäten in der Natur ein. Wälder, Wiesen und kleine Seen in der näheren Umgebung schaffen eine hohe Lebensqualität und bieten Raum für Erholung und Entspannung. Kastorf vereint damit das Beste aus zwei Welten – ruhiges Wohnen im Grünen mit der Nähe zu urbaner Infrastruktur. Ein idealer Ort, um anzukommen und sich wohlzufühlen.
Grundriss
Erdgeschoss
>
>
Obergeschoss
>
>
Adresse
23847 Kastorf
Interessante Orte
Preis- und Lageinformationen
Preistrend für Bestandsimmobilien in Kastorf