Mehrere Einfamilienhäuser preiswert abzugeben. Mietkauf möglich. Altschulden kein Hindernis. Kein Eigenkapital erforderlich.
Preiswerte Mietkaufimmobilie abzugeben. Ohne Eigenkapital möglich.
45772 Marl
Die vollständige Adresse der Immobilie erhalten Sie vom Anbieter.
Auf Karte anzeigen
Die vollständige Adresse der Immobilie erhalten Sie vom Anbieter.
Infos
| Haustyp | Einfamilienhaus |
|---|---|
| Wohnfläche ca. | 125 m2 |
| Nutzfläche | 0 m2 |
| Grundstücksfläche | 400 m2 |
| Zimmer | 3 |
| Schlafzimmer | 3 |
| Badezimmer | 1 |
| Anzahl Garage/Stellplatz | 0 |
Kosten
| Kaltmiete |
1.450 € |
|---|---|
| Nebenkosten | keine Angabe |
| Heizkosten | keine Angabe |
| Gesamtmiete | 1.450 € |
Weiter mieten oder doch kaufen?
Wer in Miete wohnt, überweist dem Vermieter im Laufe der Jahre hohe Summen, die sich
auch in die eigenen vier Wände investieren lassen könnten.
Bausubstanz & Energieausweis
| Baujahr | 2026 |
|---|---|
| Qualität der Austattung | Gehoben |
| Heizungsart | Wärmepumpe |
Beschreibung des Objekts
Ausstattung
Jedes unserer Fertighäuser wird speziell für Sie geplant und ist perfekt auf die Anforderungen und Vorgaben Ihres Bauvorhabens angepasst – Bebauungspläne, eine besondere Grundstückslage und die gewünschten Eigenleistungen werden im Detail geprüft und berücksichtigt.
Jedes Schwabenhaus verfügt standardmäßig über:
- Fussbodenheizung
- Luft-Wasser-Wärme-Pumpe
- 3-Scheiben-Wärmeschutzglas
- elektrische Rollladensteuerung*
- Schwimmender Estrich mit Wärmedämmung
- Sanitär-Objekte von Markenherstellern wie z. B. Villeroy & Boch usw. sowie Echtglas-Duschabtrennung
- 5 Jahre Gewährleistung nach BGB und 30 Jahre Garantie auf die Grundkonstruktion
Ihre Eigenleistung: Malern, Bodenbeläge in Schlaf- und Wohnräumen sowie Inntüren
Lage
Das Grundstück liegt in einer 1 A Lage. Ringsum ruhige Gegend, bestehend aus Einfamilienhäuser. Wald ist direkt in der Nähe. Zudem serh gute Infrastruktur, Einkaufsmöglichkeiten sind vorhanden , sowie Kindergarten und Schulen
Sonstige Angaben
- Miet-Kauf möglich.
- Bonität vorausgesetzt.
- Ohne Einsatz von Eigenkapital möglich
- Altschulden, Verbindlichkeiten kein Hindernis.
Abbildungen können Extras beinhalten.
Ausgewiesener Preis exklusiv Erwerb und sonstigen Baunebenkosten
Bitte haben Sie Verständnis, das die Anfragen chronologisch bearbeitet werden und nur mit kompletten Kontaktdaten beantwortet werden Telefonnummer, Vor- und Zuname und E-Mail. Es handelt sich um ein reales Projekt.
Termine nur nach Vereinbarung in einem unserer regionalen Info-Center.
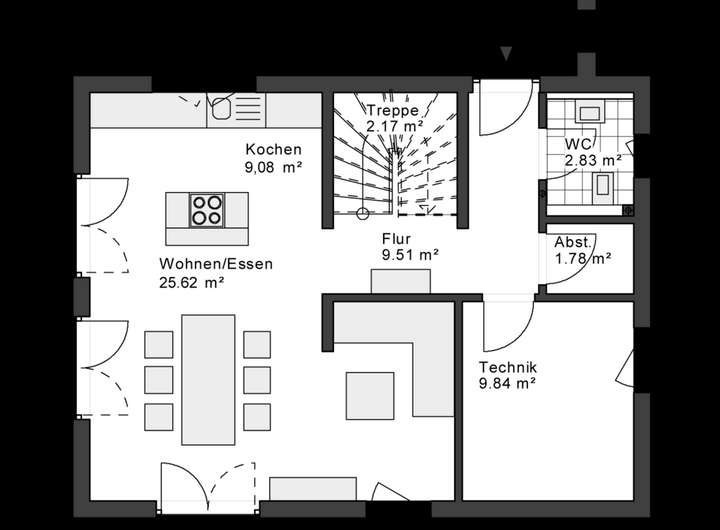
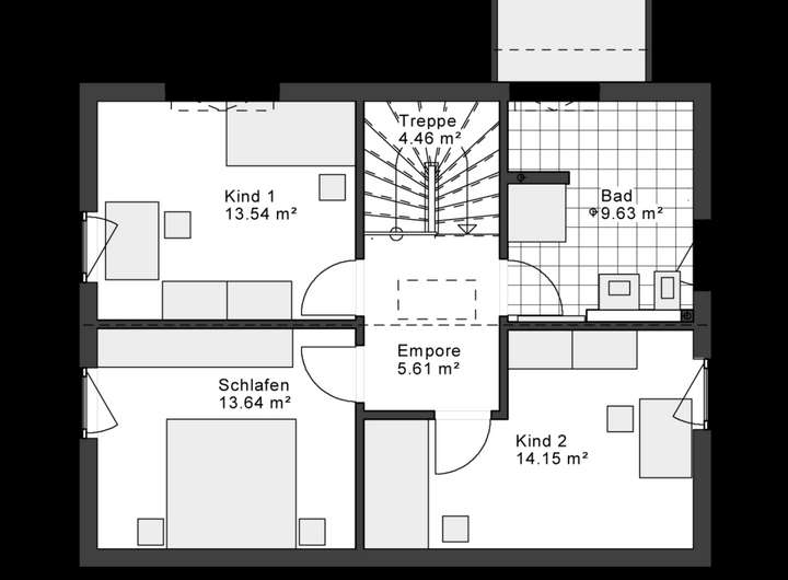
Grundriss
Grundriss EG
>
>
Grundriss OG
>
>
Adresse
45772 Marl
Interessante Orte
Preis- und Lageinformationen
Preistrend für Bestandsimmobilien in Marl