Die schön geschnittene 2,5-Zi Wohnung befindet sich im 2. OG der "Golden Box". Sie ist bequem über einen Fahrstuhl zu erreichen. Besonders hervorzuheben ist die wettergeschützte nach Westen ausgerichtet Loggia, auf der es sich wunderbar vom Alltag erholen lässt. Die Wohnung ist luxuriös ausgestattet. Es gibt eine moderne Einbauküche mit freistehender Kühl- und Gefrierkombination (+70 €/Monat) sowie ein hochwertiges Bad mit Waschtisch- und Unterschrank, WC und großer bodentiefer Dusche.
Zur Wohnung gehört ein Stellplatz in der Tiefgarage (+100 EUR/Monat) mit Abstellmöglichkeiten für Fahrräder sowie ein Keller. Die Waschküche bietet genug Platz für Waschmaschine und Trockner.
Exklusive 2,5-Zi Apartment in der "Golden Box" im Herzen von Kirchheim / Teck
73230 Kirchheim unter Teck
Die vollständige Adresse der Immobilie erhalten Sie vom Anbieter.
Auf Karte anzeigen
Die vollständige Adresse der Immobilie erhalten Sie vom Anbieter.
Infos
| Wohnungskategorie | Etagenwohnung |
|---|---|
| Etage | 2 von 3 |
| Wohnfläche ca. | 60 m2 |
| Nutzfläche | 8 m2 |
| Bezugsfrei ab | sofort |
| Zimmer | 2,5 |
| Schlafzimmer | 1 |
| Badezimmer | 1 |
| Haustiere | Nein |
| Garage/Stellplatz | Tiefgarage |
| Anzahl Garage/Stellplatz | 1 |
Kosten
| Kaltmiete |
900 € |
|---|---|
| Nebenkosten | + 200 € |
| Heizkosten | in Nebenkosten enthalten |
| Gesamtmiete | 1.250 € |
| Miete für Garage/Stellplatz | 80 € |
| Kaution o. Genossenschaftsanteile | 2500 EUR |
Weiter mieten oder doch kaufen?
Wer in Miete wohnt, überweist dem Vermieter im Laufe der Jahre hohe Summen, die sich
auch in die eigenen vier Wände investieren lassen könnten.
Bausubstanz & Energieausweis
| Baujahr | 2022 |
|---|---|
| Objektzustand | Neuwertig |
| Qualität der Austattung | Luxus |
| Heizungsart | Fernwärme |
| Wesentliche Energieträger | Fernwärme |
| Energieausweis | liegt vor |
| Energieausweistyp | Bedarfsausweis |
| Energieverbrauchskennwert | 61,0 kWh/(m²*a) |
| Energieeffizienzklasse | B |
61,0
kWh/(m²*a)
Energieeffizienzklasse B
- A+
- A
- B
- C
- D
- E
- F
- G
- H
- 0
- 25
- 50
- 75
- 100
- 125
- 150
- 175
- 200
- 225
- >250
Beschreibung des Objekts
Ausstattung
* bodentiefe Fenster
* moderne Einbauküche (+70 €/Monat)
* überwiegend elektrische Rollläden
* luxuriöses Badezimmer
* Aufzug
* Hausmeisterservice
* TG-Stellplatz (+100 €/Monat)
Lage
Das Apartment befindet sich in der begehrten Wohnanlage „Golden Box“ in der Otto-Mörike-Straße, einem der gefragtesten Wohnviertel von Kirchheim unter Teck. Die Lage vereint urbanen Wohnkomfort mit naturnaher Lebensqualität und überzeugt durch eine ausgezeichnete Infrastruktur sowie eine stilvolle, moderne Architektur.
Die „Golden Box“ ist nicht nur architektonisch ein Blickfang, sondern steht auch für ein gehobenes, nachhaltiges Wohnkonzept mit hoher Energieeffizienz, zeitgemäßer Ausstattung und durchdachter Raumaufteilung.
In unmittelbarer Umgebung finden sich sämtliche Einrichtungen des täglichen Bedarfs: Supermärkte, Bäckereien, Ärzte, Apotheken und Restaurants sind bequem zu Fuß oder mit dem Fahrrad erreichbar. Auch das Stadtzentrum von Kirchheim unter Teck ist nur wenige Minuten entfernt und lädt mit seiner charmanten Altstadt, vielfältigen Einkaufsmöglichkeiten und gastronomischen Angeboten zum Verweilen ein.
Für Pendler ist die Lage ebenfalls ideal: Der Bahnhof Kirchheim (Teck) ist in wenigen Minuten erreichbar und bietet eine gute Anbindung in Richtung Stuttgart und Ulm. Die nahegelegene A8 (Anschlussstelle Kirchheim-West) ermöglicht eine schnelle Verbindung mit dem Auto Richtung Stuttgart, Flughafen/Messe oder München.
Darüber hinaus profitieren Naturliebhaber von der Nähe zur Schwäbischen Alb sowie zahlreichen Rad- und Wanderwegen rund um Kirchheim. Auch der nahegelegene Bürgersee oder das Erholungsgebiet Teckberg bieten attraktive Freizeitmöglichkeiten in der Natur.
Insgesamt bietet diese Lage eine perfekte Kombination aus urbanem Wohnen, naturnaher Umgebung und hervorragender Infrastruktur – ideal für Singles, Paare oder Kapitalanleger mit Anspruch an Stil und Lebensqualität.
Sonstige Angaben
Wir vermarkten die Immobilie im Alleinauftrag. Nur Anfragen mit vollständiger Angabe von Namen, Anschrift, Telefonnummer und E-Mail Adresse werden beantwortet. Alle vom Makler bereitgestellten Informationen werden als zuverlässig erachtet, aber nicht garantiert und sollten unabhängig verifiziert werden. Wir übernehmen keinerlei Gewähr für die Richtigkeit der Angaben.
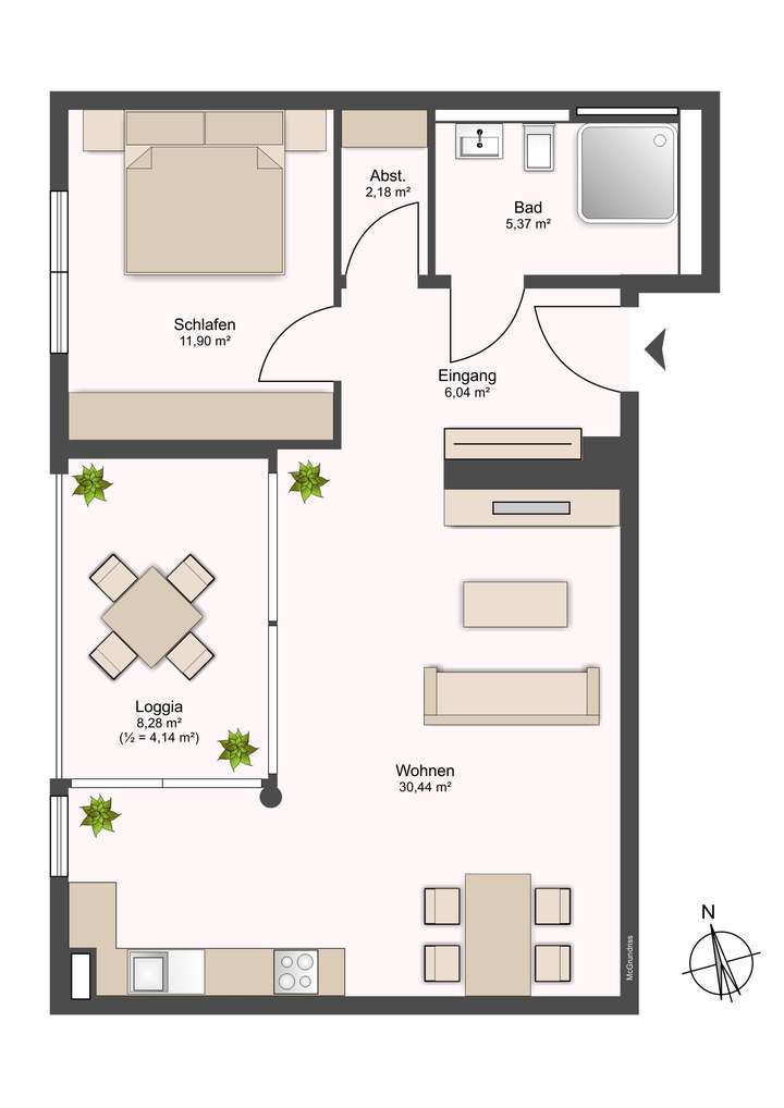
Grundriss
Grundriss Wohnung
>
>
Adresse
73230 Kirchheim unter Teck
Interessante Orte
Preis- und Lageinformationen
Preistrend für Bestandsimmobilien in Kirchheim unter Teck