Attraktive Immobilie in Planung. Mietkauf möglich. Machen Sie den Check: Jetzt prüfen ob Sie Miet-Kauf berechtigt sind!
Raus aus der Alt-Immobilie - Rein in die eigenen vier Wände
- Ohne Eigenkapital
- Trotz Schulden
Vereinbaren Sie jetzt Ihren Termin mit unseren Miet-Kauf-Spezialisten!
Herfors Erstbezug
32049 Herford
Die vollständige Adresse der Immobilie erhalten Sie vom Anbieter.
Auf Karte anzeigen
Die vollständige Adresse der Immobilie erhalten Sie vom Anbieter.
Infos
| Haustyp | Doppelhaushaelfte |
|---|---|
| Wohnfläche ca. | 141 m2 |
| Nutzfläche | 0 m2 |
| Grundstücksfläche | 370,05 m2 |
| Zimmer | 4 |
| Schlafzimmer | 3 |
| Badezimmer | 1 |
| Anzahl Garage/Stellplatz | 0 |
Kosten
| Kaltmiete |
1.596 € |
|---|---|
| Nebenkosten | keine Angabe |
| Heizkosten | keine Angabe |
| Gesamtmiete | 1.596 € |
Weiter mieten oder doch kaufen?
Wer in Miete wohnt, überweist dem Vermieter im Laufe der Jahre hohe Summen, die sich
auch in die eigenen vier Wände investieren lassen könnten.
Bausubstanz & Energieausweis
| Baujahr | 2026 |
|---|---|
| Qualität der Austattung | Gehoben |
| Heizungsart | Wärmepumpe |
Beschreibung des Objekts
Ausstattung
THINK FAST-VOLLENDET PLUS – Bereit für dein Finish.
- Technik, Heizung & Sanitärinstallation sind drin – du kümmerst dich nur um den Feinschliff
- Das Plus mit hochwertigen Sanitärobjekten und Fliesen
- Streichen, Böden verlegen, Türen setzen – du machst, was du willst
- Kein Stress mit Rohbau oder Technik – Fokus nur noch auf den Feinschliff
- Smartes Sparpotenzial – fertig gebaut, individuell finalisiert
- Ideal für Macher mit Anspruch – hochwertige Basis für deinen Stil
Für alle, die mitgestalten wollen – ohne auf Komfort zu verzichten.
Lage
Das Grundstück befindet sich in einer ruhig gelegenen Sackgasse.
- Zwischen H2O und Tierpark
- nähe Kindergarten und Schule
Alles für den täglichen Bedarf, wie z.B. ein Supermarkt, eine Sparkasse, Ärzte und eine Apotheke
befinden sich in unmittelbarer Nähe, sowie eine
Grundschule, weiterführende Schule und Kindergärten die Sie in wenigen Minuten zu Fuß erreichen können.
Busverbindungen zur Herforder Innenstadt, wie
auch die Innenstadt von Bad Salzuflen sind in der
nähe
Sonstige Angaben
Wichtig
Wir bauen mit sehr viel Herz unsere Häuser. Im Interesse der jeweiligen Grundstückseigentümer sowie meiner Bauherren werden wir ohne ein persönliches Gespräch zum Thema Hausbau, nie irgendwelche Grundstücksdaten weiterleiten. Keine Ausnahmen an dieser Stelle.
Und... natürlich ist es selbst mit bestem Willen nicht möglich, eine dauerhafte Verfügbarkeit der Grundstücke zu garantieren. Es gibt jedes Grundstück halt nur einmal - Also seien Sie der Erste.
Wir laden Sie gerne zu einem persönlichen Gespräch in unser Musterhaus Wuppertal und Info Büro Bielefeld ein. Nur vollständig ausgefüllte Anfragen können auch beantwortet werden. Vereinbaren Sie noch heute einen Termin mit uns und kommen Sie Ihrem Traum von den eigenen 4 Wänden ein Stück näher.
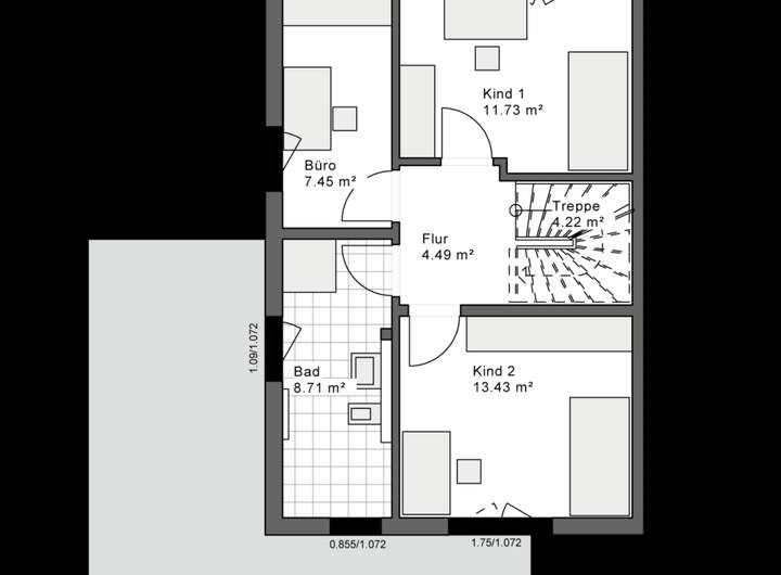
Grundriss
Grundriss EG
>
>
Grundriss OG
>
>
Grundriss DG
>
>
Adresse
32049 Herford
Interessante Orte
Preis- und Lageinformationen
Preistrend für Bestandsimmobilien in Herford