Das großzügige Einfamilienhaus erstreckt sich über zwei Etagen mit einer Gesamtnutzfläche von 234m² im idyllischen Hamburg-Schnelsen.
Die Immobilie überzeugt mit dem großen Wohnzimmer, der hohen Decke, großem Fenster und der Galerie mit Blick in die oberere Etage.
Im Erdgeschoss befinden sich zudem folgende Zimmer und Ausstattungen:
-Hauptschlafzimmer
-Umkleide/Schrankzimmer
-Küche mit Sitzecke
-Badezimmer (WC, Voll- & Duschbad, zwei Waschbecken, Handtuchheizkörper
-En Suite Schlafzimmer mit eigenem Duschbad
Im Obergeschoss befindet sich die Galerie mit einem offenen Raum und Blick in den Wohnbereich sowie ein sehr großzügiges Arbeits-/Schlafzimmer.
Außenbereich:
Vom Wohnbereich betritt man die Terrasse und den großflächigen Garten mit Teich.
Die ebenerdige Doppelgrage ist mit direktem Zugang zum Haus
daran gibt es einen Heizungs- sowie Hauswirtschaftsraum
Das Mietobjekt kann sowohl unmöbliert als auch teilmöbliert angemietet werden. Die Mindestmietdauer beträgt 6 Monate.
Es wird eine All-Inklusivmiete vereinbart. Sämtliche Betriebskosten laut Betriebskostenverordnung, die auf das Wohnhaus zutreffen, sind inklusive. Dies gilt auch für Heizung, Warmwasser sowie Strom.
Internet-telefonie ist auch inbegriffen.
Im unwahrscheinlichen Falle einer enormen Preisentwicklung der Energiekosten könnte eine Nachzahlung nachträglich erfolgen.
Großzügiges Einfamilienhaus in Hamburg-Schnelsen.
22457 Hamburg
Die vollständige Adresse der Immobilie erhalten Sie vom Anbieter.
Auf Karte anzeigen
Die vollständige Adresse der Immobilie erhalten Sie vom Anbieter.
Infos
| Haustyp | Einfamilienhaus |
|---|---|
| Etagenzahl | 2 |
| Wohnfläche ca. | 234 m2 |
| Nutzfläche | 234 m2 |
| Grundstücksfläche | 850 m2 |
| Zimmer | 5 |
| Schlafzimmer | 3 |
| Badezimmer | 2 |
| Haustiere | Nach Vereinbarung |
| Garage/Stellplatz | Garage |
| Anzahl Garage/Stellplatz | 2 |
Kosten
| Kaltmiete |
2.600 € |
|---|---|
| Nebenkosten | + 900 € |
| Heizkosten | in Nebenkosten enthalten |
| Gesamtmiete | 3.500 € |
| Kaution o. Genossenschaftsanteile | 7800.0 |
Weiter mieten oder doch kaufen?
Wer in Miete wohnt, überweist dem Vermieter im Laufe der Jahre hohe Summen, die sich
auch in die eigenen vier Wände investieren lassen könnten.
Bausubstanz & Energieausweis
| Baujahr | 1983 |
|---|---|
| Objektzustand | Gepflegt |
| Qualität der Austattung | Normal |
| Heizungsart | Zentralheizung |
| Wesentliche Energieträger | Gas |
Beschreibung des Objekts
Lage
Das gepflegte Mietshaus befindet sich in der Holsteiner Chaussee im idyllischen Hamburger Stadtteil Schnelsen, einer ruhigen und grünen Wohnlage im Nordwesten der Stadt. In der Umgebung finden sich zahlreiche Grünflächen und kleine Parks, die zu Spaziergängen und Erholung im Freien einladen.
Einkaufsmöglichkeiten für den täglichen Bedarf – darunter Supermärkte, Bäckereien, Apotheken und kleine Geschäfte – sind bequem zu Fuß erreichbar. Auch Cafés und Restaurants sorgen in der näheren Umgebung für Abwechslung.
Die Verkehrsanbindung ist hervorragend: Mehrere Buslinien verkehren direkt entlang der Holsteiner Chaussee und bieten Anschluss an die AKN-Station Schnelsen (A1) sowie an die A7, über die das Hamburger Stadtzentrum und das Umland schnell erreichbar sind.
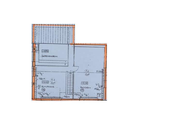
Grundriss
Haus EG
>
>
Haus DG
>
>
Adresse
22457 Hamburg
Interessante Orte
Preis- und Lageinformationen
Preistrend für Bestandsimmobilien in Schnelsen