Arbeiten und Wohnen in einem Haus oder Nutzung als Zweifamlienhaus mit zwei Wohnungen
Dieses im Jahr 2000 auf einem 1.176 m² großen Grundstück erbaute, moderne Zweifamilienhaus verfügt über 196,04 m² Wohnfläche im Erdgeschoss und über 111,78 m² Wohn-/Nutzfläche im Dachgeschoss, was als separate Wohnung oder auch Gewerbeeinheit nutzbar ist.
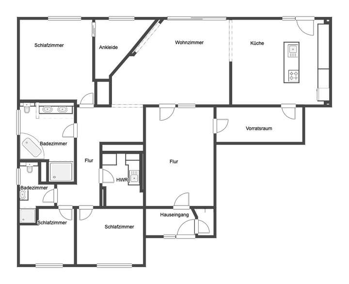
Das große Erdgeschoss bietet Ihnen modernes Wohnen auf einer Ebene: ein offener, heller Wohn- und Essbereich mit Zugang zur Terrasse, eine voll ausgestattete Küche mit Vorratsraum, drei Schlafzimmer, zwei Bäder sowie ein großzügiger Eingangsbereich.
Vom Wohnbereich gelangen Sie direkt in den Garten, der mit seinen großzügigen Flächen viel Platz zur Entspannung bietet. Der Pool im Garten ist defekt und kann nicht genutzt werden (im Mietpreis ist dies bereits berücksichtigt).
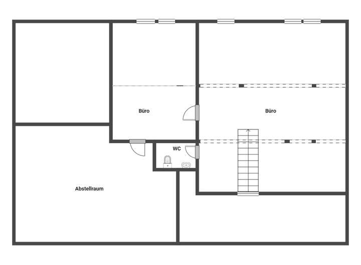
Das Dachgeschoss ist derzeit als Gewerbeeinheit ausgebaut und eignet sich ideal für Büro, Praxis oder Atelier. Es lässt sich ohne großen Aufwand von der privaten Wohneinheit trennen (wurde zeitweise auch so genutzt). Ebenso ist die Nutzung als separate Wohnung möglich. Die Installation einer Dusche ist möglich und kann mit dem Eigentümer besprochen werden.
Die Immobilie ist ab sofort bezugsfrei und bietet Ihnen eine ideale Kombination aus Wohnen und Arbeiten in ruhiger Umgebung mit exzellenter Anbindung an Berlin.
Befristung des Mietvertrages auf 3-5 Jahre mit Option auf Verlängerung
Eine Garage mit zwei Stellplätzen kann zusätzlich für 200€/Monat angemietet werden.
Es besteht die Möglichkeit auch nur das Erdgeschoss anzumieten.
Leben und Arbeiten in Großziethen – Zweifamilienhaus mit großem Garten und Gewerbeeinheit
12529 Schönefeld
Die vollständige Adresse der Immobilie erhalten Sie vom Anbieter.
Auf Karte anzeigen
Die vollständige Adresse der Immobilie erhalten Sie vom Anbieter.
Infos
| Haustyp | Mehrfamilienhaus |
|---|---|
| Etagenzahl | 2 |
| Wohnfläche ca. | 307 m2 |
| Grundstücksfläche | 1.176 m2 |
| Zimmer | 6 |
| Schlafzimmer | 3 |
| Badezimmer | 3 |
| Garage/Stellplatz | Garage |
| Anzahl Garage/Stellplatz | 2 |
Kosten
| Kaltmiete |
3.700 € |
|---|---|
| Nebenkosten | + 450 € |
| Heizkosten | keine Angabe |
| Gesamtmiete | 4.150 € |
| Kaution o. Genossenschaftsanteile | 11100 |
Weiter mieten oder doch kaufen?
Wer in Miete wohnt, überweist dem Vermieter im Laufe der Jahre hohe Summen, die sich
auch in die eigenen vier Wände investieren lassen könnten.
Bausubstanz & Energieausweis
| Baujahr | 2000 |
|---|---|
| Objektzustand | Gepflegt |
| Heizungsart | Wärmepumpe |
| Wesentliche Energieträger | Erdgas schwer |
| Energieausweis | liegt vor |
| Energieausweistyp | Verbrauchsausweis |
| Energieverbrauchskennwert | 107,7 kWh/(m²*a) |
| Energieeffizienzklasse | D |
107,7
kWh/(m²*a)
Energieeffizienzklasse D
- A+
- A
- B
- C
- D
- E
- F
- G
- H
- 0
- 25
- 50
- 75
- 100
- 125
- 150
- 175
- 200
- 225
- >250
Beschreibung des Objekts
Ausstattung
Betriebskosten (inkl. Müll, Straßenreinigung, Winterdienst, Grundsteuer, Wasser):
Monatliche Betriebskostenvorauszahlung Erdgeschoss: 300,- €
Monatliche Betriebskostenvorauszahlung Dachgeschoss: 150,- €
Über Strom und Gas muss der Mieter einen separaten Vertrag abschließen.
Fußböden:
- EG: Vinyl, Bäder gefliest
- DG: Vinyl, WC gefliest
Besonderheiten:
- hochwertige Küche inkl. Elektrogeräten (im Mietpreis enthalten)
- Fußbodenheizung
- Gartenhaus
- Garage
- Gas-Wärmepumpe
==========================================
Zur Anmietung des Hauses werden folgende Unterlagen benötigt:
- Gehaltsnachweise der letzten 3 Monate
- Kopie des Personalausweises
- Mietschuldenfreiheitsbestätigung vom Vermieter
- Schufa-Auskunft
Für Selbstständige:
- BWA vom Vorjahr und vom laufenden Jahr
- letzten Einkommenssteuerbescheid oder adäquates Bestätigungsschreiben vom Steuerberater
Lage
Das Einfamilienhaus liegt in ruhiger Feldrandlage im Rosa-Luxemburg-Weg in Großziethen, einem Ortsteil der Gemeinde Schönefeld im Landkreis Dahme-Spreewald. Die Lage bietet ein naturnahes Wohnumfeld mit viel Grün und hoher Lebensqualität, nur etwa 650 Meter von der Berliner Stadtgrenze entfernt. Die angrenzenden Bezirke Rudow, Lichtenrade und Buckow sind schnell erreichbar.
Der Flughafen BER liegt nur ca. 13 Autominuten entfernt. Auch die Berliner Stadtautobahn A100 sowie der südliche Berliner Ring sind bequem zu erreichen. Die nächste Bushaltestelle ist nur 130 Meter entfernt, was die Anbindung an den öffentlichen Nahverkehr erleichtert.
Einkaufsmöglichkeiten, Ärzte und weitere Einrichtungen des täglichen Bedarfs befinden sich in unmittelbarer Nähe. Supermärkte wie Netto und REWE sind in rund fünf Minuten mit dem Auto erreichbar. Für größere Einkäufe bietet sich das nahegelegene Shoppingcenter „Gropius Passagen“ an, das nur etwa zehn Minuten entfernt ist. Kitas und Schulen befinden sich in Alt-Großziethen und sind sowohl zu Fuß, mit dem Fahrrad als auch mit dem Bus schnell zu erreichen.
Die Kombination aus ruhiger Lage, guter Infrastruktur und Nähe zur Hauptstadt macht diesen Standort besonders attraktiv für Familien und Berufspendler.
Sonstige Angaben
Die in diesem Exposé gemachten Aussagen beruhen auf Auskünften Dritter. Die Grundrisse und die Flächenangaben des Auftraggebers zur Wohn- bzw. Nutzfläche sind unverbindlich. Wir übernehmen daher keine Haftung für die hier gemachten Angaben, insbesondere für Preise, Flächenangaben, Grundrisse oder Lageskizzen.
===============
Wollen auch Sie Ihre Immobilie vom Profi vermarktet bekommen (mit Objektvideo, Drohnenansichten, 3D-Animationen, virtuellem Staging und vielem mehr), dann freue ich mich auf Ihren Anruf: 030-77907171
Gerne führe ich ein kostenfreies Beratungsgespräch und werte Ihre Immobilie ein!
Weitere Dokumente
EnergieausweisGrundriss
Erdgeschoss
>
>
1. Etage
>
>
Adresse
12529 Schönefeld
Interessante Orte
Preis- und Lageinformationen
Preistrend für Bestandsimmobilien in Schönefeld