Die Wohnung ist ideal, wenn folgende Punkte wichtig sind: – Erstbezug nach Sanierung – Fußbodenheizung – hochwertiger Fußbodenbelag Vinyl-Designe als Eiche "Grigna"– Wannen-Duschbad mit Fenster – Abstellraum – die Terrasse wird über eine Größe von ca. 20 m² verfügen – 2 Stellplätze, auf Wunsch können weitere angemietet werden – schnelles DSL verfügbar mit bis zu 250 MBit/s im Download und bis zu 40 MBit/s im Upload (gem. Dt. Telekom) – In rechtzeitiger Absprache kann sicherlich eine weitestgehende Barrierefreiheit in und vor der Wohnung hergestellt werden. – alle Wohnungen auf einen Blick: https://www.mietbeginn.de/wohnung-mieten-stolpen
ERSTBEZUG NACH SANIERUNG – TERRASSE – GÄSTE-WC – FUSSBODENHEIZUNG
01833 Stolpen
Die vollständige Adresse der Immobilie erhalten Sie vom Anbieter.
Auf Karte anzeigen
Die vollständige Adresse der Immobilie erhalten Sie vom Anbieter.
Infos
| Wohnungskategorie | Terrassenwohnung |
|---|---|
| Etage | 0 von 4 |
| Wohnfläche ca. | 107 m2 |
| Bezugsfrei ab | 01.04.2026 01:00 |
| Zimmer | 3 |
| Badezimmer | 1 |
| Garage/Stellplatz | Außenstellplatz |
| Anzahl Garage/Stellplatz | 2 |
Kosten
| Kaltmiete |
1.023 € |
|---|---|
| Nebenkosten | + 246 € |
| Heizkosten | in Nebenkosten enthalten |
| Gesamtmiete | 1.274 € |
| Miete für Garage/Stellplatz | 50 € |
| Kaution o. Genossenschaftsanteile | 3.069,00 EUR |
Weiter mieten oder doch kaufen?
Wer in Miete wohnt, überweist dem Vermieter im Laufe der Jahre hohe Summen, die sich
auch in die eigenen vier Wände investieren lassen könnten.
Bausubstanz & Energieausweis
| Baujahr | 1904 |
|---|---|
| Letzte Sanierung | 2025 |
| Objektzustand | Erstbezug nach Sanierung |
| Qualität der Austattung | Gehoben |
| Heizungsart | Zentralheizung |
| Wesentliche Energieträger | Gas |
| Energieausweis | laut Gesetz nicht erforderlich |
Beschreibung des Objekts
Lage
Willkommen in Stolpen – dem charmanten Tor zur Sächsischen Schweiz! Die Wohnung befindet sich in ruhiger und dennoch äußerst gut angebundener Lage, einer beliebten Wohngegend. Stolpen ist nicht nur durch seine historische Burg ein echter Hingucker, sondern auch ein lebendiger Wohnort mit hoher Lebensqualität. Hier trifft Geschichte auf Natur – und das in einer Umgebung, die Ruhe und Erholung bietet, ohne auf die Vorteile der Stadt verzichten zu müssen. Die Infrastruktur lässt keine Wünsche offen: Einkaufsmöglichkeiten, Bäcker, Ärzte, Apotheken sowie Kitas und Schulen sind schnell erreichbar – teils sogar fußläufig. Pendler profitieren von der guten Anbindung an Bischofswerda, Pirna und Dresden, ob mit dem Auto oder dem ÖPNV. Eine Bushaltestelle befindet sich ganz in der Nähe, und der Bahnhof Stolpen ist in wenigen Minuten mit dem Fahrrad erreichbar. Für Naturliebhaber beginnt die Erholung direkt vor der Haustür: Die beeindruckende Felsenwelt der Sächsischen Schweiz, ausgedehnte Wanderwege und grüne Wiesen laden zum Durchatmen und Entspannen ein. Wer es aktiver mag, findet Radwege, Sportvereine und Freizeitangebote direkt im Ort. Kurz gesagt: Diese Lage vereint ländliche Idylle mit urbaner Nähe – ideal für Singles, Paare und Familien, die entspannt wohnen und trotzdem gut angebunden bleiben wollen.
Sonstige Angaben
Sie sind Eigentümer und möchten Ihre Immobilie verkaufen oder vermieten?
In einer für Sie kostenfreien Erstberatung erhalten Sie eine exklusive und vor allem aktuelle Marktwerteischätzung. Aussagekräftige und hochwertige Exposés sind garantiert. Gern unterstütze ich Sie persönlich beim Verkauf oder der Vermietung Ihrer Immobilie. Senden Sie mir hierzu eine unverbindliche Anfrage über das Portal oder rufen mich direkt unter 035120661220 an. Auf Ihre Anfrage und eine mögliche Zusammenarbeit freue ich mich bereits jetzt.
Auf Ihren Anruf freuen wir uns!
Ansprechpartner:
Stephan Warnecke
Mietbeginn Immobilienmakler®
Hans-Fromm-Straße 4
01097 Dresden
www.mietbeginn.de
Tel.: 0351 20 66 12 20
Fax: 0351 20 66 12 25
Immobilienmakler in Dresden und Umgebung, Radebeul, Meißen, Freital, Heidenau, Dohna, Pirna, Chemnitz, Sachsen und das südliche Brandenburg - Immobilie verkaufen und vermieten - Aktuelle Immobilienpreise, Grundstückspreise, Hauspreise, Wohnungspreise, Kaufpreise und Mietpreise in Dresden
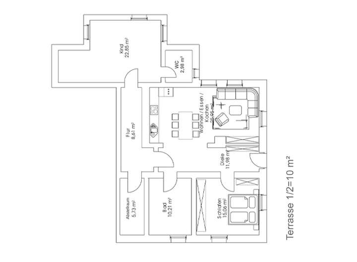
Grundriss
Grundriss
>
>
Adresse
01833 Stolpen
Interessante Orte
Preis- und Lageinformationen
Preistrend für Bestandsimmobilien in Stolpen