In einem attraktiven Neubaugebiet in Neetze, nur wenige Minuten von der historischen Hansestadt Lüneburg entfernt, entsteht diese hochwertige Doppelhaushälfte auf einem großzügigen 375 m² großen Eigentumsgrundstück. Mit einer durchdachten Wohnfläche von 107 m² und insgesamt vier hellen Zimmern bietet dieses Zuhause viel Platz für die ganze Familie. Drei gemütliche Schlafzimmer sorgen für Rückzugsorte und Privatsphäre, während der offen gestaltete Wohn- und Essbereich mit integrierter Küche zum Mittelpunkt des Familienlebens wird. Hier genießen Sie modernes Wohnen in entspannter Atmosphäre – perfekt zum Entspannen, Kochen und gemeinsamen Beisammensein.
Besonders praktisch: Ein separater Hauswirtschaftsraum schafft zusätzlichen Stauraum und erleichtert den Alltag. Das stilvolle Vollbad lädt zum Wohlfühlen ein, während das Gäste-WC mit zusätzlicher Dusche für Flexibilität sorgt – ideal für Familienbesuch oder Übernachtungsgäste. Die Ausstattung lässt keine Wünsche offen: Hochwertige Materialien, eine massive Bauweise mit moderner Verklinkerung sowie zentral gesteuerte Jalousien bieten Komfort und Sicherheit auf höchstem Niveau.
Auch energetisch ist dieses Haus bestens für die Zukunft gerüstet. Die umweltfreundliche Luft-Wasser-Wärmepumpe sorgt für angenehme Wärme, während die leistungsstarke Photovoltaikanlage mit 10 kW Speicher nicht nur die Umwelt schont, sondern auch Ihre Energiekosten spürbar senkt. Die Terrasse lädt zu sonnigen Stunden im eigenen Garten ein und die bereits fertiggestellten Pflasterarbeiten inklusive zweier PKW-Stellplätze runden das Angebot ab.
Die Fertigstellung ist für Dezember 2025 geplant – sichern Sie sich jetzt Ihr neues Zuhause und genießen Sie schon bald modernen Wohnkomfort in einer der begehrtesten Lagen der Region.
- Moderne Neubau Doppelhaushälfte in Neetze zu vermieten -
Im Felde 34,
21398 Neetze
Auf Karte anzeigen
Infos
| Haustyp | Doppelhaushaelfte |
|---|---|
| Wohnfläche ca. | 107 m2 |
| Grundstücksfläche | 375 m2 |
| Bezugsfrei ab | 01.01.2026 |
| Zimmer | 4 |
| Schlafzimmer | 3 |
| Badezimmer | 2 |
| Haustiere | Nach Vereinbarung |
| Garage/Stellplatz | Außenstellplatz |
| Anzahl Garage/Stellplatz | 2 |
Kosten
| Kaltmiete |
1.500 € |
|---|---|
| Nebenkosten | + 150 € |
| Heizkosten | keine Angabe |
| Gesamtmiete | 1.650 € (zzgl. Heizkosten) |
Weiter mieten oder doch kaufen?
Wer in Miete wohnt, überweist dem Vermieter im Laufe der Jahre hohe Summen, die sich
auch in die eigenen vier Wände investieren lassen könnten.
Bausubstanz & Energieausweis
| Baujahr | 2025 |
|---|---|
| Objektzustand | Erstbezug |
| Qualität der Austattung | Gehoben |
| Heizungsart | Wärmepumpe |
| Wesentliche Energieträger | Strom |
| Energieausweis | liegt zur Besichtigung vor |
Beschreibung des Objekts
Ausstattung
- zentrale Lüftungsanlage
- Photovoltaikanlage mit 10 KW Speicher
- Luft Wasser Wärmepumpe
- Gäste WC mit Dusche
- Vollbad im OG
- Eigentumsgrundstück
- massive Bauweise
- Hauswirtschaftsraum
- Rollläden zentral gesteuert
- Terrasse
- Pfalsterarbeiten enthalten
Lage
Die Immobilie liegt in Neetze. In der Umgebung befindet sich Bleckede. Die Buslinien 5100, 5110 und 5111 sind fußläufig zu erreichen. Fußläufig vom Objekt entfernt gibt es zwei Bäckereien, zwei Ärzte, zwei Restaurants, ein Café und einen Supermarkt. Zwei Fitnessstudios, eine Buchhandlung, eine Reinigung, eine Bibliothek und eine Apotheke sind ebenso in der Nähe vorhanden. Verschiedene Erholungs- und Sportangebote erreichen Sie schließlich ebenfalls im größeren Umkreis.
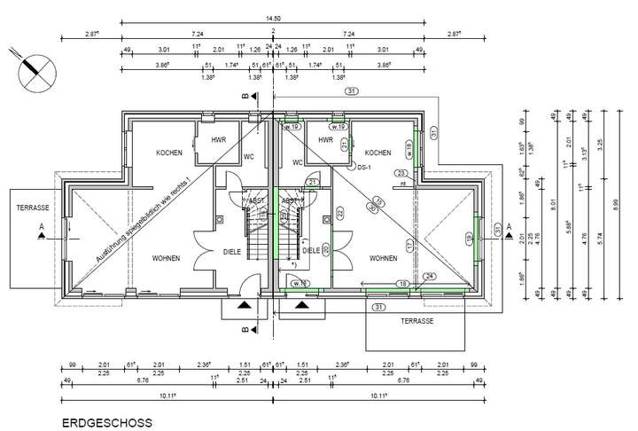
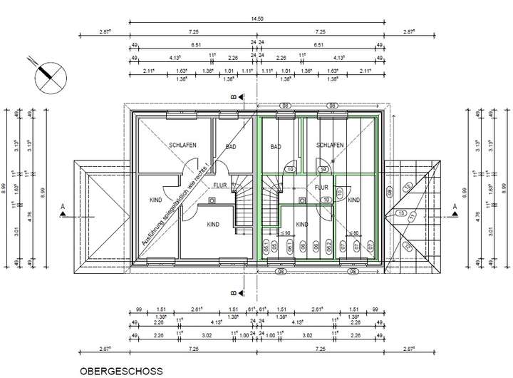
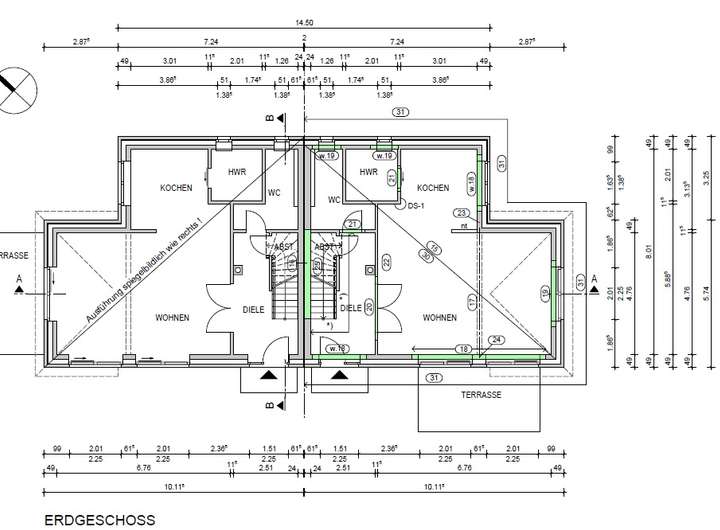
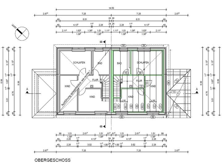
Grundriss
Grundriss Erdgeschoss
>
>
Grundriss Obergeschoss
>
>
Adresse
Im Felde 34, 21398 Neetze
Interessante Orte
Preis- und Lageinformationen
Preistrend für Bestandsimmobilien in Neetze