Der Klassiker – diese Wohnungen sind Kult! Die Grundrisse sind effektiv gestaltet – die Wege kurz, das Platzangebot optimiert! Stellplätze für Ihr Auto stehen vor dem Haus kostenfrei zur Verfügung.
Einkaufsmöglichkeiten sind fußläufig gut erreichbar und eine Grundschule ist in unmittelbarer Nähe.
Infos
| Wohnungskategorie | Etagenwohnung |
|---|---|
| Etage | 4 von |
| Wohnfläche ca. | 55 m2 |
| Bezugsfrei ab | sofort |
| Zimmer | 3 |
Kosten
| Kaltmiete |
370 € |
|---|---|
| Nebenkosten | + 70 € |
| Heizkosten | + 90 € |
| Gesamtmiete | 530 € (zzgl. Heizkosten) |
| Kaution o. Genossenschaftsanteile | 1.110,00 € |
Weiter mieten oder doch kaufen?
Wer in Miete wohnt, überweist dem Vermieter im Laufe der Jahre hohe Summen, die sich
auch in die eigenen vier Wände investieren lassen könnten.
Bausubstanz & Energieausweis
| Baujahr | 1987 |
|---|---|
| Heizungsart | Fernwärme |
| Wesentliche Energieträger | Fernwärme |
| Energieausweis | liegt vor |
| Energieausweistyp | Verbrauchsausweis |
| Energieverbrauchskennwert | 74,0 kWh/(m²*a) |
| Energieeffizienzklasse | B |
74,0
kWh/(m²*a)
Energieeffizienzklasse B
- A+
- A
- B
- C
- D
- E
- F
- G
- H
- 0
- 25
- 50
- 75
- 100
- 125
- 150
- 175
- 200
- 225
- >250
Beschreibung des Objekts
Ausstattung
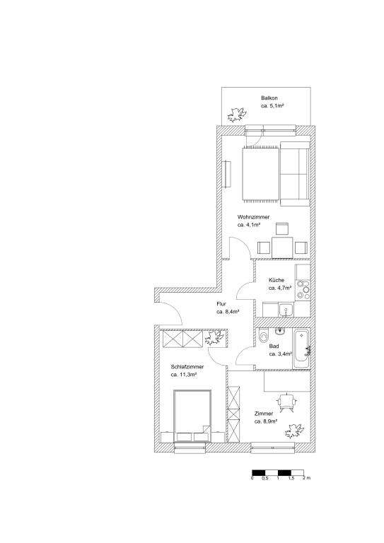
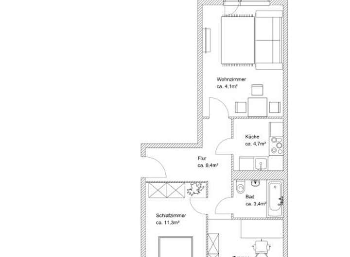
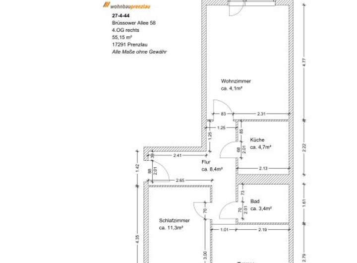
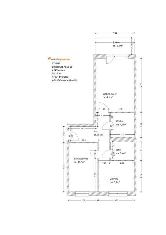
Diese 3-Raum-Wohnung liegt im 4. Obergeschoss und verfügt über ein Wannenbad sowie einen großzügigen Balkon. Die Küche punktet mit einer Durchreiche zum Wohnzimmer.
Lage
Die Stadt Prenzlau ist die Kreisstadt der wunderschönen Uckermark und liegt verkehrsgünstig etwa 100 km nördlich von Berlin und 50 km westlich von Stettin.
Kultur- und Naturliebhaber schätzen die Attraktivität der Stadt, die sich in den letzten Jahren zu einem beliebten Urlaubsziel entwickelt hat. Prenzlau punktet mit einem breit gefächerten Erziehungs- und Bildungsangebot. Neben Kitas, Grund- und weiterführenden Schulen gibt es in Prenzlau darüber hinaus ein Oberstufenzentrum, eine Volkshochschule, eine Musikschule, sowie diverse Aus-, Weiterbildungs- und Umschulungseinrichtungen. Mitten im Stadtgebiet verschmelzen Architektur und Freizeit in seiner schönsten Form: Freilichtbühne, Dominikanerkloster, Uckerseehalle und Seebad laden zum Verweilen und Genießen ein. Prenzlaus Infrastruktur ist gut ausgestattet – Fachgeschäfte, Ärzte, Krankenhaus, Kino, Restaurants und Cafés sind zentral gelegen und schnell erreichbar. Der Stadtbus und auch die Bahn (Richtung Berlin/Stralsund) fahren stündlich.
Stadtgebiet Igelpfuhl – Beste Aussichten für alle Generationen
Wer im Igelpfuhl lebt, schätzt die Wohnungen in familienfreundlichen Größen und die zahlreichen Spiel- und Bolzplätze. Das Stadt-Quartier profitiert vom Einkaufszentrum in der Mitte des Wohngebiets, den Kindergärten, einer Grund- und Oberschule. Zahlreiche Einrichtungen sorgen auch nach Schulschluss für einen erlebnisreichen Tag, zum Beispiel das Freizeitzentrum "Uckerwelle" sowie das Bürgerhaus.
Zum Leben mit Kindern gehört natürlich auch die Generation der Großeltern. Das altersgerechte Wohnhaus am Dreke-Ring 47 ist ein weiterer Pluspunkt.
Das Stadtzentrum ist mit dem Bus gut zu erreichen. Ein schöner Radweg führt abseits der Straßen in die Innenstadt.
Grundriss
Grundriss bemaßt
>
>
Grundriss möbliert
>
>
Adresse
Brüssower Allee 58, 17291 Prenzlau
Interessante Orte
Preis- und Lageinformationen
Preistrend für Bestandsimmobilien in Prenzlau