Diese sofort bezugsfertige Neubau-Doppelhaushälfte bietet ein komfortables und zeitgemäßes Wohnerlebnis auf einer Wohnfläche von ca. 158 m². Mit ihrem modernen Design und der hochwertigen Ausstattung lässt sie keine Wünsche offen.
Der Eingangsbereich begrüßt Sie mit einem ca. 7 m² langen Flur, der den ersten Eindruck von Großzügigkeit und Offenheit vermittelt. Direkt zur rechten Seite befindet sich ein praktisches Gäste-WC, das Ihren Gästen Privatsphäre bietet.
Das Wohnzimmer beeindruckt durch Großflächigkeit und einer schönen Aufgliederung vom Koch- über Ess- in den Wohnbereich. Die moderne Gestaltung, viele Fenster und die helle Atmosphäre schaffen eine einladende und gemütliche Umgebung. Von hier aus gelangen Sie direkt auf eine großzügige Holzterrasse aus Bangkirai, die den Wohnbereich erweitert und eine ideale Möglichkeit zum Entspannen im Freien bietet.
Der großflächige Garten erstreckt sich hinter dem Haus und bietet vielfältige Nutzungsmöglichkeiten. Hier können Sie Ihre individuellen Gartenideen umsetzen und eine grüne Oase der Ruhe und Erholung gestalten. Ein Treppenaufgang führt von der Terrasse in den Garten und erleichtert den Zugang zu diesem idyllischen Bereich.
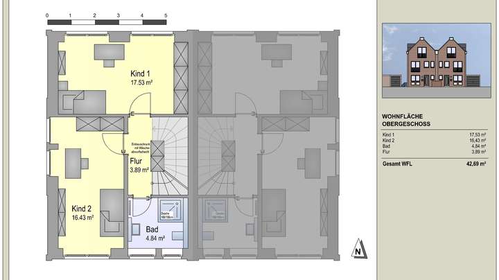
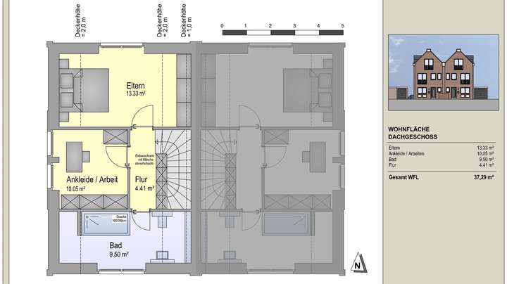
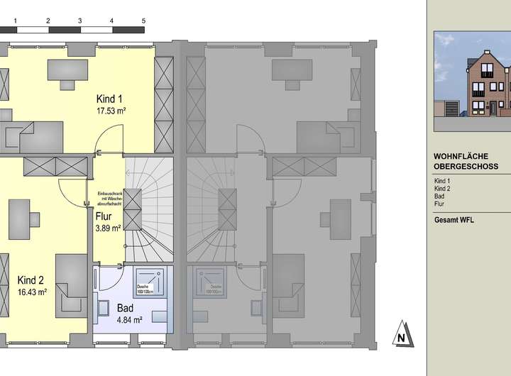
Das Obergeschoss erreichen Sie über eine edle Stahlbetontreppe, mit Eichenholzstufen massiv astig belegt und einem Handlauf aus Eiche. Im Obergeschoss befinden sich zwei Kinderzimmer und ein Duschbad auf einer Fläche von ca. 43 m². Die Kinder haben hier ausreichend Platz zum Spielen, Lernen und Entfalten. Das Dachgeschoss beeindruckt mit seinen charmanten Schrägen und bietet ein Elternzimmer, das mit seinem besonderen Ambiente zum Wohlfühlen einlädt. Ein angrenzendes Ankleidezimmer oder Arbeitszimmer bietet zusätzliche Möglichkeiten der Nutzung. Das ca. 10 m² große Wannenbad verwöhnt mit moderner Ausstattung und lädt zu entspannten Badeerlebnissen ein.
Sofort bezugsfertige, hochwertig ausgestattete Neubau Doppelhaushälfte
40489 Düsseldorf
Die vollständige Adresse der Immobilie erhalten Sie vom Anbieter.
Auf Karte anzeigen
Die vollständige Adresse der Immobilie erhalten Sie vom Anbieter.
Infos
| Haustyp | Doppelhaushaelfte |
|---|---|
| Etagenzahl | 3 |
| Wohnfläche ca. | 157 m2 |
| Nutzfläche | 32,18 m2 |
| Grundstücksfläche | 248 m2 |
| Bezugsfrei ab | sofort |
| Zimmer | 5 |
| Schlafzimmer | 4 |
| Badezimmer | 3 |
| Haustiere | Nach Vereinbarung |
Kosten
| Kaltmiete |
2.950 € |
|---|---|
| Nebenkosten | + 200 € |
| Heizkosten | keine Angabe |
| Gesamtmiete | 3.150 € |
| Kaution o. Genossenschaftsanteile | 8850 |
Weiter mieten oder doch kaufen?
Wer in Miete wohnt, überweist dem Vermieter im Laufe der Jahre hohe Summen, die sich
auch in die eigenen vier Wände investieren lassen könnten.
Bausubstanz & Energieausweis
| Baujahr | 2023 |
|---|---|
| Objektzustand | Erstbezug |
| Heizungsart | Fußbodenheizung |
| Energieausweis | liegt vor |
| Energieausweistyp | Bedarfsausweis |
| Energieverbrauchskennwert | 23,2 kWh/(m²*a) |
| Energieeffizienzklasse | A+ |
23,2
kWh/(m²*a)
Energieeffizienzklasse A+
- A+
- A
- B
- C
- D
- E
- F
- G
- H
- 0
- 25
- 50
- 75
- 100
- 125
- 150
- 175
- 200
- 225
- >250
Beschreibung des Objekts
Ausstattung
- Neubau / Erstbezug / Hochwertig
- Großzügiger Wohn-Essbereich
- Solide Massivbauweise mit moderner Architektur
- Zentrale Heizungs- und Warmwasseranlage
- Fußbodenheizung
- Wohnzimmer mit Echtholzparkett gelegt
- Badausstattung namhafter Hersteller (Duravit, Hansgrohe und Kaldewei)
- Im Duschtassenbereich ca. 2,10 m hohe Wandfliesen
- Elektrische Handtuchheizkörper
- Kunststofffenster mit 3-fach Wärmeschutzverglasung
- Elektrische Rollläden mit Einzelsteuerung
- Rollladenkästen wärmegedämmt
- Installation kontrollierter Abluftanlage
- Hauswirtschaftsraum mit Waschmaschinenanschluss und Steckdosen
- Holzterrasse aus Bankirai
- Im Flur, KG, EG, OG und DG befinden sich Einbauschränke mit Drehtüren inkl. Wäscheabwurfschacht
- Nutzungsgebühr der Einbauküche von zzgl. 200,00 €
- Eine Garage kann für zzgl. 100,00 €/Monat mit angemietet werden
- Mindestmietdauer von zwei Jahren
- Staffelmietvertrag
Lage
Der Stadtteil Angermund zählt zu den begehrtesten Wohnstandorten im nördlichen Einzugsbereich der Landeshauptstadt Düsseldorf.
Die optimale Verkehrsanbindung mit PKW und öffentlichen Verkehrsmitteln nach Kaiserswerth, Düsseldorf und zum Flughafen verleihen der ruhigen Wohnlage im Grünen ihre besondere Attraktivität.
Die gute Infrastruktur von Angermund bietet kurze Wege bei den täglichen Besorgungen - Supermärkte, Bäcker, Ärzte, Apotheken usw. sind schnell erreichbar.
In Angermund befinden sich drei Kindergärten und eine Grundschule. Kaiserswerth besitzt eine Grundschule und zwei private Gymnasien mit bestem Ruf sowie eine Internationale Schule. Auch sind die Möglichkeiten für Sport und Freizeit zahlreich.
Die reizvolle Landschaft mit ihren Feldern und Wiesen bietet zu jeder Jahreszeit die Gelegenheit aktiv zu entspannen - Spazieren, Fahrrad fahren und Joggen unmittelbar von zu Hause. In fußläufiger Entfernung befindet sich ein Tennisclub für die sportliche Abwechslung.
Sonstige Angaben
Denken Sie aktuell über den Verkauf Ihrer Immobilie nach? Kennen Sie denn bereits den Wert Ihrer Immobilie?
In nur wenigen Klicks erhalten Sie von uns per E-Mail eine erste Einschätzung zur aktuellen Wertermittlung Ihrer Immobilie.
Hier geht es direkt zu unserer kostenlosen Online-Wohnmarktanalyse: WWW.IMMOBILIEN-BOECKER.DE/WERTANALYSE
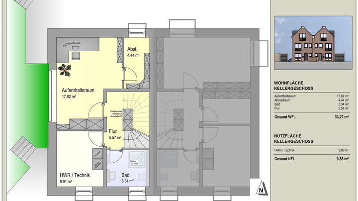
Grundriss
Erdgeschoss
>
>
Obergeschoss
>
>
Dachgeschoss
>
>
Kellergeschoss
>
>
Adresse
40489 Düsseldorf
Interessante Orte
Preis- und Lageinformationen
Preistrend für Bestandsimmobilien in Angermund