Besichtigungen können voraussichtlich ab Mitte November stattfinden!
Die Wohnung wäre ab ca. 01.02.2026 verfügbar, ggf. auch etwas früher.
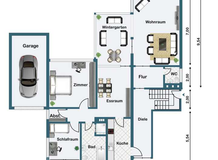
Diese ca. 140 m² große, elegante Wohnung im Erdgeschoss eines gepflegten Zweifamilienhauses bietet großzügiges und stilvolles Wohnen auf einer Ebene. Sie verbindet hochwertige Ausstattungsdetails mit einem durchdachten Grundriss und einer ruhigen, bevorzugten Lage von Saarlouis– ideal für ein Paar mit gehobenem Anspruch, das ein langfristiges Zuhause in angenehmer Umgebung sucht.
Bereits beim Betreten der Wohnung fällt die besondere Atmosphäre auf: Edler Parkettboden, teilweise nostalgische Innentüren, ein schöner Kamin und große Fensterflächen schaffen ein warmes, einladendes Wohngefühl. Das lichtdurchflutete Wohnzimmer geht harmonisch in das Esszimmer über, das wiederum direkten Zugang zum Wintergarten bietet. Von hier genießt man den Blick in den liebevoll angelegten, uneinsehbaren Garten – ein Rückzugsort mit viel Charme und Privatsphäre.
Die neuwertige Einbauküche ist hochwertig ausgestattet, modern und funktional. Sie enthält Elektrogeräte, einen Kühlschrank sowie eine integrierte Waschmaschine und kann vom Vormieter zu einem fairen Preis übernommen werden. Ein Trockner kann im Abstellraum abgestellt werden, oder auch im Keller.
Das Raumangebot wird durch ein Büro- oder Gästezimmer, ein Schlafzimmer mit maßgefertigtem Einbauschrank, ein stilvoll modernisiertes Badezimmer mit Wanne und Dusche, ein Gäste-WC sowie einen praktischen Hauswirtschaftsraum ergänzt. Ein zusätzlicher Kellerraum bietet ausreichend Stauraum. Ein Außenstellplatz sowie eine erneuerte Einzelgarage direkt links am Haus komplettieren dieses besondere Angebot.
Die Pflege des eigenen Gartenanteils wird durch den Mieter selber übernommen. Dadurch entfallen zusätzliche Kosten für externe Dienstleistungen, was sich positiv auf die Nebenkosten auswirkt.
Diese Wohnung richtet sich ausdrücklich an ein ruhiges, verantwortungsbewusstes Paar mit dem Wunsch nach langfristigem Wohnen in einem gepflegten Haus mit nur zwei Parteien.
Bevorzugt werden Nichtraucher-bitte keine Haustiere.
Wir laden Sie herzlich ein, sich mit den erforderlichen Unterlagen bei uns zu registrieren.
•Einkommensnachweise der letzten drei Monate
•Aktuelle SCHUFA-Auskunft
•Vollständig ausgefüllte Selbstauskunft
Der Energieausweis ist in Kürze online.
Wir freuen uns auf Ihre aussagekräftige Anfrage und stehen für die Vereinbarung eines Besichtigungstermins gerne zur Verfügung.
* R E S E R V I E R T * Stilvolle Mietwohnung mit Wintergarten, in Toplage
66740 Saarlouis
Die vollständige Adresse der Immobilie erhalten Sie vom Anbieter.
Auf Karte anzeigen
Die vollständige Adresse der Immobilie erhalten Sie vom Anbieter.
Infos
| Wohnungskategorie | Erdgeschosswohnung |
|---|---|
| Etagenzahl | 1 |
| Wohnfläche ca. | 140 m2 |
| Zimmer | 4 |
| Schlafzimmer | 1 |
| Badezimmer | 1 |
| Garage/Stellplatz | Garage |
| Anzahl Garage/Stellplatz | 1 |
Kosten
| Kaltmiete |
1.250 € |
|---|---|
| Nebenkosten | + 350 € |
| Heizkosten | in Nebenkosten enthalten |
| Gesamtmiete | 1.600 € |
| Kaution o. Genossenschaftsanteile | 2500 |
Weiter mieten oder doch kaufen?
Wer in Miete wohnt, überweist dem Vermieter im Laufe der Jahre hohe Summen, die sich
auch in die eigenen vier Wände investieren lassen könnten.
Bausubstanz & Energieausweis
| Baujahr | 1972 |
|---|---|
| Objektzustand | Gepflegt |
| Heizungsart | Fernwärme |
| Wesentliche Energieträger | Fernwärme |
| Energieausweis | liegt vor |
| Energieausweistyp | Bedarfsausweis |
| Energieverbrauchskennwert | 159,8 kWh/(m²*a) |
| Energieeffizienzklasse | E |
159,8
kWh/(m²*a)
Energieeffizienzklasse E
- A+
- A
- B
- C
- D
- E
- F
- G
- H
- 0
- 25
- 50
- 75
- 100
- 125
- 150
- 175
- 200
- 225
- >250
Beschreibung des Objekts
Ausstattung
- Teilweise Elektrische Rollläden
- Beheizter Wintergarten
- Kleiner liebevoll angelegter Garten zur Eigennutzung und eigene Pflege
- Überwachter Eingangsbereich - Videosprechanlage
- Gäste WC
- Modernsiertes Bad
- Parkett- Fliesen
- Einzelgarage- links vom Haus
- 1 Stellplatz direkt vorm Haus
Lage
Diese hochwertige Wohnung befindet sich in einem stilvollen Zweifamilienhaus in der besonders gefragten Wohnlage in Saarlouis. Die ruhige und dennoch zentrale Umgebung bietet eine ideale Kombination aus Wohnkomfort und urbaner Nähe. Die Saarlouiser Innenstadt ist fußläufig erreichbar – ein großer Vorteil für Familien und Berufstätige gleichermaßen.
Alle Einrichtungen des täglichen Bedarfs, darunter Supermärkte, Bäckereien, Apotheken sowie Ärzte, befinden sich in unmittelbarer Umgebung und sind bequem zu Fuß erreichbar. Für Familien bietet der Standort eine ausgezeichnete Infrastruktur: Kindergärten, Kitas sowie sämtliche Schulformen – von der Grundschule bis zum Gymnasium – sind schnell und sicher erreichbar.
Die Autobahnen A8 und A620 sind nur wenige Fahrminuten entfernt und sorgen für eine hervorragende Verkehrsanbindung in alle Richtungen. Auch die französischen Autobahnen sind gut erreichbar, was besonders für Berufspendler von Vorteil ist. Die Stadt Luxemburg liegt lediglich rund 45 Kilometer entfernt.
Saarlouis, mit ca. 35.000 Einwohnern, blickt auf eine bewegte Geschichte zurück. Gegründet als Festungsstadt im Jahr 1680 durch den berühmten französischen Baumeister Sébastien Le Prestre de Vauban, zeugen bis heute historische Überreste von ihrer militärischen Vergangenheit.
Heute ist Saarlouis ein bedeutendes wirtschaftliches Zentrum im Saarland. Die Stadt zieht mit ihrem vielfältigen Einzelhandel und gastronomischen Angebot auch zahlreiche Besucher und Kunden aus dem benachbarten Frankreich an.
Sonstige Angaben
GELDWÄSCHE: Als Immobilienmaklerunternehmen ist die von Poll Immobilien GmbH nach § 2 Abs. 1 Nr. 14 und § 11 Abs. 1, 2 Geldwäschegesetz (GwG) dazu verpflichtet, bei der Begründung einer Geschäftsbeziehung die Identität des Vertragspartners festzustellen und zu überprüfen, bzw. sobald ein ernsthaftes Interesse an der Durchführung des Immobilienkaufvertrages besteht. Hierzu ist es erforderlich, dass wir nach § 11 Abs. 4 GwG die relevanten Daten Ihres Personalausweises festhalten (wenn Sie als natürliche Person handeln) – beispielsweise mittels einer Kopie. Bei einer juristischen Person benötigen wir eine Kopie des Handelsregisterauszugs, aus welchem der wirtschaftlich Berechtigte hervorgeht. Das Geldwäschegesetz sieht vor, dass der Makler die Kopien bzw. Unterlagen fünf Jahre aufbewahren muss. Als unser Vertragspartner haben Sie auch eine Mitwirkungspflicht nach § 11 Abs. 6 GwG.
Adresse
66740 Saarlouis
Interessante Orte
Preis- und Lageinformationen
Preistrend für Bestandsimmobilien in Saarlouis