Erstbezug - barrierefrei 3 Zimmer EG Wohnung mit einem separaten Eingang mit einer Türsprechanlage
kleinen Grünfläche für den Sommer steht Ihnen draussen zur Verfügung
Die Wohnung ist für Rollstuhlfahrer geeignet, da alle Tür 98,5 cm breit sind
Die Fenster haben alle Komfort-Griff im unteren Bereich. Elektrische Fenster-Rollläden sind vorhanden. Die 3-fach verglaste Fenster haben eine Zwangslüftung
Zwei PKW Parkplatz vor der Tür sind vorhanden, eine elektrische Ladestation für Ihr E-Auto ist ebenfalls vorhanden
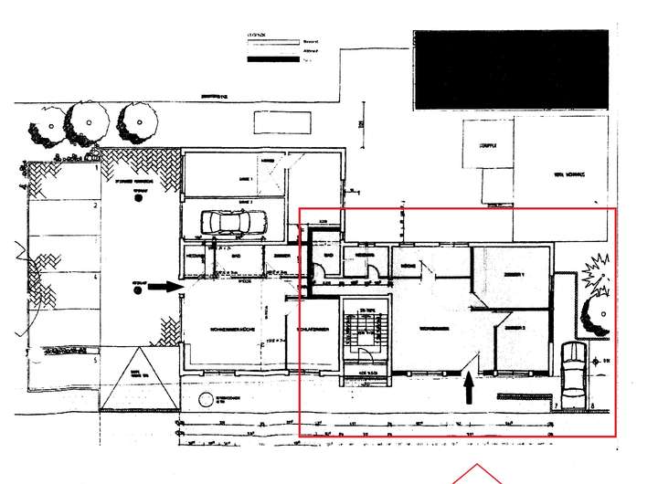
Die Wohnung besteht aus einem Wohnzimmer, einem Schlafzimmer, einem Arbeitszimmer, einer Küche, einem Duschbadezimmer und einem Wirtschaftraum. Hier ist auch ein Stellplatz für die Waschmaschine und den Trockner vorgesehen.
Die Dusche ist bodengleich, mit einer Größe von 120 x 120 cm (Setaplano von Geberit)
Beide WC sind wandhängende WC´s
Duschwände und WC sind mit Granit-Platten verkleidet
Das Objekt wird mit einer Wärmepumpe der Firma Vailant beheizt. Im Sommer kann die Wärmepumpe zur Kühlung eingesetzt werden.
Die Wohnung wird komplett gefliest und hat im gesamten Bereich Fußbodenheizung
Im Wohnbereich wurden 60 x 60 cm R9 Fliesen und im Bad 30 x 60 cm R 10 Fliesen verlegt
Glauburg - barrierefreie 3-Zi-Wohnung mit Fussbodenheizung; Erstbezug
63695 Glauburg
Die vollständige Adresse der Immobilie erhalten Sie vom Anbieter.
Auf Karte anzeigen
Die vollständige Adresse der Immobilie erhalten Sie vom Anbieter.
Infos
| Wohnungskategorie | Erdgeschosswohnung |
|---|---|
| Etage | 0 von |
| Wohnfläche ca. | 110 m2 |
| Bezugsfrei ab | 01.01.2026 |
| Zimmer | 3 |
| Schlafzimmer | 2 |
| Badezimmer | 1 |
| Garage/Stellplatz | Außenstellplatz |
| Anzahl Garage/Stellplatz | 2 |
Kosten
| Kaltmiete |
1.400 € |
|---|---|
| Nebenkosten | + 250 € |
| Heizkosten | in Nebenkosten enthalten |
| Gesamtmiete | 1.650 € |
| Kaution o. Genossenschaftsanteile | 4200,00 |
Weiter mieten oder doch kaufen?
Wer in Miete wohnt, überweist dem Vermieter im Laufe der Jahre hohe Summen, die sich
auch in die eigenen vier Wände investieren lassen könnten.
Bausubstanz & Energieausweis
| Baujahr | 2025 |
|---|---|
| Objektzustand | Erstbezug |
| Qualität der Austattung | Gehoben |
| Heizungsart | Wärmepumpe |
Beschreibung des Objekts
Lage
Das Haus liegt in Glauburg im Ortsteil Stockheim.
Da auch der Ortsteil Stockheim über einen Regionalbahnhof verfügt, haben Sie hier auch die Möglichkeit ohne Auto nach Frankfurt zu kommen.
Bahnhof, Supermarkt und zwei Gaststätte sind fussläufig erreichbar
Mit dem Auto sind Sie in ein paar Minuten auf der Autobahn A45.
Von hier haben Sie zahlreiche Möglichkeiten um nach Giessen, Hanau und/oder Frankfurt zu kommen.
Sonstige Angaben
Alle Daten im Exposé beruhen auf den, uns zur Verfügung gestellten Angaben unserer Auftraggeber, eine Haftung unsererseits kann daher nicht übernommen werden.
EnEv: liegt zur Besichtigung vor.
Adresse
63695 Glauburg
Interessante Orte
Preis- und Lageinformationen
Preistrend für Bestandsimmobilien in Glauburg