Willkommen in Ihrem neuen Zuhause: In einem energieeffizienten KfW 40 Mehrgenerationenhaus mit QNG-Nachhaltigkeitszertifizierung entsteht bis Ende 2025 ein Wohnprojekt mit Weitblick – im wahrsten Sinne des Wortes! Dieses durchdachte Bauvorhaben richtet sich an alle Generationen und vereint Nachhaltigkeit, Gemeinschaft und Lebensqualität.
Es stehen insgesamt von den 7 Wohnungen noch 2 zur Vermietung
• Wohnung 1 | EG | 2 Zi | 92 m² + 36 m² Terrasse | barrierefrei, Garten, Garage
• Wohnung 7 | DG | 4 Zi | 120,35 m² + 40 m² Dachterrasse als Highlight, Garage + Stellplatz
Vermietet:
- Wohnung 3 | EG | 3 Zi | 114,8 m² + 42 m² Terrasse | runde Form, Garage + Stellplatz
• Wohnung 4 | 1. OG | 4 Zi | 102 m² + 10 m² Balkon | Garage + Stellplatz
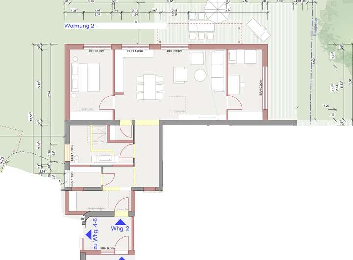
• Wohnung 2 | EG | 3 Zi | 105 m² + 42 m² Terrasse | barrierefrei, Garten, Garage + Stellplatz
• Wohnung 6 | 1. OG | 4 Zi | 114,36 m² + 15 m² Balkon | runde Form, Garage + Stellplatz
• Wohnung 5 | 1. OG | 2 Zi | 87 m² + 10 m² Balkon | Garage + Stellplatz
Die hier angebotene 2-Zimmer-Wohnung im Erdgeschoss ein Beispiel (W1) ist barrierefrei, altersgerecht und bietet mit großzügigem Garten, Terrasse und eigener Garage höchsten Wohnkomfort.
Grundriss-Highlights
- Kleiner Eingangsbereich mit geschütztem Zugang
- Langer Flur mit Zugang zu einem großzügigen, offenen Wohn-/Essbereich mit integrierter Küche
- Schlafzimmer mit Blick ins Grüne
- Praktischer Abstellraum
- Helles Bad mit bodengleicher Dusche
- Großzügige Terrasse & Gartenfläche mit unverbaubarem Blick ins Grüne
Melden Sie sich auch für die anderen Wohnungen über dieses Inserat und geben Sie bitte mit an für welche Wohnung Sie sich interessieren.
Mehrgenerationenhaus - 2 Wohnungen noch- 2 und 4 Zimmer Nagelneu Exklusiv KfW40/QNG in Weilmünster
Hessenstraße 4,
35789 Weilmünster
Auf Karte anzeigen
Infos
| Wohnungskategorie | Erdgeschosswohnung |
|---|---|
| Etage | 0 von 2 |
| Wohnfläche ca. | 110 m2 |
| Nutzfläche | 35 m2 |
| Bezugsfrei ab | 15.12.2025 |
| Zimmer | 2 |
| Schlafzimmer | 1 |
| Badezimmer | 1 |
| Haustiere | Nach Vereinbarung |
| Garage/Stellplatz | Garage |
| Anzahl Garage/Stellplatz | 2 |
Kosten
| Kaltmiete |
1.100 € |
|---|---|
| Nebenkosten | + 150 € |
| Heizkosten | in Nebenkosten enthalten |
| Gesamtmiete | 1.250 € |
| Kaution o. Genossenschaftsanteile | 3300 |
Weiter mieten oder doch kaufen?
Wer in Miete wohnt, überweist dem Vermieter im Laufe der Jahre hohe Summen, die sich
auch in die eigenen vier Wände investieren lassen könnten.
Bausubstanz & Energieausweis
| Baujahr | 2025 |
|---|---|
| Letzte Sanierung | 2025 |
| Objektzustand | Erstbezug |
| Qualität der Austattung | Gehoben |
| Heizungsart | Wärmepumpe |
| Wesentliche Energieträger | Strom |
| Energieausweis | liegt vor |
| Energieausweistyp | Bedarfsausweis |
| Energieverbrauchskennwert | 40,0 kWh/(m²*a) |
| Energieeffizienzklasse | A+ |
40,0
kWh/(m²*a)
Energieeffizienzklasse A+
- A+
- A
- B
- C
- D
- E
- F
- G
- H
- 0
- 25
- 50
- 75
- 100
- 125
- 150
- 175
- 200
- 225
- >250
Beschreibung des Objekts
Ausstattung
Hohe Deckenhöhen, Fußbodenheizung, Modern, Altersgerecht
Lage
Möttau – naturverbunden, aktiv & charmant
Am Ortseingang von Möttau, einem der aktivsten und engagiertesten Ortsteile Weilmünsters, ist dieses zukunftsweisende Wohnhaus in einmaliger Lage: Wald, Wiesen, Bachlauf und Natur pur – direkt vor Ihrer Tür entstanden.
Nur 5 Gehminuten entfernt liegt das Naherholungsgebiet Möttauer Weiher, das zum Spazieren, Joggen, Picknicken und Angeln einlädt. Hier finden auch beliebte Dorffeste statt:
- Maifest mit Musik & regionalem Essen
- Sonnenwendfeier direkt am Wasser
- Hofflohmarkt im Dorf – ein echtes Gemeinschaftserlebnis
In unmittelbarer Nähe:
- Zwei Bushaltestellen
- Metzgerei Sippel Heidehof
- Spielplatz direkt am Haus
In 5 Minuten mit dem Auto:
- Supermärkte, Ärzte, Apotheken, Bäcker & mehr
Regionale Erreichbarkeit:
- Bad Homburg, Wetzlar, Limburg: ca. 25 Min
- Wiesbaden: ca. 45 Min
- Frankfurt/Mainz: ca. 60 Min
Weitere Infos zur Umgebung:
- Möttauer Weiher – Freizeit & Natur: https://www.weilmuenster.de/freizeit-tourismus/natur-und-sport/angeln-in-weilmuenster-moettau/
- Möttau aktiv – „Ein dolles Dorf“: https://www.weilmuenster.de
Grundriss
Grundriss_Wohnung_1
>
>
Grundriss_Wohnung_2
>
>
Grundriss_Wohnung_3
>
>
Grundriss_Wohnung_4
>
>
Grundriss_Wohnung_5
>
>
Grundriss_Wohnung_6
>
>
Grundriss_Wohnung_7
>
>
Adresse
Hessenstraße 4, 35789 Weilmünster
Interessante Orte
Preis- und Lageinformationen
Preistrend für Bestandsimmobilien in Weilmünster