Oberfrohnaerstr. 9, Maisonette ( 1.OG + 2.OG )
AUFGRUND GROSSER NACHFRAGE:
• Besichtigungen an Wochentagen + Wochenende
• Nettoeinkommen mind. 2,5 x Warmmiete oder Bürgschaft
• Beratungen u. Vertragsabwicklungen auch verhandlungssicher in englisch
• Reservierung nicht möglich
• Zur Mietvertragserstellung benötigt: Selbstauskunft, Ausweis, Einkommensnachweise, Mietschuldenfreiheit
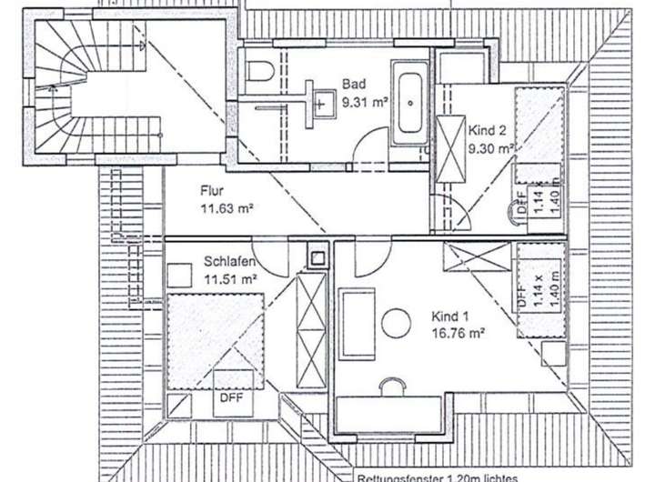
MEGA =》5 ZI MAISONETTE, 2 BALKONE, 2 BÄDER, FB-HEIZUNG !!
09117 Chemnitz
Die vollständige Adresse der Immobilie erhalten Sie vom Anbieter.
Auf Karte anzeigen
Die vollständige Adresse der Immobilie erhalten Sie vom Anbieter.
Infos
| Etagenzahl | 2 |
|---|---|
| Wohnfläche ca. | 143 m2 |
| Grundstücksfläche | 143 m2 |
| Bezugsfrei ab | 01.07.2026 |
| Zimmer | 5 |
| Badezimmer | 2 |
| Haustiere | Nach Vereinbarung |
| Garage/Stellplatz | Außenstellplatz |
| Anzahl Garage/Stellplatz | 2 |
Kosten
| Kaltmiete |
990 € |
|---|---|
| Nebenkosten | + 410 € |
| Heizkosten | in Nebenkosten enthalten |
| Gesamtmiete | 1.400 € |
| Miete für Garage/Stellplatz | 0 € |
| Kaution o. Genossenschaftsanteile | EUR 1.980,- |
Weiter mieten oder doch kaufen?
Wer in Miete wohnt, überweist dem Vermieter im Laufe der Jahre hohe Summen, die sich
auch in die eigenen vier Wände investieren lassen könnten.
Bausubstanz & Energieausweis
| Baujahr | 1910 |
|---|---|
| Letzte Sanierung | 2026 |
| Objektzustand | Erstbezug nach Sanierung |
| Qualität der Austattung | Gehoben |
| Heizungsart | Fußbodenheizung |
| Wesentliche Energieträger | Gas |
| Energieausweis | laut Gesetz nicht erforderlich |
Beschreibung des Objekts
Ausstattung
Schöne 5 Zi Oase:
• Erstbezug nach Sanierung
• Fußbodenheizung
• 2 Balkone
• 2 Bäder
• Moderner Bodenbelag
• 2 PKW-Stellplätze im Hof
• Freundliche Hausverwaltung direkt in Chemnitz
Lage
• Wohnen in der Europäischen Kulturhauptstadt 2025
• Bus und Zug direkt vor Ort
• Autobahnanbindung vor Ort
• Supermärkte direkt vor Ort
Sonstige Angaben
Alle Angaben sind ohne Gewähr und basieren ausschließlich auf Informationen, die vom Auftraggeber übermittelt wurden. Eine Gewähr für Vollständigkeit, Richtigkeit und Aktualität dieser Angaben kann nicht übernommen werden. Eine Zwischenvermietung bleibt vorbehalten.
Die Verwendung der in diesem Exposé aufgeführten Texte, Fotos, Videos sowie Anhänge ist strikt untersagt und wird sofort juristisch angezeigt.
PREMIUM-PARTNER 2023 / 2022 / 2021 / 2020 / 2019 / 2018 / 2017:
"Ausgezeichnet für langjährige Erfahrung, besonderes Engagement für Kunden sowie überdurchschnittliche Kundenbewertungen"
IHRE VORTEILE ALS AUFTRAGGEBER / INTERESSENT:
• Langjährige Erfahrung im Immobilienvertrieb
• Qualifizierte Beratung auch verhandlungssicher in Fremdsprache Englisch; Russisch+Tschechisch ebenfalls möglich
• Flexible Kundentermine auch am Wochenende
• Gute regionale Vernetzung
• Starke namhafte Partner als Rechtsbeistand sowie Architekturbüros u. Bauunternehmen
• Gewerbeerlaubnis:
Gewerbeerlaubnis gem. § 34 c Abs. 1 S.1 Nr. 1 der Gewerbeordnung (GewO)
• Mitgliedschaft:
IHK Industrie- u. Handeskammer
• Versicherungen:
- Betriebs-Haftpflichtversicherung
- Vermögensschaden-Haftpflichtversicherung
- etc.
AKTUELLE ANGEBOTE:
• Wohnungsbestand mit 800 Wohneinheiten in der Chemnitzer Innenstadt, am Campus der Technischen Universität Chemnitz, im Gründerzeitviertel Chemnitz-Kassberg, ...
• Loft, Maisonette, ...
• Möblierte Mietwohnungen
• Gewerbeeinheiten
• Häuser zum Kauf oder Miete
• Eigentumswohnungen
• Denkmal / AFA Objekte
• Baugrundstücke
• PKW-Stellplätze
TÄTIG IN:
• Chemnitz
• Dresden
• Forchheim
• Frankenberg/Sachsen
• Freiberg
• Hildesheim
• Königstein/Sächsische Schweiz
• Leipzig
• Limbach-Oberfrohna
• Mittweida
• Neukirchen/Erzgebirge
• Penig
• Thalheim/Erzgebirge
• Zwickau
Weitere Dokumente
SelbstauskunftAdresse
09117 Chemnitz
Interessante Orte
Preis- und Lageinformationen
Preistrend für Bestandsimmobilien in Rabenstein