Dieses exklusive Mehrgenerationenhaus mit ca. 237 m² Wohnfläche und ca. 979 m² Grundstücksfläche befindet sich in Radeberg OT Ullersdorf in der Straße "Am Sandweg". Das Haus wurde 1995 erbaut und bietet luxuriösen Wohnkomfort auf höchstem Niveau.
Die TOP 5 Highlights sind:
1. Der große, professionell angelegte und paradiesisch eingewachsene Garten mit großer Terrasse und zusätzlichem "Rondell" / Grillplatz
2. Das Haus gliedert sich in 3 Etagen (OG, EG, Souterrain) die jeweils mit Einbauküche und Bad ausgestattet sind und eine absolut flexible Nutzung für mehrere Generationen erlauben
3. Der helle Wintergarten im EG sorgt für Wohlfühlatmosphäre
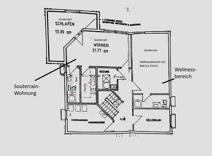
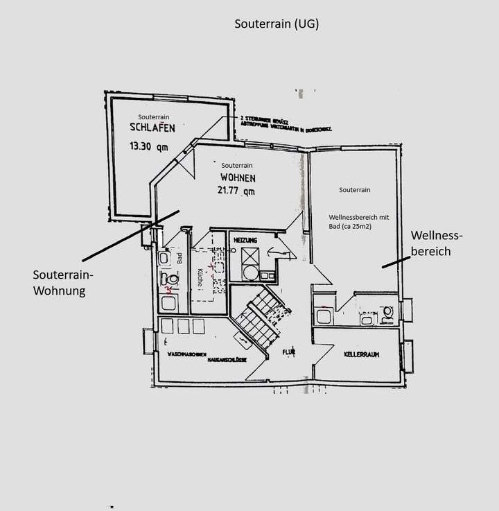
4. Die Souterrain Wohnung ist vollständig möbliert - in den anderen Wohnung ist teilmöblierte Vermietung nach Absprache möglich
5. Eine ca. 25 m2 große Wellnessoase mit Whirlpool, Sauna und Duschbad im Souterrain kann optional zugebucht werden (300 EUR pro Monat) und sorgt für Entspannung in den eigenen vier Wänden (als Nutzfläche ausgewiesen)
Mit 9 Zimmern bietet das Haus viel Platz für die ganze Familie und individuelle Entfaltungsmöglichkeiten. In allen Etagen ist jeweils eine hochwertige Einbauküche vorhanden. Das Haus verfügt über einen Keller und Speicher.
Vor der Vermietung erfolgt eine Erneuerung der Bodenbeläge in den Schlafzimmern EG / OG, weshalb eine vollständige Vermietung ab 03/26 möglich ist. Ein früherer Einzugstermin ist nach Abstimmung möglich.
(Achtung: Die Kartenansicht in Immoscout ist leider fehlerhaft. Das Haus befindet sich "Am Sandweg im wunderschönen Ullersdorf" (und nicht in Radeberg Stadt)
Luxuriöses Haus mit 9 Zimmern und Gartenparadies in Ullersdorf (Ideal als Mehrgenerationenhaus)
01454 Radeberg
Die vollständige Adresse der Immobilie erhalten Sie vom Anbieter.
Auf Karte anzeigen
Die vollständige Adresse der Immobilie erhalten Sie vom Anbieter.
Infos
| Haustyp | Einfamilienhaus |
|---|---|
| Etagenzahl | 2 |
| Wohnfläche ca. | 237 m2 |
| Nutzfläche | 38 m2 |
| Grundstücksfläche | 979 m2 |
| Bezugsfrei ab | 1.3.2026 |
| Zimmer | 9 |
| Schlafzimmer | 4 |
| Badezimmer | 4 |
| Haustiere | Nach Vereinbarung |
| Anzahl Garage/Stellplatz | 3 |
Kosten
| Kaltmiete |
2.690 € |
|---|---|
| Nebenkosten | + 500 € |
| Heizkosten | in Nebenkosten enthalten |
| Gesamtmiete | 3.190 € |
| Miete für Garage/Stellplatz | 120 € |
| Kaution o. Genossenschaftsanteile | 8070 |
Weiter mieten oder doch kaufen?
Wer in Miete wohnt, überweist dem Vermieter im Laufe der Jahre hohe Summen, die sich
auch in die eigenen vier Wände investieren lassen könnten.
Bausubstanz & Energieausweis
| Baujahr | 1995 |
|---|---|
| Letzte Sanierung | 2020 |
| Objektzustand | Gepflegt |
| Qualität der Austattung | Luxus |
| Heizungsart | Gas-Heizung |
| Energieausweis | liegt vor |
| Energieausweistyp | Verbrauchsausweis |
| Energieverbrauchskennwert | 150,3 kWh/(m²*a) |
| Energieeffizienzklasse | E |
150,3
kWh/(m²*a)
Energieeffizienzklasse E
- A+
- A
- B
- C
- D
- E
- F
- G
- H
- 0
- 25
- 50
- 75
- 100
- 125
- 150
- 175
- 200
- 225
- >250
Beschreibung des Objekts
Ausstattung
- Wintergarten
- Fußbodenheizung in allen Etagen
- großer Garten
- Garagenhaus mit 2 Stellplätzen, Werkzeug und Fahrradraum
- 1 zusätzlicher Aussenstellplatz auf dem Grundstück
- Voll möblierte Souterrainwohnung - Teilmöblierte Vermietung der anderen Ebenen nach Absprache möglich
- in 2020 modernisierte Gasheizung
- Entkalkungsanlage
- Aus dem OG zugänglicher Speicher
- optional: Wellnessoase mit Whirlpool und Sauna
- u.v.m.
Lage
Das Objekt liegt in Radeberg OT Ullersdorf. Ullersdorf besticht durch seine idyllische und zugleich Stadtnahe Lage. Genießen sie die Natur der direkt angrenzenden Dresdner Heide und das entspannte Flair der über die Stadtgrenzen hinaus bekannten Golfanlage Ullersdorf.
Dresden und Radeberg sind über die Buslinien 521 und 753 erreichbar. Die Tramhaltestelle Dresden-Bühlau ist 4km entfernt. Das 3km entfernte Hochlandcenter Weißig mit umfassenden Einkaufmöglichkeiten erreichen sie in wenigen Minuten.
Hinweis: Da die Adresse in der Kartenansicht von Immoscout wird teilweise falsch angezeigt. Das Haus befindet sich "Am Sandweg in Ullersdorf" (und nicht direkt in Radeberg)
Weitere Dokumente
EnergieausweisGrundriss
Grundriss Erdgeschoss
>
>
Grundriss Souterrain
>
>
Grundriss Obergeschoss
>
>
Adresse
01454 Radeberg
Interessante Orte
Preis- und Lageinformationen
Preistrend für Bestandsimmobilien in Radeberg