Klassik & Style. Die Doppelhausvillen!
Die moderne Villa, die sich zwischen Düsseldorfer Landstraße und dem Alten Angerbach in der Nähe der neu entstandenen Kindertagesstätte befindet, wird durch ihren neoklassizistisch geprägten Architekturstil zum hochattraktiven Blickfang und bieten jede Menge Freiraum für alle, die es großzügig mögen.
Faszination auf den ersten Blick, Begeisterung auf den zweiten: Von außen präsentiert sich die exclusive Doppelhausvilla in der eleganten Formensprache des Neoklassizismus. Details wie Säulen, Faschen und Putzbänder geben der modernen Architektur besondere Finesse und unterstreichen den gehobenen Charakter, wie man ihn aus der englischen Gartenstadtbewegung kennt. Der hohe planerische Anspruch setzt sich im Inneren fort, wo jede Wohnebene mit großzügigem Platzangebot und gehobenem Komfort überzeugt.
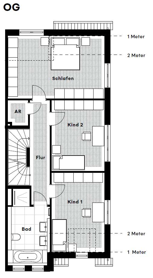
Eleganz zum Anfassen: Die Villa erfüllt durch ihr repräsentatives Äußeres und ein großzügiges Raumgefühl auch anspruchsvolle Wohnwünsche. Das durchdachte Konzept des voll unterkellerten Hauses setzt auf weitläufige Wohnbereiche im Erdgeschoss, drei Zimmer mit großzügigem Badezimmer im Obergeschoss und ein zusätzliches Schlafzimmer mit en-Suitebad und Ankleide im Dachgeschoss. Wer sich Platz für Kinder und Gäste, das Homeoffice oder ein Home-Gym wünscht, findet hier das ideale Wohnkonzept. Große Terrasse eine Garage und ein eigener Garten sind ebenfalls inklusive.
Im vorgenannten Mietpreis ist die Einbauküche bereits enthalten.
Einzug kurzfristig möglich! 174 qm große und exklusive Doppelhausvilla
Aenne-Brauksiepe-Str. 35,
47259 Duisburg
Auf Karte anzeigen
Infos
| Haustyp | Doppelhaushaelfte |
|---|---|
| Etagenzahl | 3 |
| Wohnfläche ca. | 175 m2 |
| Nutzfläche | 72,77 m2 |
| Grundstücksfläche | 308 m2 |
| Bezugsfrei ab | 01.02.2026 |
| Zimmer | 5 |
| Schlafzimmer | 4 |
| Badezimmer | 2 |
| Haustiere | Nein |
| Garage/Stellplatz | Garage |
| Anzahl Garage/Stellplatz | 1 |
Kosten
| Kaltmiete |
3.600 € |
|---|---|
| Nebenkosten | + 300 € |
| Heizkosten | keine Angabe |
| Gesamtmiete | 3.900 € (zzgl. Heizkosten) |
| Kaution o. Genossenschaftsanteile | 10.800,--€ |
Weiter mieten oder doch kaufen?
Wer in Miete wohnt, überweist dem Vermieter im Laufe der Jahre hohe Summen, die sich
auch in die eigenen vier Wände investieren lassen könnten.
Bausubstanz & Energieausweis
| Baujahr | 2025 |
|---|---|
| Objektzustand | Erstbezug |
| Qualität der Austattung | Luxus |
| Heizungsart | Blockheizkraftwerk |
| Wesentliche Energieträger | Nahwärme |
| Energieausweis | liegt vor |
| Energieausweistyp | Bedarfsausweis |
| Energieverbrauchskennwert | 68,0 kWh/(m²*a) |
| Energieeffizienzklasse | B |
68,0
kWh/(m²*a)
Energieeffizienzklasse B
- A+
- A
- B
- C
- D
- E
- F
- G
- H
- 0
- 25
- 50
- 75
- 100
- 125
- 150
- 175
- 200
- 225
- >250
Beschreibung des Objekts
Ausstattung
Erdgeschoss:
• großzügiges Entrée
• Gäste-WC
• großer Wohn-/Essbereich mit offener Küche, die im Mietpreis bereits enthalten ist
• Terrasse
• Garten
Obergeschoss:
• großzügiges Elternschlafzimmer
• 2 Kinderzimmer
• großes Badezimmer mit Badewanne und Dusche
• Abstellraum
Dachgeschoss:
• zusätzliches Schlafzimmer mit Ensuite-Bad und Ankleidezimmer.
Kellergeschoss:
• zwei Kellerräume
• Hauswirtschaftsraum für Waschmaschine und Trockner
• Haustechnikraum
Ausstattungsmerkmale:
• Energieeffiziente Bauweise als Effizienzhaus 55
• Massivbauweise Stein auf Stein gebaut, mineralisch gedämmt, verputzt und verziert
• tlw. bodentiefe Fenster, 3-fach verglast
• Elektrische Rollläden
• Fußbodenheizung
• Sanitärausstattung von Markenherstellern
• Merten-Schalterprogramm
• Glasfaseranschluss
• Video-Gegensprechanlage
• Garage
• Vorrüstung für E-Ladestation an der eigenen Villa
• Quartiers-App für innovative Services wie Carsharing, Lieferdienste, Nachbarschaftstreffen etc.
• Quartiersplatz u. a. mit Bäumen, Hockerbänken, Sitzbänken und einer Grünfläche mit Gräser- und Kräuterpflanzung
• Malervlies an den Wänden
• Hochwertige Bodenbeläge in den Wohn- und Schlafräumen
• hochwertige Einbauküche (im Mietpreis bereits enthalten)
Lage
Eine Immobilienentscheidung mit rundum gutem Gefühl: Auch in Sachen Lage liegen Sie mit einem Villenzuhause im Fuchs&Hase genau richtig. Denn hier im Duisburger Süden genießen Sie beste Verbindungen und erstklassige Perspektiven: Die Umgebung lädt mit bunter Vielfalt zum Entdecken ein und bietet viele attraktive Ziele, die Sie mit dem Auto oder ganz bequem mit der U-Bahn - dank der idealen Anbindung an zentrale Verkehrsrouten und das ÖPNV-Netz - in kurzer Zeit erreichen.
• Ca. 15 Autominuten zur Königstraße in Duisburg
• Ca. 20 U-Bahn-Minuten zum Hauptbahnhof Duisburg
• Ca. 14 Autominuten zum Burghof-Biergarten in Kaiserswerth
• Ca. 14 Autominuten zum Flughafen Düsseldorf
• Ca. 28 U-Bahn-Minuten von der U-Bahn-Station Kesselsberg in Duisburg zur Königsallee in Düsseldorf
Einkaufen & Nahversorgung
Einfach ideal: Lebensmittel- und Getränkemarkt sind in Fußnähe, Bäckerei, Sparkasse, Apotheke oder Tankstelle im nahen Umfeld – so lassen sich die Dinge des Alltags schnell erledigen. Für weiteres Shoppingvergnügen fährt man mit der U 79 in die Altstadt von Duisburg oder nach Düsseldorf.
Gastronomie
Italienische oder deutsche Küche, Kuchen oder Burger, szenig oder traditionell: In Ihrer Nachbarschaft gibt es vielfältige kulinarische Angebote zu entdecken.
Medizinische Versorgung
Mit der Helios Klinik St. Anna haben Sie ein Krankenhaus mit einer großen Vielfalt von Fachbereichen in der Nähe. Zudem sind viele Haus- und Fachärzte in Huckingen niedergelassen.
Sport & Freizeit
Der benachbarte Golfclub, die Joggingstrecke am Angerbach entlang oder Fitness, Tennis, Kampfsport und mehr im nahegelegenen XXL-Sportcenter – zum Aktivsein gibt es viele schöne Möglichkeiten.
Kindertagesstätten & Schulen
Vom Kindergarten über die Grundschule bis zum Gymnasium und zur renommierten internationalen Schule St. Georgeʼs – im Umkreis von ein bis zwei Kilometern liegen vielfältige Bildungseinrichtungen.
Natur & Erholung
Die Angerbachauen liegen direkt vor der Tür, weitere Natur genießt man zum Beispiel am Rahmer oder Remberger See, an der Sechs-Seen-Platte oder am Rheinuferweg.
Weitere Dokumente
57-10_ABA DHH Typ 1b rechts_EnExposé Fuchs & Hase
Adresse
Aenne-Brauksiepe-Str. 35, 47259 Duisburg
Interessante Orte
Preis- und Lageinformationen
Preistrend für Bestandsimmobilien in Huckingen
>
>
>