Traumhaftes Einfamilienhaus in Straubing – Luxus und Komfort auf zwei Etagen.
Dieses vollsanierte Zweifamilienhaus im Herzen von Straubing erfüllt höchste Ansprüche an modernes Wohnen. Mit einer Wohnfläche von ca. 145 m² auf einem Grundstück von ca. 174 m² bietet diese Immobilie alles, was das Herz begehrt – von großzügigem Platzangebot bis hin zu luxuriösen Ausstattungsdetails.
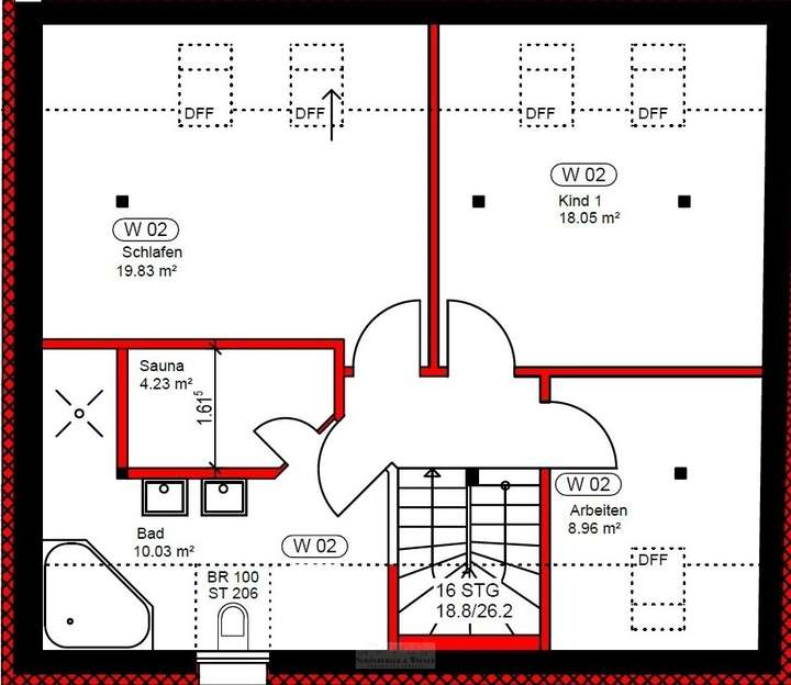
Das Haus erstreckt sich über zwei Etagen und umfasst insgesamt fünf Zimmer, darunter vier geräumige Schlafzimmer und zwei elegante Badezimmer. Der durchdachte Grundriss bietet sowohl für Familien als auch für eine Zweifamiliennutzung ideale Voraussetzungen. Jeder Raum wurde mit viel Liebe zum Detail saniert und mit hochwertigen Materialien ausgestattet, sodass ein harmonisches und stilvolles Wohnambiente entsteht. Hierzu trägt die einzeln steuerbare LED Beleuchtung bei, die in nahezu jedem Raum zu finden ist. Selbst auf Kleinigkeiten wurde bei der Sanierung geachtet, Designer Türgriffe, und in die Wände integrierte Fußbodenleisten sowie exklusive und individuell programmierbare Schalten sind in dieser Immobilie eine Selbstverständlichkeit.
Im gesamten Haus wurden edle Parkett- und moderne Fliesenböden verlegt, die ein Gefühl von Eleganz und Behaglichkeit vermitteln. Ein Highlight ist die großzügige Terrasse, die als Erweiterung des Wohnraums genutzt werden kann und sich perfekt für entspannte Sommerabende oder gesellige Stunden eignet. Zur Entspannung lädt zudem eine integrierte Sauna ein, die Ihnen Wellness in den eigenen vier Wänden ermöglicht.
Die Immobilie ist unterkellert und bietet dadurch zusätzliche Nutz- und Lagermöglichkeiten.
Dieses Haus ist sofort bezugsfertig und wartet auf neue Mieter, die den luxuriösen Charme und den Komfort zu schätzen wissen. Straubing bietet zudem eine hervorragende Infrastruktur und eine charmante Altstadt.
Die Einliegerwohnung ist separat anmietbar.
Hochwertig saniertes Stadthaus zentrumsnah in Straubing!
94315 Straubing
Die vollständige Adresse der Immobilie erhalten Sie vom Anbieter.
Auf Karte anzeigen
Die vollständige Adresse der Immobilie erhalten Sie vom Anbieter.
Infos
| Haustyp | Einfamilienhaus |
|---|---|
| Etagenzahl | 2 |
| Wohnfläche ca. | 145 m2 |
| Grundstücksfläche | 174 m2 |
| Bezugsfrei ab | Sofort |
| Zimmer | 5 |
| Schlafzimmer | 3 |
| Badezimmer | 2 |
| Garage/Stellplatz | Carport |
| Anzahl Garage/Stellplatz | 1 |
Kosten
| Kaltmiete |
1.700 € |
|---|---|
| Nebenkosten | + 150 € |
| Heizkosten | keine Angabe |
| Gesamtmiete | 1.850 € (zzgl. Heizkosten) |
| Kaution o. Genossenschaftsanteile | 5100,00 |
Weiter mieten oder doch kaufen?
Wer in Miete wohnt, überweist dem Vermieter im Laufe der Jahre hohe Summen, die sich
auch in die eigenen vier Wände investieren lassen könnten.
Bausubstanz & Energieausweis
| Qualität der Austattung | Luxus |
|---|---|
| Heizungsart | Fußbodenheizung |
| Energieausweis | liegt zur Besichtigung vor |
Beschreibung des Objekts
Ausstattung
Diese hochwertig Kernsanierte Immobilie verfügt über folgende Ausstattungsmerkmale:
* Böden: Parkett, Landhausdiele Eiche, die Bäder und die Einliegerwohnung wurden mit Fliesen ausgestattet.
* Heizung: Wärmepumpe, Fußbodenheizung und in allen Bädern zusätzlich Wandheizung
* Fenster Kunststofffenster Dreifach verglast
* elektrische Rollläden und Dachfenster
* Dachterrasse Südseite
* LED Beleuchtung teilweise indirekt, einzeln steuerbar
* 1 Bad mit Wanne und Dusche
* 2 Bäder mit Dusche
* Sauna
* Schalter individuell programmierbar
* Lautsprechersystem in der Wohnzimmerdecke
* Sockelleisten in der Wand integriert
* Videosprechanlage
* Carport
* Einliegerwohnung in Haupthaus integrierbar, und separat anmietbar.
* historische Sichtbalken im 2. OG
* Toplage, naher der Straubinger Altstadt
Lage
Straubing, eine niederbayerische Stadt mit viel Atmosphäre und bayerischer Lebensqualität: Idyllisch an der Donau gelegen empfängt Straubing seine Besucher mit städtischem sowie ländlichem Flair. Der Mittelpunkt des städtischen Lebens bildet der Ludwigs- und Theresienplatz. Dort schlägt das Herz Straubings. Einheimische und Gäste treffen sich hier zum Bummeln, Ratschen und Einkehren.
Die Fußgängerzone und die angrenzenden Straßen laden zum Bummeln und Shoppen ein. Hier finden Sie eine Vielfalt an Geschäften, Boutiquen, Restaurant, Cafés, Bäckereien und gemütlichen Wirthäusern.
Die Präsenz des TUM Campus Straubing hat die Nachfrage nach studentischem Wohnraum in Straubing deutlich erhöht.
Auch das Gäubodenvolksfest hat hier sein Zuhause: Im August startet Straubings „Fünfte Jahreszeit" und lockt mit seinen Festzelten, vielen verschiedenen Fahrgeschäften und einer großen Verbrauchermesse, der Ostbayernschau, die Besucher von nah und fern.
Straubing wird auch als Tor des Bayerischen Waldes bezeichnet – und das zu Recht! In weniger als einer halben Stunde ist man im Bayerischen Wald. Hier warten im Winter zahlreiche gespurte Loipen und attraktive Abfahrten auf die Skifahrer. Ansonsten lädt die herrliche Landschaft zum Radfahren und Wandern ein.
Straubing liegt sehr verkehrsgünstig sowohl an den Autobahnen A3 und A92 als auch an den Bundesstraßen B8 und B20. Damit ist eine gute Erreichbarkeit zu den Städten Regensburg, Passau, Deggendorf sowie Landshut gegeben.
Sonstige Angaben
Bitte haben Sie Verständnis dafür, dass nur Anfragen mit vollständigen Kontaktdaten (Name, Adresse, Telefon, E-Mail) zeitnah beantwortet werden können.
Unsere weiteren zahlreichen Angebote finden Sie unter www.swims.de
Alle Angaben stammen vom Eigentümer. Irrtum und Zwischenverkauf bleiben vorbehalten. Es wird auf unsere Allgemeinen Geschäftsbedingungen hingewiesen. Für weitere Informationen stehen wir Ihnen gerne zur Verfügung.
Besichtigungen können Sie direkt über unser Büro vereinbaren.
Grundriss
Grundriss EG
>
>
Grundriss 1.OG
>
>
Grundriss DG
>
>
Adresse
94315 Straubing
Interessante Orte
Preis- und Lageinformationen
Preistrend für Bestandsimmobilien in Kernstadt