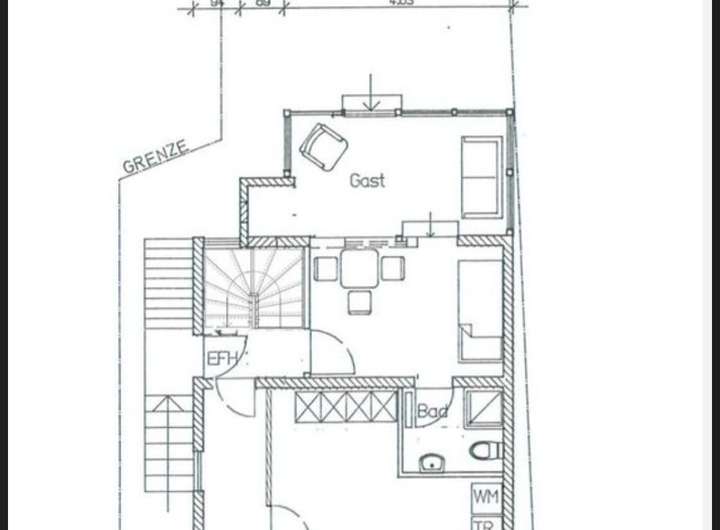
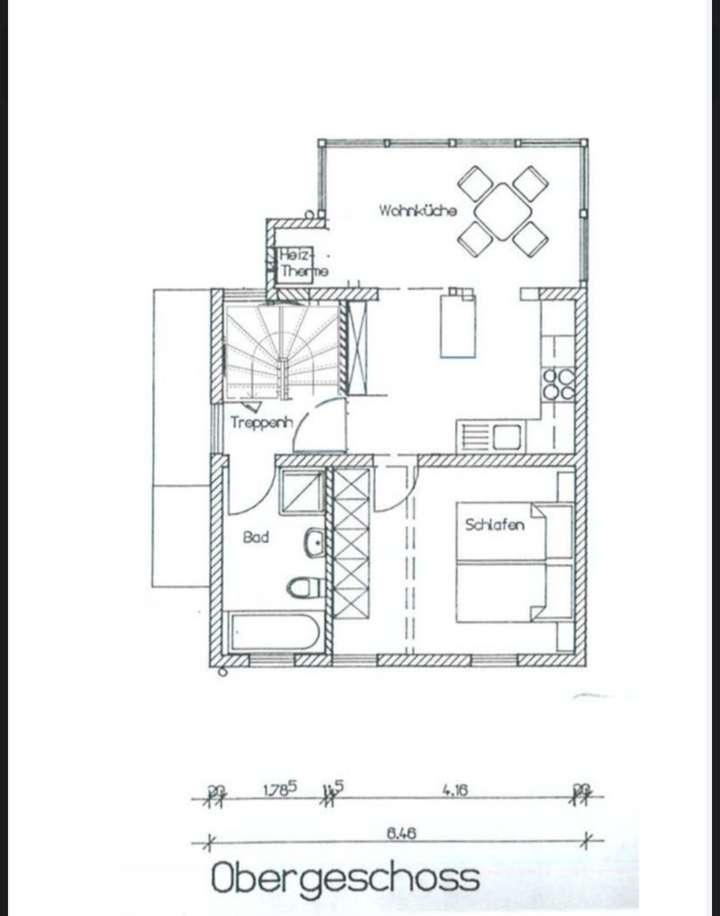
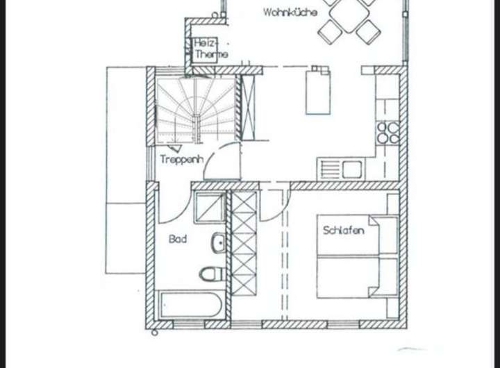
Dieses hübsche Einfamilienhaus mit 5 Zimmern (EG: großes Arbeitszi/Schlafzi mit WC und Dusche, EG: kleines Gästezi/Schlafzi mit kleinem Vorzimmer = Deckenhöhe 2 m, 1. OG: Küche mit Esszimmer, 1. OG: Schlafzi, Badezimmer mit WC, Dusche und Badewanne), 2. OG: Wohnzi mit Dachterrasse) und ca. 117 m² Wohnfläche befindet sich in Stuttgart-Hedelfingen. Das Haus wurde 1890 erbaut und zuletzt 1996 kernsaniert und 2025 renoviert. Es bietet eine normale Innenausstattung und ist für Familien geeignet. Das Haus verfügt über ein Grundstück von ca. 101 m² und einer Wohnfläche von 117 m², die Nutzfläche beträgt etwa 160 m² das Haus erstreckt sich über 4 Etagen (pro Etage etwa 42 m²) Fahrradhütte am Haus, drei Kellerräumen (ein kl. Kellerraum wird nicht vermieten, dort lagern Hausutensilien, 2 große Kellerräume für unempfindliche Gegenstände nutzbar). Die Küche ist neu eingebaut, mit Gefrier-Kühlschrankkombi, Backofen, Herd, Spülmaschine, im Esszimmer befindet sich ein Glastisch mit Rattanstühlen.
Haustiere sind erlaubt, für Kaninchen, Katzen... gibt es einen Auslauf im Garten. Der kleine Garten hat Kunstrasen. Das Haus liegt in Halbhöhenlage mit einem tollen Blick auf die Weinberge von der schönen Dachterrasse aus, der Terrassen-Holzboden dort ist ebenfalls neu. Das Haus ist teilweise möbliert. Es gibt eine Waschmaschine, Wäschetrockner, ein Schlafsofa im kleinen Gästezi, einen kl. Schrank im Arbeitszi, einen großen Spiegelschrank und TV im Schlafzi (1. OG) Badezimmermöbel sind vorhanden, im Wohnzi (2. OG) gibt es eine TV Konsole mit 3-D Fernseher. Im EG beträgt die Deckenhöhe nur 2 Meter. Im 1. OG und 2. OG haben wir normale bis hohe Deckenhöhen. Die Möbel werden mitvermietet, was nicht gebraucht wird kann im Keller abgestellt werden. Die Gas-Heizung im 2. OG sowie der Wasserboiler im 1. OG wurden Ende 2023 neu eingebaut. Strom und Gas sind selbst anzumelden. Parkplätze sind an der Pivatstraße oder öffentl. Straße vorhanden, direkter Zugang zum Haus. Keine Maklerprovision.
Einfamilienhaus in Halbhöhenlage in Stuttgart-Hedelfingen
Kreuzhaldenstr. 7,
70329 Stuttgart
Auf Karte anzeigen
Infos
| Haustyp | Einfamilienhaus |
|---|---|
| Etagenzahl | 4 |
| Wohnfläche ca. | 117 m2 |
| Nutzfläche | 160 m2 |
| Grundstücksfläche | 101 m2 |
| Bezugsfrei ab | 1.12.2025 |
| Zimmer | 5 |
| Schlafzimmer | 3 |
| Badezimmer | 2 |
| Haustiere | Ja |
Kosten
| Kaltmiete |
1.800 € |
|---|---|
| Nebenkosten | + 100 € |
| Heizkosten | + 200 € |
| Gesamtmiete | 2.100 € (zzgl. Heizkosten) |
| Kaution o. Genossenschaftsanteile | 5.400,00 |
Weiter mieten oder doch kaufen?
Wer in Miete wohnt, überweist dem Vermieter im Laufe der Jahre hohe Summen, die sich
auch in die eigenen vier Wände investieren lassen könnten.
Bausubstanz & Energieausweis
| Baujahr | 1890 |
|---|---|
| Letzte Sanierung | 2025 |
| Objektzustand | Modernisiert |
| Qualität der Austattung | Normal |
| Heizungsart | Gas-Heizung |
| Wesentliche Energieträger | Gas |
| Energieausweis | liegt vor |
Beschreibung des Objekts
Ausstattung
Laminatböden, neue Einbauküche, neue Wasser-/ Gastherme, neuer Terrassen-Holzboden.
Lage
Stuttgart-Hedelfingen ist ein charmanter Stadtteil mit guter Infrastruktur. Einkaufsmöglichkeiten für den täglichen Bedarf sowie Ärzte und öffentliche Verkehrsmittel sind gut erreichbar. Die Umgebung bietet zudem Grünflächen, Blick auf die Weinberge, den Wald und Freizeitmöglichkeiten die zur Erholung einladen. Die Grundschule ist in 5 Minuten zu Fuß zu erreichen. Die Anbindung an das Stuttgarter Stadtzentrum ist durch öffentliche Verkehrsmittel gewährleistet, man läuft erwa 7 Minuten zur U-Bahn Station Hedelfingen.
Grundriss
Grundriss EG
>
>
1000294230
>
>
1000294231
>
>
Adresse
Kreuzhaldenstr. 7, 70329 Stuttgart
Interessante Orte
Preis- und Lageinformationen
Preistrend für Bestandsimmobilien in Hedelfingen