Modernes Wohnhaus mit Gewerbeeinheit, Whirlpool und 12 Stellplätzen – Wohnen & Arbeiten an einem Ort
Objektbeschreibung:
Diese besondere Immobilie bietet zahlreiche Möglichkeiten, modernes Wohnen und Arbeiten ideal zu kombinieren. Das massiv gebaute, freistehende Einfamilienhaus befindet sich im Gewerbegebiet des Brettener Stadtteils Gölshausen und steht auf einem ca. 1.100 m² großen Grundstück. In den letzten Jahren wurde das Anwesen umfassend modernisiert und präsentiert sich in hervorragendem Zustand.
Das Objekt kann komplett oder in zwei Einheiten gemietet werden:
Wohnhaus mit Terrasse, Whirlpool und Doppelgarage: 2.000 € monatlich
Gewerbeeinheit mit 12 Stellplätzen auf dem Hofgelände: 1.500 € monatlich
Gesamtobjekt (Wohnhaus + Gewerbeeinheit): 3.500 € monatlich
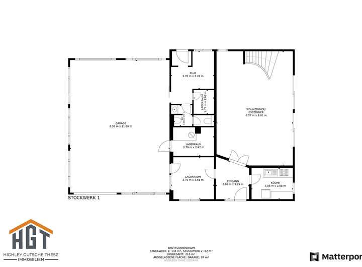
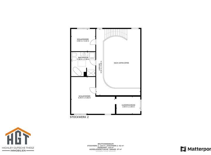
Ausstattung Wohnhaus (ca. 200 m²):
Großzügiger, offen gestalteter Wohn- und Essbereich mit Galerie und beeindruckender Raumhöhe
Moderne Einbauküche mit hochwertigen Geräten
Fitness- bzw. Abstellraum
Klimatisiertes Schlafzimmer mit Ankleide
Gäste- bzw. Kinderzimmer
Luxuriöses Tageslichtbad (2021 saniert) mit freistehender Badewanne, Rainshower-Dusche, Steinwaschbecken, Urinal und WC
Neue Bosch-Gaszentralheizung für effizientes Heizen
Terrasse mit Solar-Außendusche und Whirlpool unter Pavillon
Doppelgarage und komplett eingezäuntes Grundstück mit Videoüberwachung, Alarmanlage und Smart-Home-Elementen
Ausstattung Gewerbeeinheit (ca. 100 m²):
Geflieste, beheizte Halle mit Platz für bis zu 6 PKWs und Motorräder
Büro, Heizraum, Abstellraum und WC
Ideal nutzbar als Werkstatt, Lager, Handwerksbetrieb, Showroom oder Büro
12 Stellplätze auf dem Hofgelände
Flexible Raumaufteilung für verschiedene Geschäftsmodelle
Das Objekt ist nach Absprache zum 01.12.2025 bezugsfrei.
Überzeugen Sie sich selbst bei einer persönlichen Besichtigung von diesem außergewöhnlichen Mietobjekt!
Exklusives Einfamilienhaus mit vielseitig nutzbarer Gewerbehalle in Bretten-Gölshausen!
75015 Bretten
Die vollständige Adresse der Immobilie erhalten Sie vom Anbieter.
Auf Karte anzeigen
Die vollständige Adresse der Immobilie erhalten Sie vom Anbieter.
Infos
| Haustyp | Einfamilienhaus |
|---|---|
| Etagenzahl | 2 |
| Wohnfläche ca. | 200 m2 |
| Nutzfläche | 100 m2 |
| Grundstücksfläche | 1.100 m2 |
| Bezugsfrei ab | 01.12.2025 |
| Zimmer | 9 |
| Schlafzimmer | 2 |
| Badezimmer | 2 |
| Garage/Stellplatz | Garage |
| Anzahl Garage/Stellplatz | 12 |
Kosten
| Kaltmiete |
3.500 € |
|---|---|
| Nebenkosten | + 200 € |
| Heizkosten | in Nebenkosten enthalten |
| Gesamtmiete | 3.700 € |
| Kaution o. Genossenschaftsanteile | 2MM |
Weiter mieten oder doch kaufen?
Wer in Miete wohnt, überweist dem Vermieter im Laufe der Jahre hohe Summen, die sich
auch in die eigenen vier Wände investieren lassen könnten.
Bausubstanz & Energieausweis
| Baujahr | 1988 |
|---|---|
| Letzte Sanierung | 2024 |
| Qualität der Austattung | Gehoben |
| Heizungsart | Zentralheizung |
| Wesentliche Energieträger | Gas |
| Energieausweis | liegt vor |
| Energieausweistyp | Verbrauchsausweis |
| Energieverbrauchskennwert | 184,6 kWh/(m²*a) |
| Energieeffizienzklasse | F |
184,6
kWh/(m²*a)
Energieeffizienzklasse F
- A+
- A
- B
- C
- D
- E
- F
- G
- H
- 0
- 25
- 50
- 75
- 100
- 125
- 150
- 175
- 200
- 225
- >250
Beschreibung des Objekts
Ausstattung
- Neue Bosch Gaszentralheizung (2024)
- Fußbodenheizung im Wohn-Esszimmer
- Fliesen
- Laminat
- Alarmanlage
- Überwachungskameras mit Recorder
- Sicherheitshaustür mit Fingerprint
- Bewegungsmelder
- Klingelanlage
- moderne Einbauküche mit Markengeräten
- Tageslichtbad mit freistehender Badewanne, Rainshower Dusche, Steinwaschbecken, Toilette und Urinal
- Terrasse
- Pavillon
- Garten
- Doppelstabmattenzaun
- Whirlpool
- Gewerbeeinheit oder Showroom für 6 Fahrzeuge mit Toilette, Waschbecken und separates Urinal
- 12 Kfz Stellplätze im Hof
- Doppelgarage
Lage
Das Ortsbild von Gölshausen ist geprägt von historischen Fachwerkhäusern und gepflegten Gärten. Die Straßen sind von Bäumen gesäumt und verleihen dem Ort ein charmantes Flair. In unmittelbarer Nähe der Immobilie befinden sich alle wichtigen Einrichtungen des täglichen Bedarfs wie Supermärkte, Bäckereien, Apotheken, Banken und Ärzte.
Geografisch liegt Bretten-Gölshausen günstig zwischen den bedeutendsten Verdichtungsräumen Baden-Württembergs: Karlsruhe im Westen, Pforzheim im Süden, Stuttgart/Heilbronn im Osten bzw. Nordosten sowie Mannheim/Heidelberg im Norden. Die Stadt befindet sich in einem Rechteck der wichtigsten Nord-Süd-Autobahnen (A5 Basel-Frankfurt und A81 Heilbronn-Stuttgart) sowie West-Ost-Autobahnen (A8 Karlsruhe-Stuttgart und A6 Mannheim-Heilbronn). Diese Autobahnanschlüsse sind in weniger als einer halben Stunde erreichbar. Darüber hinaus bietet Bretten durch die Bundesstraßen B35, B293 und B294 eine exzellente regionale Infrastruktur, die Verbindungen zu den umliegenden Städten Bruchsal, Pforzheim, Eppingen, Mühlacker und Karlsruhe ermöglicht.
Die umliegende Natur lädt zu ausgiebigen Wanderungen, Fahrradtouren und Spaziergängen ein. Besonders beliebt ist der nahegelegene Badesee, der an heißen Sommertagen für Abkühlung sorgt. Auch für Familien mit Kindern bietet Gölshausen ein ideales Umfeld, da es mehrere Kindergärten, Schulen und Spielplätze im Ort gibt.
Zusammenfassend lässt sich sagen, dass Gölshausen ein ruhiger und familienfreundlicher Ort mit einer guten Infrastruktur und hervorragenden Verkehrsanbindungen ist. Der ideale Ort für Menschen, die das Landleben in naturnaher Umgebung schätzen, aber dennoch nicht auf die Annehmlichkeiten einer größeren Stadt verzichten möchten.
Grundriss
33
>
>
34
>
>
Adresse
75015 Bretten
Interessante Orte
Preis- und Lageinformationen
Preistrend für Bestandsimmobilien in Bretten