Diese exklusive Penthouse-Wohnung begeistert vom ersten Moment an durch ihre lichtdurchfluteten Räume und den großzügigen privaten Balkon. Trotz der zentralen Lage genießen Sie hier absolute Ruhe – Verkehrslärm ist innerhalb der Wohnung nicht wahrnehmbar und auch im Außenbereich nur dezent zu hören.
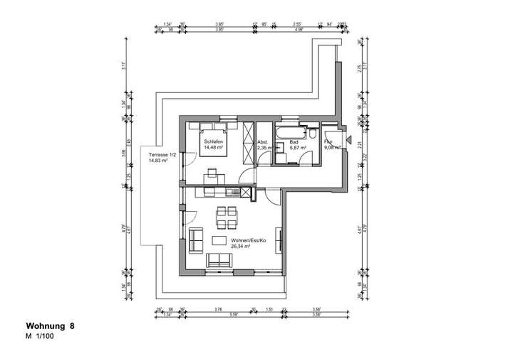
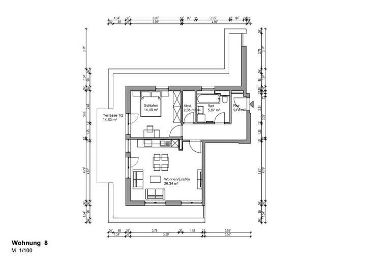
Beim Betreten der Wohnung empfängt Sie ein einladender Flur mit Garderobenbereich. Folgen Sie dem Flur, finden Sie auf der rechten Seite das stilvoll gestaltete Badezimmer. Auf rund 6 m² bietet es eine moderne Dusche, ein Waschbecken sowie eine Toilette – perfekt, um entspannt in den Tag zu starten.
Folgen Sie dem Flur weiter, gelangen Sie geradeaus in das Schlafzimmer. Mit etwa 14,5 m² bietet es ausreichend Platz für ein komfortables Doppelbett, einen geräumigen Kleiderschrank oder eine individuelle Einrichtung nach Ihren Vorstellungen. Von hier aus haben Sie direkten Zugang zum Balkon – ein ruhiger Rückzugsort für entspannte Stunden.
Direkt neben dem Schlafzimmer befindet sich ein praktischer Abstellraum, der zusätzlichen Stauraum für Haushaltsutensilien, Vorräte oder persönliche Gegenstände bietet.
Gegenüber des Abstellraums öffnet sich der großzügige Wohn- und Essbereich – das Herzstück der Wohnung. Eine moderne Einbauküche erfüllt höchste kulinarische Ansprüche, während der offene Wohnbereich mit rund 26 m² Raum für einen großen Esstisch, eine gemütliche Sofalandschaft sowie individuelle Gestaltungsideen bietet. Von hier aus gelangen Sie sowohl auf den Balkon. Je nach Tageszeit oder Stimmung können Sie den perfekten Außenbereich wählen – ob sonnig oder schattig, gesellig oder ruhig.
Zur Wohnung gehören außerdem ein abschließbarer Kellerraum sowie ein Stellplatz in der Tiefgarage. Die Kellerabteile sind durch Stahlpaneelwände voneinander getrennt, verfügen über Beleuchtung, Steckdose und eine mechanische Belüftung – durchdacht bis ins Detail.
Neubau-Penthouse mit Weitblick – mit Einbauküche
85570 Markt Schwaben
Die vollständige Adresse der Immobilie erhalten Sie vom Anbieter.
Auf Karte anzeigen
Die vollständige Adresse der Immobilie erhalten Sie vom Anbieter.
Infos
| Wohnungskategorie | Etagenwohnung |
|---|---|
| Etage | 2 von 3 |
| Wohnfläche ca. | 74 m2 |
| Nutzfläche | 97,44 m2 |
| Zimmer | 2 |
| Schlafzimmer | 1 |
| Badezimmer | 1 |
| Garage/Stellplatz | Tiefgarage |
| Anzahl Garage/Stellplatz | 1 |
Kosten
| Kaltmiete |
1.640 € |
|---|---|
| Nebenkosten | + 150 € |
| Heizkosten | keine Angabe |
| Gesamtmiete | 1.790 € |
| Miete für Garage/Stellplatz | 80 € |
| Kaution o. Genossenschaftsanteile | 3 Monatskaltmieten |
Weiter mieten oder doch kaufen?
Wer in Miete wohnt, überweist dem Vermieter im Laufe der Jahre hohe Summen, die sich
auch in die eigenen vier Wände investieren lassen könnten.
Bausubstanz & Energieausweis
| Baujahr | 2024 |
|---|---|
| Objektzustand | Erstbezug |
| Heizungsart | Fernwärme |
| Wesentliche Energieträger | Fernwärme |
Beschreibung des Objekts
Ausstattung
Tageslichtbad
Gesamtes Gebäude barrierefrei
Aufzug
Fußbodenheizung
Tiefgaragenstellplatz
Offenes Küchendesign mit Einbauküche
Lage
Die 2-Zimmer-Wohnung liegt im Herzen von Markt Schwaben, an der nördlichen Grenze des oberbayerischen Landkreises Ebersberg. Dank der exzellenten öffentlichen Verkehrsanbindung, der ruhigen Lage, vielfältigen Freizeitmöglichkeiten und der Nähe zu München, bietet Markt Schwaben eine hohe Lebensqualität.
Geschäfte des täglichen Bedarfs, wie Bäcker, Supermärkte oder Drogerien, sind zu Fuß schnell erreichbar. Auch Kindergärten und Schulen aller Sparten sind vor Ort, was für Familien einen entscheidenden Vorteil bietet.
Weitere Highlights in der Umgebung sind der Theaterverein Markt Schwaben, der Wildpark Poing, das Schloss Aufhausen sowie das Indoor-Tauchzentrum Divers Indoor.
Auch Sportaktivitäten kommen nicht zu kurz. In nur 5 Minuten sind Sie zu Fuß beim ortsansässigen Turnverein Markt Schwaben und in 5 Minuten mit dem Auto bei der Spielvereinigung Markt Schwaben.
Die S-Bahn Haltestelle “Markt Schwaben” ist bequem zu Fuß in 5 Minute erreichbar. Mit der S2 sind Sie in nur 30 Minuten am Münchner Hauptbahnhof.
Mit dem Auto benötigen Sie ca. 35 Minuten zum Hauptbahnhof, 7 Minuten zur Autobahn A94 und 23 Minuten zum Flughafen Franz Josef Strauß.
Sonstige Angaben
GESETZLICHES WIDERRUFSRECHT
Mit der Novellierung des Verbraucherrechts sind wir als Makler verpflichtet unsere Kunden (Privatkunden) über Ihre gesetzlichen Widerrufsrechte zu informieren. Bitte beachten Sie hierfür die Widerrufsbelehrung.
S C H A D E N E R S A T Z P F L I C H T
Dieses Angebot ist ausschließlich für Sie, als Empfänger, bestimmt und somit vertraulich zu behandeln. Bei Weiterleitung an Dritte entsteht Schadenersatzpflicht.
H I N W E I S
Gemäß §§ 10 und 11 MaBV weisen wir darauf hin, dass wir Vermögenswerte nicht entgegen nehmen und für Sie bis auf Widerruf tätig werden. Irrtum vorbehalten. Die im Exposé genannten Fakten beruhen auf Aussagen des Eigentümers. Wir können hier im Einzelfall keine Gewähr übernehmen.
M I E T V E R H A N D L U N G E N
Der Eigentümer hat uns ausdrücklich beauftragt, die Verhandlungen im Rahmen des Alleinauftrages für ihn zu übernehmen.
Grundriss
36b7c609-048d-4087-9e12-d4ef15
>
>
Adresse
85570 Markt Schwaben
Interessante Orte
Preis- und Lageinformationen
Preistrend für Bestandsimmobilien in Markt Schwaben