Willkommen im Village Lichtenrade. In dieser dreistöckigen Doppelhaushälfte (Typ "Green") finden Familien alles vor, was städtisches Wohnen im Grünen ausmacht.
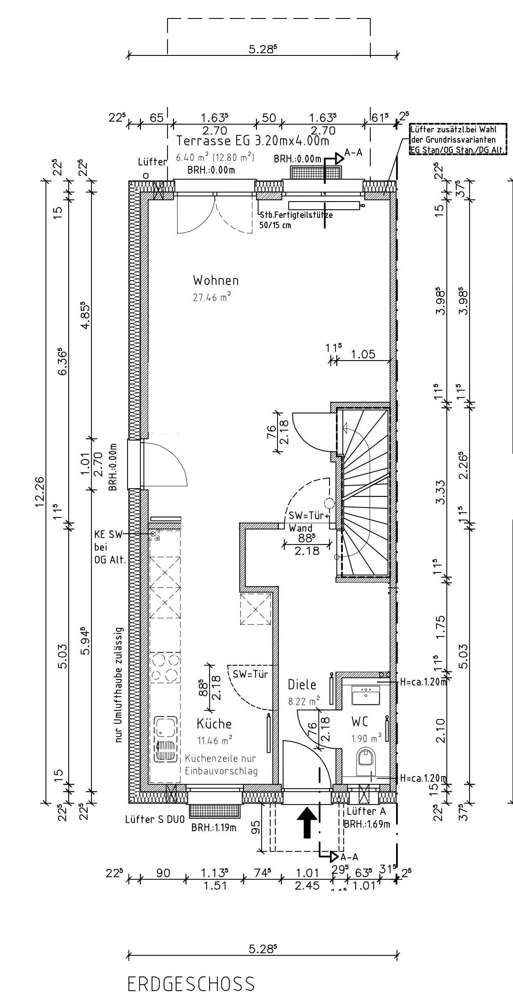
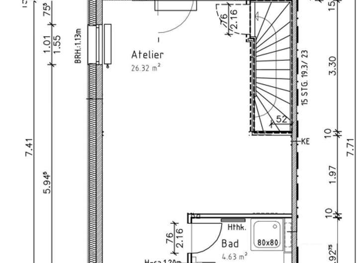
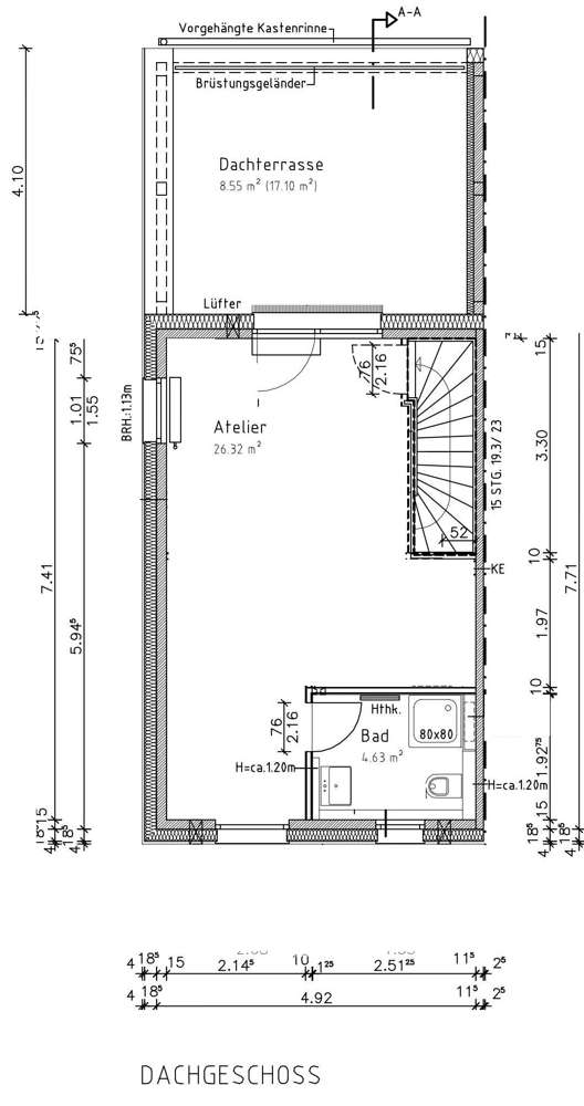
Gleich hinter dem Eingangsflur befindet sich das Gäste-WC sowie eine grosse Aussparungen für Garderoben. Die Küche ist mit hochwertigen Einbauten ausgestattet und bietet einen offene Durchgang zum Wohn- und Esszimmer mit über 27qm als Lebensmittelpunkt Ihres neuen Zuhauses. Von hier aus haben Sie Zutritt zur Terrasse mit Westausrichtung und Blick auf Ihren eigenen Garten. Im ersten Obergeschoss bietet das Haus "Green" zwei baugleiche und über 18qm grosse Schlafzimmer mit Ausblick auf die ruhige Strasse (Osten) bzw über den Garten (Westen). Dazwischen befindet sich das geräumige Wannenbad mit separater Dusche und Tageslicht. Im obersten, dritten Geschoss folgt ein Atelier mit bis zu 3,30m hohen Decken, eigenem Duschbad (Tageslicht) und eigener Terrasse in Westausrichtung.
Ein grosser Bonuspunkt des hier angebotenen Hauses: Es ist vollunterkellert, schafft mit zwei jeweils über 18 qm grossen Kellerräumen ordentlich Platz und bietet zahlreiche Abstell- und Unterbringungsmöglichkeiten für Ihre Gerätschaften. Je nach Bedarf und Ansprüchen lässt sich der Keller natürlich auch als Hobby- oder Arbeitsraum nutzen.
Am besten Sie machen sich selbst ein Bild vom Village Lichtenrade und vereinbaren individuell eine ausführliche Einzelbesichtigung mit uns. Dies selbstverständlich auch gern am Wochenende. Wir freuen uns auf Ihre Kontaktaufnahme, gern auch telefonisch.
elegante Doppelhaushälfte, Carport, vollunterkellert. Einzelbesichtigungen
Nuthestr. 21k,
12307 Berlin
Auf Karte anzeigen
Infos
| Haustyp | Doppelhaushaelfte |
|---|---|
| Etagenzahl | 3 |
| Wohnfläche ca. | 143 m2 |
| Nutzfläche | 190,9 m2 |
| Grundstücksfläche | 315 m2 |
| Bezugsfrei ab | 15.11.2025 |
| Zimmer | 4 |
| Schlafzimmer | 3 |
| Badezimmer | 2 |
| Haustiere | Nach Vereinbarung |
| Garage/Stellplatz | Carport |
| Anzahl Garage/Stellplatz | 1 |
Kosten
| Kaltmiete |
2.476 € |
|---|---|
| Nebenkosten | + 273 € |
| Heizkosten | + 171 € |
| Gesamtmiete | 2.990 € (zzgl. Heizkosten) |
| Miete für Garage/Stellplatz | 70 € |
| Kaution o. Genossenschaftsanteile | 3 Monatsmieten |
Weiter mieten oder doch kaufen?
Wer in Miete wohnt, überweist dem Vermieter im Laufe der Jahre hohe Summen, die sich
auch in die eigenen vier Wände investieren lassen könnten.
Bausubstanz & Energieausweis
| Baujahr | 2020 |
|---|---|
| Objektzustand | Gepflegt |
| Heizungsart | Zentralheizung |
| Energieausweis | liegt vor |
| Energieausweistyp | Bedarfsausweis |
| Energieverbrauchskennwert | 45,1 kWh/(m²*a) |
| Energieeffizienzklasse | A |
45,1
kWh/(m²*a)
Energieeffizienzklasse A
- A+
- A
- B
- C
- D
- E
- F
- G
- H
- 0
- 25
- 50
- 75
- 100
- 125
- 150
- 175
- 200
- 225
- >250
Beschreibung des Objekts
Ausstattung
- hochwertige Einbauküche mit Markengeräten (Siemens, Constructa)
- Holzparkett in allen Wohnräumen (Eiche natur)
- Hauptbad mit Wanne und separater, verglaster Dusche
- hochwertige Sanitärobjekte und Armaturen (Villeroy&Boch, Grohe)
- Gäste-WC im Eingangsbereich
- Süd-Terrasse mit 13 qm und großem Garten
- Dachterrasse mit 17 qm und Südausrichtung
- Kellerräume mit knapp 48qm
- dezentrale Lüftung mit Wärmerückgewinnung
- separate Netzwerkdose auf jeder Etage
Lage
Das Village Lichtenrade liegt im gleichnamigen Ort als südlichstem Teil des Berliner Bezirks Tempelhof-Schöneberg. Die aus Reihenhäusern und Doppelhaushälften entstandene Wohnsiedlung nördlich der Alten Mälzerei ist dank Gärten und verkehrsberuhigten Privatstrassen familienfreundlich und zudem sehr gut angebunden.Bäcker und Supermärkte sind nach 4min Fußweg, Geschäftszentrum Bahnhofstrasse und Bushaltestelle nach 10 Minuten erreicht. Die S-Bahn Lichtenrade liegt ca 600m und S-Bahn Schichauweg ca 400m entfernt. Sowohl mit Auto als auch den öffentlichen Verkehrsmitteln gelangen sie in kurzer Zeit und je nachdem sowohl in die Berliner Innenstadt als auch ins grüne Umland.
Sonstige Angaben
Bei Rückfragen und für weitere Informationen stehen wir Ihnen jederzeit gern zur Verfügung. Vor Ort
Ansprechpartner: Herr Becker 0173 2307376
Grundriss
Grundriss Kellergeschoss
>
>
Grundriss Erdgeschoss
>
>
Green Obergeschoss
>
>
Green Dachgeschoss
>
>
Adresse
Nuthestr. 21k, 12307 Berlin
Interessante Orte
Preis- und Lageinformationen
Preistrend für Bestandsimmobilien in Lichtenrade (Tempelhof)