Das Wohnprojekt in der Johnsen Quartier in Bremen, erbaut im Jahr 2017, umfasst zehn moderne Häuser mit insgesamt 145 Wohnungen. Die Wohnungen, die sich auf 1 bis 4 Zimmer verteilen, bieten komfortables Wohnen für unterschiedliche Bedürfnisse. Jede der Wohnungen ist mit einem Balkon oder einer Terrasse ausgestattet, was zusätzlichen Freiraum und Wohnkomfort bietet.
Das Objekt liegt in einem attraktiven Wohngebiet Bremens, das gut an das Stadtzentrum angebunden ist. Die Lage bietet eine angenehme Mischung aus städtischem Leben und grüner Umgebung.
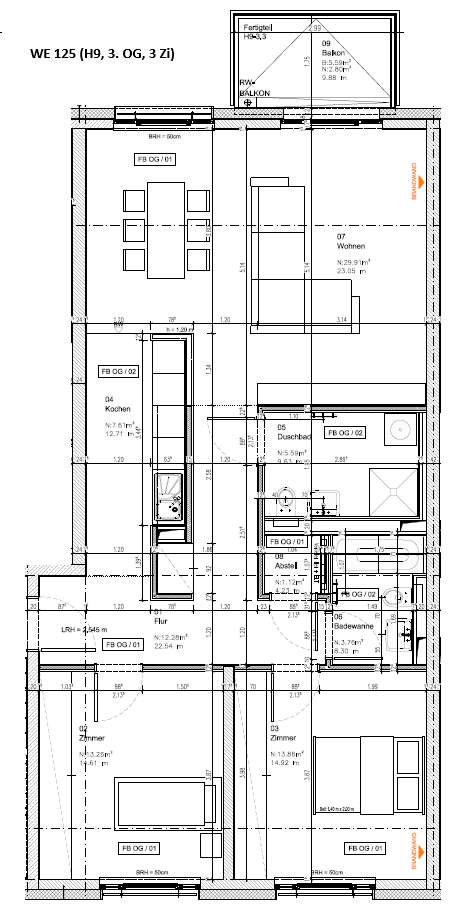
Ideal für kleine Familien: Großzügige 3-Zimmer-Wohnung in der Überseestadt
Herzogin-Cecilie-Allee 4,
28217 Bremen
Auf Karte anzeigen
Infos
| Wohnungskategorie | Etagenwohnung |
|---|---|
| Etage | 3 von 4 |
| Wohnfläche ca. | 90 m2 |
| Bezugsfrei ab | 01.01.2026 |
| Zimmer | 3 |
| Schlafzimmer | 2 |
| Badezimmer | 1 |
| Garage/Stellplatz | Parkhaus |
| Anzahl Garage/Stellplatz | 1 |
Kosten
| Kaltmiete |
1.105 € |
|---|---|
| Nebenkosten | + 365 € |
| Heizkosten | in Nebenkosten enthalten |
| Gesamtmiete | 1.470 € |
| Miete für Garage/Stellplatz | 60 € |
| Kaution o. Genossenschaftsanteile | 3.315,00 |
Weiter mieten oder doch kaufen?
Wer in Miete wohnt, überweist dem Vermieter im Laufe der Jahre hohe Summen, die sich
auch in die eigenen vier Wände investieren lassen könnten.
Bausubstanz & Energieausweis
| Baujahr | 2017 |
|---|---|
| Objektzustand | Neuwertig |
| Qualität der Austattung | Normal |
| Heizungsart | Fernwärme |
| Wesentliche Energieträger | Fernwärme |
| Energieausweis | liegt vor |
| Energieausweistyp | Bedarfsausweis |
| Energieverbrauchskennwert | 60,2 kWh/(m²*a) |
| Energieeffizienzklasse | B |
60,2
kWh/(m²*a)
Energieeffizienzklasse B
- A+
- A
- B
- C
- D
- E
- F
- G
- H
- 0
- 25
- 50
- 75
- 100
- 125
- 150
- 175
- 200
- 225
- >250
Beschreibung des Objekts
Ausstattung
Eine hochwertige Ausstattung und praktische Gestaltungsdetails lassen modernen Wohnkomfort lebendig werden:
- Helle, lichtdurchflutete Wohnungen
- Parkettboden in den Wohnbereichen
- Bäder mit Wanne oder Dusche
- Fußbodenheizung
- Alle Wohnungen mit Terrasse oder Balkon
- Aufzug
- Parkhaus
- Fahrradstellplätze im Außenbereich
- KfW-Effizienzhaus 70-Standard
Lage
Modernes Wohnen im Herzen der Hansestadt Bremen!
Im Bremer Stadtteil Überseestadt bietet das "Johnsen-Quartier" attraktives Wohnen in begehrter Wassernähe. Das Ensemble besteht aus zehn fünfgeschossigen Gebäudeteilen, die durch ihre Anordnung einen gemeinsamen Innenhof schaffen, der zum Verweilen und Entspannen einlädt.
Das "Johnsen-Quartier" in der Bremer Überseestadt, nur wenige Schritte von der Weser entfernt, bietet höchsten Wohnkomfort für Jung und Alt. Mit einem eigenem Parkhaus und einer modernen Ausstattung lässt dieses Gebäudeensemble keine Wünsche offen und begeistert.
Der weitläufige Strandpark „Waller Sand“ befindet sich in fußläufiger Nachbarschaft und lädt insbesondere an heißen Sommertagen mit Volleyballfeldern und zahlreichen Sitzmöglichkeiten zum Verweilen ein. In unmittelbarer Nähe liegt zudem der Überseepark, welcher mit seinen großen Erholungsflächen, dem Spielplatz und einer Skatebahn für alle Altersklassen etwas zu bieten hat. In Kombination mit dem abwechslungsreichen kulinarischen und kulturellen Angebot entsteht ein ganz eigenes, besonderes Flair der Überseestadt.
Verlässt man einmal das eigene Stadtviertel, ist das Einkaufszentrum Waterfront nicht nur mit Auto, Bus und Straßenbahn, sondern im Sommer auch mit der Weserfähre Hal över in etwa 15 Minuten zu erreichen. Die 120 Geschäfte, der große Kinokomplex und der Food Court des Einkaufszentrums bilden eine willkommene Abwechslung zur ansonsten ruhigen Lage der Deichhäuser. Mit dem Auto oder der Buslinie 28 ist auch die Innenstadt zügig erreichbar. Sie können aber auch gemütlich über die Weserpromenade entlang bis in die Innenstadt schlendern.
Sonstige Angaben
ANFRAGEN BITTE ÜBER DAS KONTAKTFORMULAR!
Wir respektieren die Privatsphäre der derzeitigen Mieter, daher handelt es sich bei den Bildern um Bilder einer vergleichsweisen Wohnung im Objekt.
Bitte beachten: Wir weisen vorsorglich darauf hin, dass bei Abschluss des Mietvertrags eine Mindestmietdauer von 24 Monate sowie eine Indexmiete vereinbart werden.
HAFTUNGSAUSSCHLUSS:
Diese Anzeige dient nur der ersten Information und stellt kein Vertragsangebot dar. Die Anzeige begründet keine vertraglichen Ansprüche. Der Inhalt und die Angaben wurden nach bestem Wissen und Gewissen ermittelt. Für Richtigkeit und Vollständigkeit wird keine Haftung übernommen.
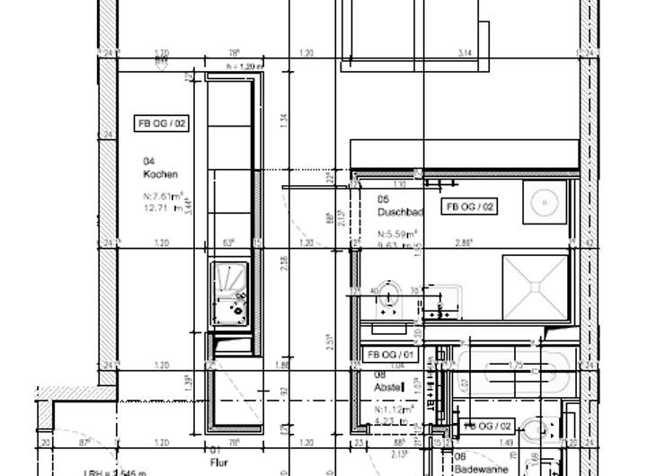
Grundriss
Grundriss
>
>