Vorab: Es handelt sich um ein WG-Zimmer in einer 2er-WG. Da die geteilte Wohnung größer ist, als viele andere Wohnungen für Alleinstehende, inseriere ich es als "halbe Wohnung".
# Zimmer
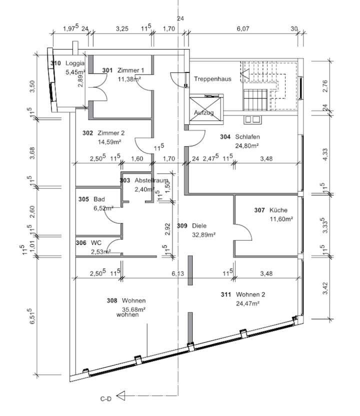
Für Dich frei wird ein großzügig geschnittenes WG-Zimmer [304] mit circa 25 Quadratmetern mit viel Tageslicht.
Neben Deinem Zimmer bietet die Wohngemeinschaft sehr weitläufige Gemeinschaftsräume. Dazu gehört insbesondere eine große offene Küche [308] und ein großes Wohnzimmer [311] mit jeweils einem schönen Ausblick auf die Niedere Straße.
Das Badezimmer [305] verfügt über eine Dusche und eine Badewanne.
Die Toilette [306] ist in einem separaten Raum.
Ein kleiner Vorratsraum [303] dient uns aktuell dazu Getränke- und Lebensmittelvorräte zu lagern.
Daneben verfügt die Wohngemeinschaft über eine große Waschküche [307]. Diese wurde auch bisher die meiste Zeit durch meinen aktuellen Mitbewohner als Aufenthaltsraum verwendet. Nach persönlicher Absprache könnte man diese sicherlich auch als zusätzlichen Hobbyraum oder auch Arbeitszimmer umfunktionieren. Schreibe mir von einem möglichen Bedarf gerne in Deiner Bewerbung.
[Die Zahlen im Text entsprechen den Zimmernummern im Grundriss.]
# WG-Leben
Unsere Wohngemeinschaft habe ich vor knapp zwei Jahren mit einem guten Freund aus dem Studium gegründet, den es nun beruflich in eine andere Stadt ziehen wird.
In dieser Zeit haben wir eine gut funktionierende Berufstätigen-WG aufgebaut. Es ist sicherlich so, dass wir beide es uns ebenfalls gut leisten können, alleine zu wohnen, jedoch die WG als Wohnform, die Größe der Wohnung und die exzellente Lage bevorzugen.
Dazu gehört sicherlich auch, dass man sich gut versteht und auch mal etwas gemeinsam unternimmt. Die große Wohnung bietet jedoch genug Platz, dass man auch seine Freiräume hat.
Ich persönlich bin 30 Jahre alt, männlich und arbeite als IT-Consultant (häufig Home Office). Bevorzugt suche ich auch jemand Beruftstätigen, gerne auch in etwa in meinem Alter (25-35 Jahre).
"Halbe" 172m²-Wohnung/ 2er-WG in bester Altstadtlage
Niedere Straße 20-22,
78050 Villingen-Schwenningen
Auf Karte anzeigen
Infos
| Wohnungskategorie | Etagenwohnung |
|---|---|
| Etage | 3 von 5 |
| Wohnfläche ca. | 172 m2 |
| Bezugsfrei ab | 22.11.2025 |
| Zimmer | 6 |
| Badezimmer | 1 |
| Haustiere | Nach Vereinbarung |
Kosten
| Kaltmiete |
525 € |
|---|---|
| Nebenkosten | + 175 € |
| Heizkosten | in Nebenkosten enthalten |
| Gesamtmiete | 700 € |
| Kaution o. Genossenschaftsanteile | 1.400 |
Weiter mieten oder doch kaufen?
Wer in Miete wohnt, überweist dem Vermieter im Laufe der Jahre hohe Summen, die sich
auch in die eigenen vier Wände investieren lassen könnten.
Bausubstanz & Energieausweis
| Baujahr | 1966 |
|---|---|
| Objektzustand | Renovierungsbedürftig |
| Qualität der Austattung | Einfach |
| Heizungsart | Gas-Heizung |
| Wesentliche Energieträger | Gas |
| Energieausweis | liegt vor |
| Energieausweistyp | Verbrauchsausweis |
| Energieverbrauchskennwert | 87,0 kWh/(m²*a) |
| Energieeffizienzklasse | C |
87,0
kWh/(m²*a)
Energieeffizienzklasse C
- A+
- A
- B
- C
- D
- E
- F
- G
- H
- 0
- 25
- 50
- 75
- 100
- 125
- 150
- 175
- 200
- 225
- >250
Beschreibung des Objekts
Lage
Die Wohnung befindet sich mitten in der historischen Altstadt von Villingen auf einer der Hauptachsen und damit sicherlich in einer der besten Wohnlagen der Stadt.
Diese Lage eignet sich besonders für Personen, die in in einem der zahlreichen Unternehmen, Behörden oder Schulen in und um die Villinger Altstadt tätig sind oder die in Ihrer Freizeit die zentrale Lage zu schätzen wissen.
Fast alles, was man zum Leben braucht, ist innerhalb von wenigen Minuten fußläufig erreichbar.
Sonstige Angaben
Einzug jederzeit möglich.
Grundriss
1993d9e80c6459775cb0d43ead0b09
>
>
Adresse
Niedere Straße 20-22, 78050 Villingen-Schwenningen
Interessante Orte
Preis- und Lageinformationen
Preistrend für Bestandsimmobilien in Villingen-Schwenningen