Willkommen in Ihrem neuen Zuhause in begehrter Lage von Düsseldorf-Kaiserswerth. Dieses gepflegte Einfamilienhaus bietet Ihnen mit ca. 220 m² Wohnfläche und einem Grundstück von ca. 579 m² viel Platz für ein komfortables Familienleben.
Das Haus verfügt insgesamt über sechs gut geschnittene Zimmer, darunter vier großzügige Schlafzimmer. Zwei modern ausgestattete Badezimmer, eins als Dusch- und Wannenbad und beide mit Fenster, sorgen für hohen Wohnkomfort.
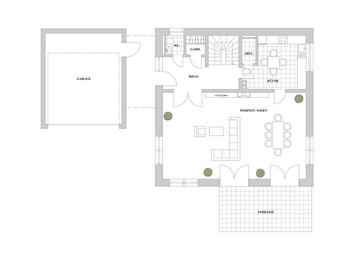
Im Erdgeschoss erwartet Sie eine Wohnküche, mit einer Einbauküche, die bereits im Mietpreis enthalten ist, sowie ein heller, einladender Wohn- und Essbereich mit direktem Zugang zum Garten – ideal für entspannte Stunden im Freien oder gesellige Abende. Ein Gäste-WC rundet das Raumangebot auf dieser Etage ab.
Im Untergeschoss befindet sich ein weiteres, sehr gut belichtetes und beheiztes, Zimmer, das sich beispielsweise als Hobbyraum, Büro oder Gästezimmer anbietet. Hinzu kommen zwei große Abstellräume und ein Hauswirtschaftskeller.
Zusätzliche Annehmlichkeiten bieten die Doppelgarage mit davor liegenden Stellplätzen in der Einfahrt.
-------------
Welcome to your new home in the sought-after location of Düsseldorf-Kaiserswerth. With approx. 220 m² of living space and a plot of approx. 579 m², this well-maintained single-family home offers plenty of space for comfortable family living.
The house has a total of six well-designed rooms, including four spacious bedrooms. Two modern bathrooms, one with a shower and bathtub and both with windows, ensure a high level of living comfort.
On the ground floor, you will find a kitchen with built-in appliances, which is already included in the rent, as well as a bright, inviting living and dining area with direct access to the garden – ideal for relaxing outdoors or enjoying convivial evenings. A guest toilet completes the space on this floor.
In the basement, there is another well-lit and heated room that could be used as a hobby room, office, or guest room. There are also two large storage rooms and a utility room.
Additional amenities include a double garage with outdoor parking spaces in front of the house.
Familientraum in Kaiserswerth - fußläufig zur ISD - schöner Garten
40489 Düsseldorf
Die vollständige Adresse der Immobilie erhalten Sie vom Anbieter.
Auf Karte anzeigen
Die vollständige Adresse der Immobilie erhalten Sie vom Anbieter.
Infos
| Haustyp | Einfamilienhaus |
|---|---|
| Etagenzahl | 2 |
| Wohnfläche ca. | 220 m2 |
| Nutzfläche | 52 m2 |
| Grundstücksfläche | 579 m2 |
| Bezugsfrei ab | 01.12.2025 |
| Zimmer | 6 |
| Schlafzimmer | 4 |
| Badezimmer | 2 |
| Haustiere | Nach Vereinbarung |
| Garage/Stellplatz | Garage |
| Anzahl Garage/Stellplatz | 3 |
Kosten
| Kaltmiete |
5.500 € |
|---|---|
| Nebenkosten | + 300 € |
| Heizkosten | keine Angabe |
| Gesamtmiete | 5.800 € (zzgl. Heizkosten) |
| Kaution o. Genossenschaftsanteile | 16.500 € |
Weiter mieten oder doch kaufen?
Wer in Miete wohnt, überweist dem Vermieter im Laufe der Jahre hohe Summen, die sich
auch in die eigenen vier Wände investieren lassen könnten.
Bausubstanz & Energieausweis
| Baujahr | 2006 |
|---|---|
| Objektzustand | Gepflegt |
| Qualität der Austattung | Gehoben |
| Heizungsart | Zentralheizung |
| Wesentliche Energieträger | Erdgas leicht |
| Energieausweis | liegt vor |
| Energieausweistyp | Verbrauchsausweis |
| Energieverbrauchskennwert | 116,2 kWh/(m²*a) |
| Energieeffizienzklasse | D |
116,2
kWh/(m²*a)
Energieeffizienzklasse D
- A+
- A
- B
- C
- D
- E
- F
- G
- H
- 0
- 25
- 50
- 75
- 100
- 125
- 150
- 175
- 200
- 225
- >250
Beschreibung des Objekts
Ausstattung
- frei stehendes Einfamilienhaus
- Sonnen-Terrasse und großer Garten
- SieMatic Einbauküche
- sechs vielfältig nutzbare Zimmer, teilweise mit Einbauschränken
- en-suite Masterbad mit Fenster, Dusche und Wanne
- weiteres Dusch-Badezimmer im Obergeschoss
- hochwertige Fliesen (Villeroy & Boch) im gesamten Haus
- Fußbodenheizung mit Einzelraumsteuerung
- elektrische Rollläden
- große Garage für bis zu zwei Autos
- zusätzlich Stellplätze in der Einfahrt
- großzügiger Garten mit Sonnenterrasse
---------------
- Detached single-family home
- Sun terrace and large garden
- SieMatic fitted kitchen
- Six versatile rooms, some with built-in wardrobes
- En-suite master bathroom with window, shower, and bathtub
- Additional shower bathroom on the upper floor
- High-quality tiles (Villeroy & Boch) throughout the house
- Underfloor heating with individual room control
- Electric shutters
- Large garage and parking spaces in front (included in the rent)
- Spacious garden with sun terrace
Lage
Kaiserswerth zählt zu den begehrtesten Wohnlagen im Norden Düsseldorfs. Der historische Stadtteil verbindet eine ruhige, gediegene Atmosphäre mit der unmittelbaren Nähe zum Rhein und einem hohen Freizeitwert.
Das Objekt liegt dabei in einem besonders angenehmen Wohnbereich: gepflegt, grün und von einer harmonischen Nachbarschaft geprägt. Alle Dinge des täglichen Bedarfs sind schnell erreichbar – von Einkaufsmöglichkeiten über Apotheken bis hin zu gemütlichen Restaurants und traditionellen Bäckereien.
Familien schätzen besonders die exzellente Bildungsversorgung: Die International School of Düsseldorf befindet sich direkt in Kaiserswerth und ist in nur wenigen Minuten erreichbar. Auch weitere renommierte Schulen und Kindergärten liegen im näheren Umfeld. Damit ist das Wohngebiet ideal für internationales und familienfreundliches Leben geeignet.
Dank der U-Bahnlinie U79 sowie mehrerer Buslinien ist der Anschluss an die Düsseldorfer Innenstadt sehr gut. Über die nahegelegenen Autobahnen gelangt man zudem schnell in umliegende Städte und in das Ruhrgebiet.
---------------
Kaiserswerth is one of the most sought-after residential areas in the north of Düsseldorf. This historic district combines a quiet, dignified atmosphere with close proximity to the Rhine and a wide range of leisure activities.
The property is located in a particularly pleasant residential area: well-maintained, green, and characterized by a harmonious neighborhood. Everything you need for daily life is within easy reach—from shopping and pharmacies to cozy restaurants and traditional bakeries.
Families particularly appreciate the excellent educational facilities: the International School of Düsseldorf is located directly in Kaiserswerth and can be reached in just a few minutes. Other renowned schools and kindergartens are also located in the immediate vicinity. This makes the residential area ideal for international and family-friendly living.
Thanks to the U79 subway line and several bus lines, the connection to Düsseldorf city center is very good. The nearby highways also provide quick access to surrounding cities and the Ruhr area.
Grundriss
Erdgeschoss
>
>
Obergeschoss
>
>
Kellergeschoss
>
>
Adresse
40489 Düsseldorf
Interessante Orte
Preis- und Lageinformationen
Preistrend für Bestandsimmobilien in Kaiserswerth