Im Gewerbegebiet von Weil im Schönbuch steht dieses großzügige Haus mit ca. 260 m² Wohn- oder Bürofläche ab dem 01.12.2025 zur Vermietung.
Das Haus erstreckt sich über zwei Etagen und verfügt über zwei Badezimmer sowie ein Gäste-WC. Die gehobene Innenausstattung bietet ein ansprechendes Ambiente. Im Erdgeschoss erstreckt sich neben der großzügigen offenen Küche ein Wohn-Essbereich auf 2 Ebenen. Die hochwertige Einbauküche kann kostengünstig vom Vormieter übernommen werden.
Weiter verfügt das EG über ein separates Zimmer/Büro mit eigener Nasszelle (Dusche/WC).
Das OG besteht aus 4 ca. gleich großen Räumen. Wobei ein Raum jeweils einen direkten Zugang zur Ankleide und zum exklusiven Bad im OG hat.
Als zusätzliche Nutzflächen verfügt das Haus über 3 Kellerräume mit insgesamt ca. 58m² und einen Carport für 2 Fahrzeuge. (36m²) Einer der Kellerräume ist klimatisiert und bietet sich als Serverraum an. Die aufwändige Netzwerkverkabelung und der vorhandene Serverschrank kann bei Bedarf verwendet werden. Das Gewerbeareal mit zwei angrenzenden Gebäuden ist komplett an das Glasfasernetz angebunden. Dieses kann nach technischer Klärung gegen Gebühr ggf. mit genutzt werden.
Zuletzt wurde das Gebäude als Bürohaus mit repräsentativem Atrium im Erdgeschoss genutzt. Dementsprechend sind alle Räume ausreichend mit LAN-Anschlüssen ausgestattet,
Die lockere und moderne Raumaufteilung ermöglicht vielfältige Nutzungsmöglichkeiten: z.B. für Konstruktionsbüro, Dentallabor, Software, Vertriebsbüro, Grafiker, etc. oder Wohnen & Arbeiten.
Modernes Wohn- oder Bürohaus in Weil im Schönbuch
Karl-Benz-Straße 22,
71093 Weil im Schönbuch
Auf Karte anzeigen
Infos
| Haustyp | Sonstige |
|---|---|
| Etagenzahl | 2 |
| Wohnfläche ca. | 260 m2 |
| Nutzfläche | 94 m2 |
| Grundstücksfläche | 510 m2 |
| Bezugsfrei ab | 8.1.2026 |
| Zimmer | 7,5 |
| Schlafzimmer | 5 |
| Badezimmer | 2 |
| Haustiere | Nach Vereinbarung |
Kosten
| Kaltmiete |
2.600 € |
|---|---|
| Nebenkosten | keine Angabe |
| Heizkosten | keine Angabe |
| Gesamtmiete | 2.600 € (zzgl. Nebenkosten) |
| Kaution o. Genossenschaftsanteile | 2 MM |
Weiter mieten oder doch kaufen?
Wer in Miete wohnt, überweist dem Vermieter im Laufe der Jahre hohe Summen, die sich
auch in die eigenen vier Wände investieren lassen könnten.
Bausubstanz & Energieausweis
| Baujahr | 2004 |
|---|---|
| Letzte Sanierung | 2025 |
| Objektzustand | Gepflegt |
| Qualität der Austattung | Gehoben |
| Heizungsart | Gas-Heizung |
| Wesentliche Energieträger | Gas |
| Energieausweis | liegt zur Besichtigung vor |
Beschreibung des Objekts
Lage
Weil im Schönbuch ist eine charmante Gemeinde im Landkreis Böblingen, die eine gute Anbindung an die umliegenden Städte bietet. Die Infrastruktur umfasst notwendige Einkaufsmöglichkeiten, Ärzte und Schulen, die eine gute Versorgung für die Bewohner gewährleisten. In direkter Nachbarschaft zu dem Wohn- oder Bürohaus befindet sich ein Discounter, ein Drogeriemarkt und eine Bäckerei. Die Haltestelle der Schönbuchbahn ist fußläufig erreichbar.
Die Umgebung mit dem nahegelegenen Naturpark Schönbuch lädt zu Freizeitaktivitäten im Grünen ein und bietet eine ruhige Wohnlage bei gleichzeitig guter Infrastruktur.
Sonstige Angaben
Kontakt mobil: +49 173 2003314.
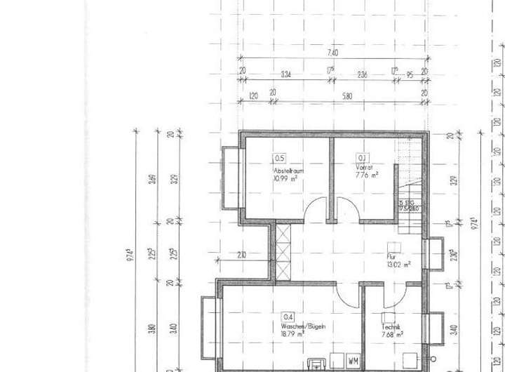
Grundriss
Bürohaus EG
>
>
Bürohaus OG
>
>
Bürohaus UG
>
>
Adresse
Karl-Benz-Straße 22, 71093 Weil im Schönbuch
Interessante Orte
Preis- und Lageinformationen
Preistrend für Bestandsimmobilien in Weil im Schönbuch