Dieses sonnenverwöhnte Einfamilienhaus bietet auf drei Ebenen außergewöhnlich viel Platz für die ganze Familie. Das Haus überzeugt durch seine hochwertige Ausstattung und ein durchdachtes Raumkonzept, das großzügiges Wohnen und Wohlfühlatmosphäre ideal vereint.
Drei Balkone sowie zwei Terrassen in alle Himmelsrichtungen laden zum Entspannen und Genießen der Sonne zu jeder Tageszeit ein. Der liebevoll angelegte Garten bietet zusätzlichen Raum zum Verweilen im Grünen.
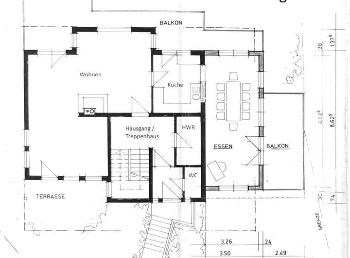
Zur Ausstattung gehören zwei moderne Badezimmer sowie ein Gäste-WC. Die Einbauküche ist hochwertig und lässt keine Wünsche offen. In der unteren Etage kann eine weitere kleine Küche eingebaut werden. Eine große Garage mit drei Stellplätzen rundet das Angebot ab.
Haustiere sind nicht gestattet.
Großzügiges Einfamilienhaus mit Panoramablick in die Weinberge
75438 Knittlingen
Die vollständige Adresse der Immobilie erhalten Sie vom Anbieter.
Auf Karte anzeigen
Die vollständige Adresse der Immobilie erhalten Sie vom Anbieter.
Infos
| Haustyp | Einfamilienhaus |
|---|---|
| Etagenzahl | 3 |
| Wohnfläche ca. | 238 m2 |
| Nutzfläche | 267 m2 |
| Grundstücksfläche | 500 m2 |
| Bezugsfrei ab | 1.11.2025 |
| Zimmer | 8,5 |
| Schlafzimmer | 5 |
| Badezimmer | 2 |
| Haustiere | Nein |
| Garage/Stellplatz | Garage |
| Anzahl Garage/Stellplatz | 3 |
Kosten
| Kaltmiete |
2.200 € |
|---|---|
| Nebenkosten | + 0 € |
| Heizkosten | keine Angabe |
| Gesamtmiete | 2.200 € (zzgl. Heizkosten) |
| Kaution o. Genossenschaftsanteile | 6.6 |
Weiter mieten oder doch kaufen?
Wer in Miete wohnt, überweist dem Vermieter im Laufe der Jahre hohe Summen, die sich
auch in die eigenen vier Wände investieren lassen könnten.
Bausubstanz & Energieausweis
| Baujahr | 1992 |
|---|---|
| Letzte Sanierung | 2025 |
| Objektzustand | Vollständig Renoviert |
| Qualität der Austattung | Gehoben |
| Heizungsart | Öl-Heizung |
| Wesentliche Energieträger | Öl |
| Energieausweis | liegt zur Besichtigung vor |
Beschreibung des Objekts
Lage
Hohenklingen ist ein idyllischer Teilort von Knittlingen und verbindet ruhiges, naturnahes Wohnen mit der Nähe zu einer gut ausgebauten Infrastruktur. Kindergärten und die Grundschule sind fußläufig zu erreichen. In Knittlingen finden sich vielfältige Einkaufsmöglichkeiten für den täglichen Bedarf, Ärzte sowie Schulen. Die Anbindung an den öffentlichen Nahverkehr ist gegeben und ermöglicht eine flexible Mobilität. Die reizvolle Umgebung lädt zu zahlreichen Freizeitaktivitäten in der Natur ein und bietet eine hohe Lebensqualität.
Grundriss
Obergeschoss
>
>
Erdgeschoss
>
>
Untergeschoss
>
>
Adresse
75438 Knittlingen
Interessante Orte
Preis- und Lageinformationen
Preistrend für Bestandsimmobilien in Knittlingen