Dieses moderne Reihenmittelhaus befindet sich im familienfreundlichen Düsseldorf-Einbrungen.
Sonnige Stunden können Sie im Garten, auf der Terrasse oder auf Ihrer Dachterrasse genießen. Sie haben eine hervorragende Anbindung zur Internationalen Schule, Düsseldorfer Innenstadt und dem historischen Ortskern von Kaiserswerth. Der Supermarkt und die Straßenbahn sind fußläufig erreichbar.
Gerne überzeugen wir Sie bei einem Besichtigungstermin vor Ort.
Familienfreundliche Lage: Modernes Reihenmittelhaus mit Dachterrasse in Einbrungen
40489 Düsseldorf
Die vollständige Adresse der Immobilie erhalten Sie vom Anbieter.
Auf Karte anzeigen
Die vollständige Adresse der Immobilie erhalten Sie vom Anbieter.
Infos
| Haustyp | Reihenmittelhaus |
|---|---|
| Etagenzahl | 4 |
| Wohnfläche ca. | 144 m2 |
| Nutzfläche | 52 m2 |
| Grundstücksfläche | 200 m2 |
| Bezugsfrei ab | 01.01.2026 |
| Zimmer | 5 |
| Schlafzimmer | 4 |
| Badezimmer | 2 |
| Haustiere | Nach Vereinbarung |
Kosten
| Kaltmiete |
2.100 € |
|---|---|
| Nebenkosten | + 150 € |
| Heizkosten | keine Angabe |
| Gesamtmiete | 2.250 € |
| Kaution o. Genossenschaftsanteile | 6300 |
Weiter mieten oder doch kaufen?
Wer in Miete wohnt, überweist dem Vermieter im Laufe der Jahre hohe Summen, die sich
auch in die eigenen vier Wände investieren lassen könnten.
Bausubstanz & Energieausweis
| Baujahr | 2002 |
|---|---|
| Objektzustand | Gepflegt |
| Qualität der Austattung | Normal |
| Heizungsart | Fernwärme |
| Wesentliche Energieträger | Fernwärme |
| Energieausweis | liegt vor |
| Energieausweistyp | Bedarfsausweis |
| Energieverbrauchskennwert | 123,0 kWh/(m²*a) |
| Energieeffizienzklasse | D |
123,0
kWh/(m²*a)
Energieeffizienzklasse D
- A+
- A
- B
- C
- D
- E
- F
- G
- H
- 0
- 25
- 50
- 75
- 100
- 125
- 150
- 175
- 200
- 225
- >250
Beschreibung des Objekts
Ausstattung
- Großzügiger Wohnraum mit Essbereich und vorgelagerter Terrasse
- Küche mit EBK
- Gäste-WC und Diele
- 2 Schlafzimmer
- 2 Bäder
- Schlafzimmer
- Gästezimmer
- Flur
- Dachterrasse
- Waschkeller
- Abstellraum und Flur
- Anmietung einer Garage für zzgl. 50 € / Monat möglich
- Das Haus wurde in 2 1/2 geschossiger Bauweise errichtet
- Staffelmietvertrag
Lage
Der Stadtteil Wittlaer-Einbrungen zählt zu den begehrtesten Wohnstandorten im nördlichen Einzugsbereich der Landeshauptstadt Düsseldorf.
Die optimale Verkehrsanbindung mit PKW und öffentlichen Verkehrsmitteln nach Kaiserswerth, Düsseldorf und zum Flughafen verleihen der ruhigen Wohnlage im Grünen ihre besondere Attraktivität.
Die gute Infrastruktur von Wittlaer-Einbrungen bietet Ihnen einen neuen Supermarkt, eine neue Drogerie, einen Tageskindergarten, zahlreiche Kinderspielplätze und eine neue integrierte Straßenbahnhaltestelle.
In Wittlaer befinden sich drei Kindergärten und eine Grundschule. Kaiserswerth besitzt eine Grundschule und zwei private Gymnasien mit bestem Ruf, sowie eine Internationale Schule. Auch die Möglichkeiten für Sport und Freizeit sind sehr zahlreich.
Die reizvolle Niederrheinlandschaft bietet Ihnen zu jeder Jahreszeit die Gelegenheit aktiv zu entspannen - spazieren gehen, Fahrrad fahren und joggen unmittelbar von zu Hause aus.
Sonstige Angaben
Denken Sie aktuell über den Verkauf Ihrer Immobilie nach? Kennen Sie denn bereits den Wert Ihrer Immobilie?
In nur wenigen Klicks erhalten Sie von uns per E-Mail eine erste Einschätzung zur aktuellen Wertermittlung Ihrer Immobilie.
Hier geht es direkt zu unserer kostenlosen Online-Wohnmarktanalyse: WWW.IMMOBILIEN-BOECKER.DE/WERTANALYSE
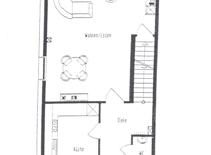
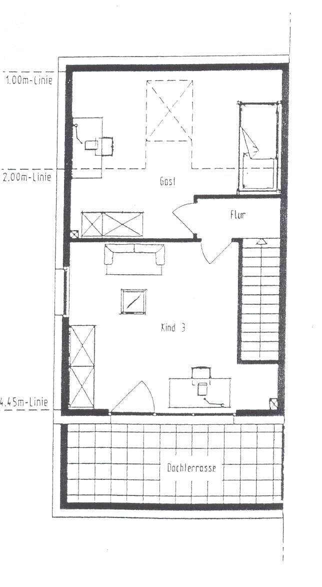
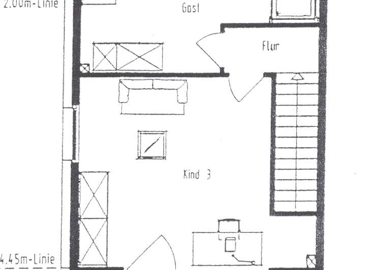
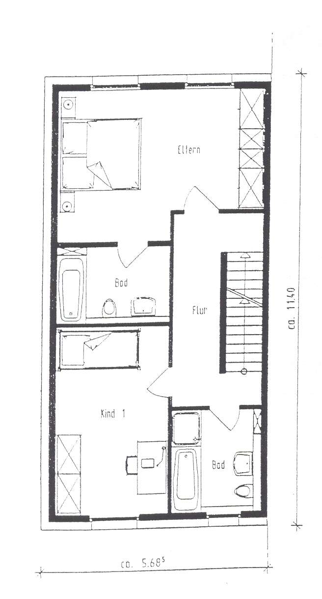
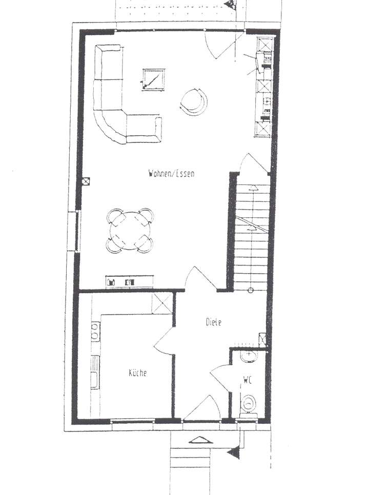
Grundriss
Erdgeschoss spiegelverkehrt
>
>
Obergeschoss spiegelverkehrt
>
>
Dachgeschoss spiegelverkehrt
>
>
Kellergeschoss spiegelverkehrt
>
>
Adresse
40489 Düsseldorf
Interessante Orte
Preis- und Lageinformationen
Preistrend für Bestandsimmobilien in Wittlaer