Diese moderne Neubau-Doppelhaushälfte mit ca. 220 m² Gesamtfläche bietet viel Platz zum Wohlfühlen, Arbeiten und Leben.
Das Haus ist hochwertig ausgestattet, energieeffizient (Wärmepumpe & Fußbodenheizung in allen Etagen) und verfügt über einen großen Garten sowie eine Doppelgarage.
Raumaufteilung:
Erdgeschoss (ca. 75 m²):
- großzügiger Wohn-/Essbereich mit Zugang zur Terrasse & Garten
- offene Küche
- Büro oder Gästezimmer
- Duschbad
- Speisekammer
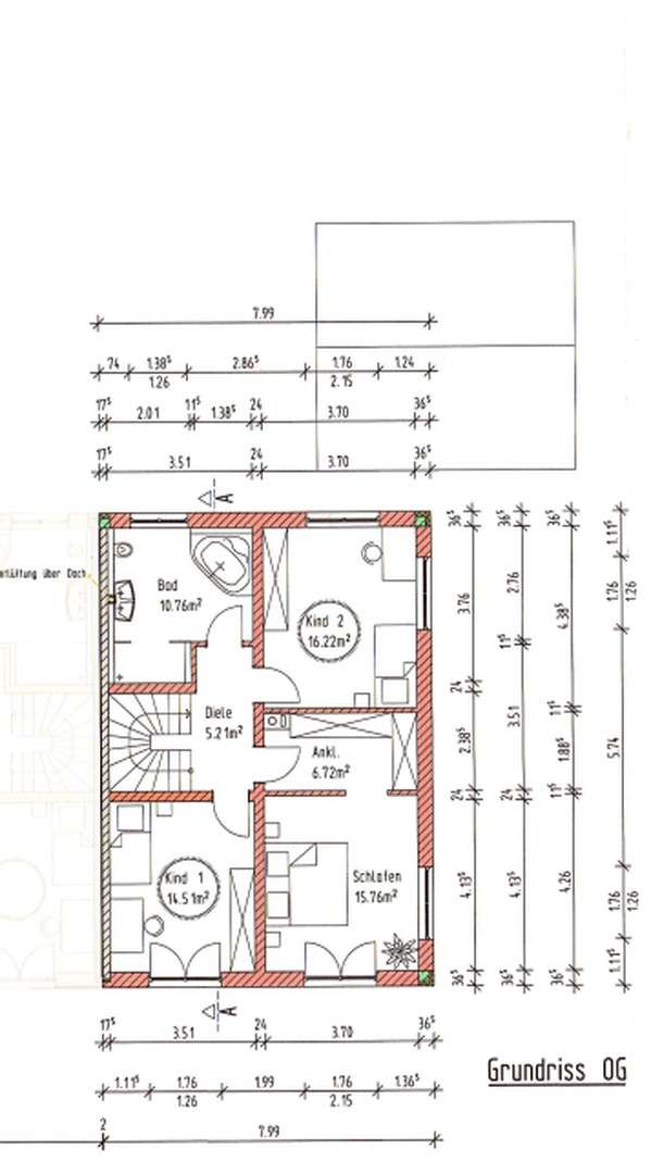
Obergeschoss (ca. 75 m²):
- 3 Schlafzimmer
- großes Bad mit Badewanne
- heller Flur
Kellergeschoss (ca. 70 m²):
- vollständig ausgebaut, beheizt & mit separatem Eingang
- ideal nutzbar für große Kinder, Großeltern, Büro oder Homeoffice
- heller Wohn-/Essbereich
- 2 weitere Zimmer
- modernes Duschbad
Neubau-Doppelhaushälfte mit Einliegerbereich & Garten - ideal für Familien oder Homeoffice
Waldblickstr. 30,
84359 Simbach am Inn
Auf Karte anzeigen
Infos
| Haustyp | Doppelhaushaelfte |
|---|---|
| Etagenzahl | 3 |
| Wohnfläche ca. | 150 m2 |
| Nutzfläche | 100 m2 |
| Grundstücksfläche | 368 m2 |
| Bezugsfrei ab | sofort |
| Zimmer | 7 |
| Schlafzimmer | 3 |
| Badezimmer | 3 |
| Garage/Stellplatz | Garage |
| Anzahl Garage/Stellplatz | 2 |
Kosten
| Kaltmiete |
2.200 € |
|---|---|
| Nebenkosten | + 150 € |
| Heizkosten | keine Angabe |
| Gesamtmiete | 2.350 € |
| Kaution o. Genossenschaftsanteile | 6600 EUR |
Weiter mieten oder doch kaufen?
Wer in Miete wohnt, überweist dem Vermieter im Laufe der Jahre hohe Summen, die sich
auch in die eigenen vier Wände investieren lassen könnten.
Bausubstanz & Energieausweis
| Baujahr | 2025 |
|---|---|
| Objektzustand | Erstbezug |
| Wesentliche Energieträger | Umweltwärme |
| Energieausweis | liegt vor |
| Energieausweistyp | Bedarfsausweis |
| Energieverbrauchskennwert | 25,0 kWh/(m²*a) |
| Energieeffizienzklasse | A+ |
25,0
kWh/(m²*a)
Energieeffizienzklasse A+
- A+
- A
- B
- C
- D
- E
- F
- G
- H
- 0
- 25
- 50
- 75
- 100
- 125
- 150
- 175
- 200
- 225
- >250
Beschreibung des Objekts
Ausstattung
Terrasse, Garten, Keller, Vollbad, Duschbad, Gäste-WC, Fliesen
Bemerkungen:
- Neubau, Fertigstellung 2025
- ca. 220 m² Gesamtfläche (inkl. ausgebautem Souterrain)
- Fußbodenheizung in allen Etagen
- energieeffiziente Wärmepumpe
- Hochwertige Fliesen & Bodenbeläge
- Moderne Bäder mit ebenerdigen Duschen
- große Terrasse mit Garten
- Doppelgarage inklusive
Lage
Simbach am Inn liegt idyllisch an der Grenze zu Österreich und bietet gleichzeitig eine
hervorragende Verkehrsanbindung. Die A94 ermöglicht eine schnelle Verbindung nach München in ca. 1 Stunde. Einkaufsmöglichkeiten, Schulen, Kindergärten und medizinische Versorgung sind vor Ort. Die umliegende Natur bietet zahlreiche Freizeitmöglichkeiten - von Radwegen entlang des Inns bis zu Ausflügen ins nahegelegene Österreich.
Infrastruktur (im Umkreis von 5 km):
Apotheke, Allgemeinmediziner, Kindergarten, Grundschule, Hauptschule, Realschule, Gymnasium, Gesamtschule, Öffentliche Verkehrsmittel
Sonstige Angaben
Heizungsart: Fußbodenheizung
- Bezugsfertig ab sofort
- Doppelgarage + Stellplätze
- Wärmepumpe (niedrige Betriebskosten)
- Glasfaseranschluss
Makleranfragen nicht erwünscht. Nach § 7 UWG sind unaufgeforderte Kontaktaufnahmen durch Makler ohne ausdrückliche Einwilligung des Empfängers verboten!
ohne-makler (OM) ist weder Anbieter noch Vermittler der Immobilie. OM betreibt eine Plattform für Immobilieneigentümer, die unter anderem die gleichzeitige Veröffentlichung einzelner Inserate auf mehreren Immobilienportalen ermöglicht. Die Inhalte dieser Inserate werden ausschließlich von Dritten verantwortet. Für die Richtigkeit, Vollständigkeit oder Rechtmäßigkeit der Angaben übernimmt OM keine Haftung. Hinweise auf mögliche Rechtsverstöße können jederzeit gemeldet werden und werden nach Prüfung umgehend bearbeitet.
Weitere Dokumente
EnergieausweisGrundriss
Grundriss (KG)
>
>
Grundriss (OG)
>
>
Grundriss (EG)
>
>
Adresse
Waldblickstr. 30, 84359 Simbach am Inn
Interessante Orte
Preis- und Lageinformationen
Preistrend für Bestandsimmobilien in Simbach am Inn