Die exklusive Walmdach-Villa wurde 2001 in Massivbauweise mit weißer
Klinkerfassade als Firmeninhaber-Wohnsitz errichtet. Später wurde sie als
Musik Studio mit Wohnung und Gästezimmern genutzt. Die Villa verfügt
über Erd- und Mansardgeschoss sowie ein wohnlich ausgebautes Kellerge-
schoss (Deckenhöhe ca. 2,30 m). Die Immobilie wurde fortlaufend instand gehalten und hochwertig modernisiert. Neben der hervorragenden Bausubstanz besticht das Objekt mit exklusivem Interieur hochwertiger Materialien und Marken. Alle Bereiche im Haus befinden sich in einem exzellenten Zustand.
Exklusive Mansarddach-Villa für Gewerbe & Wohnen
25421 Pinneberg
Die vollständige Adresse der Immobilie erhalten Sie vom Anbieter.
Auf Karte anzeigen
Die vollständige Adresse der Immobilie erhalten Sie vom Anbieter.
Infos
| Haustyp | Villa |
|---|---|
| Etagenzahl | 2 |
| Wohnfläche ca. | 232 m2 |
| Nutzfläche | 139 m2 |
| Grundstücksfläche | 1.400 m2 |
| Bezugsfrei ab | sofort |
| Zimmer | 5 |
| Schlafzimmer | 4 |
| Badezimmer | 2 |
| Haustiere | Nach Vereinbarung |
| Garage/Stellplatz | Garage |
| Anzahl Garage/Stellplatz | 2 |
Kosten
| Kaltmiete |
4.500 € |
|---|---|
| Nebenkosten | + 250 € |
| Heizkosten | keine Angabe |
| Gesamtmiete | 4.750 € (zzgl. Heizkosten) |
| Kaution o. Genossenschaftsanteile | Bürgschaft |
Weiter mieten oder doch kaufen?
Wer in Miete wohnt, überweist dem Vermieter im Laufe der Jahre hohe Summen, die sich
auch in die eigenen vier Wände investieren lassen könnten.
Bausubstanz & Energieausweis
| Baujahr | 2001 |
|---|---|
| Objektzustand | Vollständig Renoviert |
| Qualität der Austattung | Luxus |
| Heizungsart | Zentralheizung |
| Wesentliche Energieträger | Gas |
| Energieausweis | liegt vor |
| Energieausweistyp | Bedarfsausweis |
| Energieverbrauchskennwert | 88,9 kWh/(m²*a) |
| Energieeffizienzklasse | C |
88,9
kWh/(m²*a)
Energieeffizienzklasse C
- A+
- A
- B
- C
- D
- E
- F
- G
- H
- 0
- 25
- 50
- 75
- 100
- 125
- 150
- 175
- 200
- 225
- >250
Beschreibung des Objekts
Ausstattung
Alle Kunststoff-Sprossenfenster verfügen über elektrische Außenrolladen. Das Erdgeschoss wird über eine Fußbodenheizung, das Mansardgeschoss über Wandheizkörper erwärmt. Beheizung
und Warmwasserbereitung erfolgt über eine BUDERUS Gaszentralheizung. Eine Trinkwasserenthärtungsanlage ist installiert. Die Wohnbereiche werden mit elektronisch dimmbaren Downlights
beleuchtet. Das Studio im Dachgeschoss verfügt über eine Lüftungsanlage. Das Haus ist an das Glasfaser Highspeed-Netz angeschlossen.
Im Erdgeschoss sind neben dem großzügigen Wohn und Essbereich
die geräumige Küche mit separatem Essplatz, ein Duschbad sowie ein Abstellraum angeordnet. Ein Teilbereich ist der Garage vorbehalten. Die Böden sind hier durchgängig mit einem Naturstein-Belag aus Travertin ausgestattet, im Wohnzimmer wurde ein Teilbereich als Holzboden mit gekälkter Mooreiche ausgeführt. Der Kamin sorgt bei norddeutschem Schmuddelwetter für angenehme Behaglichkeit.
Bodentiefe Fenstertüren richten den Blick vom Wohnzimmer und von der Küche in den nicht einsehbaren Garten und bieten Zugang zur teilweise überdachten und beheizten Gartenterrasse.
In der ca. 30 qm großen Küche erwartet nicht nur den ambitionierten Hobbykoch Equipment vom Feinsten. Die POGGENPOHL Einbauküche wurde 2016 installiert und verbindet modernes Design mit dem Luxus edler Materialien. Exklusive Küchentechnik von MIELE mit ergonomisch angeordneten Backofen, Dampfgarer, Espressomaschine, Mikrowelle und Wärmefach gehören ebenso zur Ausstattung wie ein großer Side-by-Side Kühlschrank mit Weinkühler.
Mittelpunkt der Küche ist die Kochinsel mit großem Induktionskochfeld und leistungsfähiger Edelstahlabzugshaube. Die Wandbereiche sind in aufwendiger Handarbeit mit Riemchen aus Teakholz gestaltet.
Im EG finden Sie ein mit hochwertigen Markenfabrikaten und Materialien ausgestattet Duschbad. Die Wandverkleidung hier wurde aufwendig mit Limestone-Bricks gestaltet.
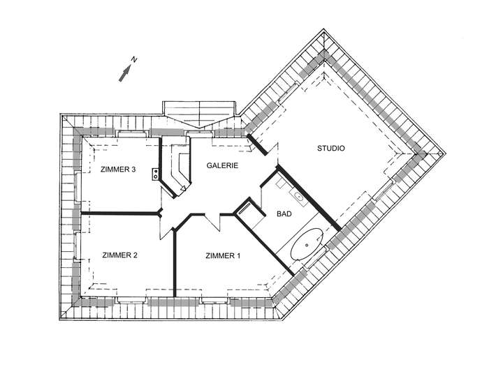
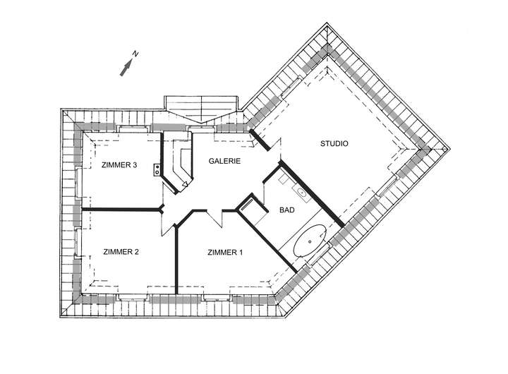
Im Mansardgeschoss gelangen Sie über die großzügige Galerie zum Studio, den 3 weiteren Schlafzimmern sowie zum Masterbad. Dielenböden aus geölter Eiche, Stuckleisten und Downlights sowie hochwertige Tischler-Maßeinbauten prägen hier die hochwertige Ausstattung. Das als Schlafzimmer genutzte Studio verfügt über eine elektronisch regelbare Lüftungsanlage.
Das Badezimmer mit italienischen Fliesen und hochwertigen Markenobjekten besticht durch zurückhaltenden Luxus. Neben einer geräumigen Rainshower Dusche sorgt die Badewanne für Zwei für Wohlfühlatmosphäre im ca. 16 qm großen Spa Bereich.
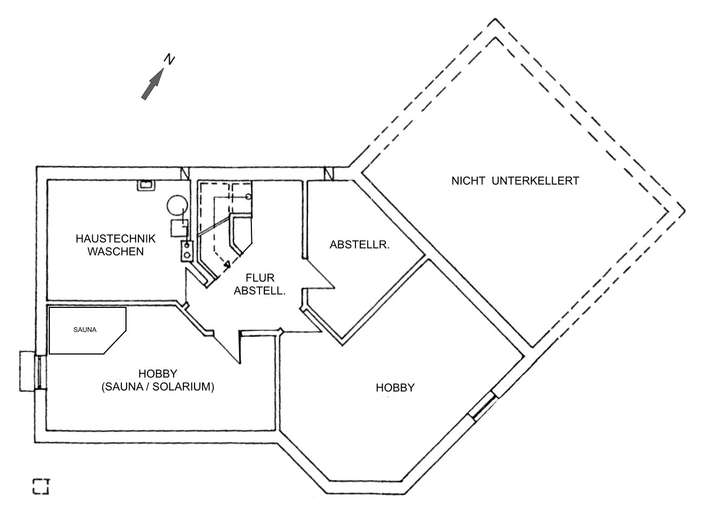
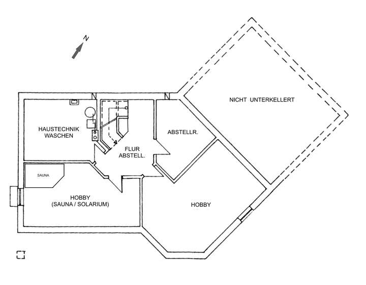
Im Kellergeschoss sind zwei Zimmer, ein Abstellraum sowie ein Technik-/ Waschraum angeordnet. Hier befindet der Wellnessbereich mit Sauna und Solarium. Im Flurbereich wurden vom Tischler Weinschränke und -regale einschließlich integrierten Kühler maßgefertigt. Der separate Ab-stellraum verfügt ebenfalls über Einbauschränke und Regale.
Lage
Die Kreisstadt gehört zur Metropolregion Hamburg und ist durch S-Bahn und A 23 bestens an die Hamburger City angebunden.
Pinneberg bietet eine hervorragende Infrastruktur mit sämtlichen Einkaufsmöglichkeiten, Ärzten, Kindergärten und allen Schulformen.
Die Umgebung zeichnet sich durch einen hohen Freizeitwert aus. Neben vielfältigen Freizeitgebieten findet der Sportbegeisterte Reitvereine, Tennisclubs und zwei Golfplätze in unmittelbarer Nähe.
Das Pinneberger Stadtzentrum sowie alle Einrichtungen des täglichen Bedarfs sind schnell erreichbar.
Die Immobilie befindet sich am westlichen Stadtrand von Pinneberg unweit vom Golfplatz Peiner Hof.
Das Grundstück ist als Gewerbegebiet
ausgewiesen, insofern ist für eine wohnwirtschaftliche Nutzung die Ausübung eines Gewerbes erforderlich.
Sonstige Angaben
Mindestmietdauer 5 Jahre.
Bei Anmietung mit Vollausstattgung beträgt die Kaution 1
Jahreskaltmiete als Kautionsbürgschaft.
Bei einer gewerblicher Anmietung (Gewerbemietvertrag) zahlt der Mieter eine Maklergebühr in Höhe einer Monatsmiete zzgl. 19% Mehrwertsteuer = 5.831,00 € an die OPERIS Grundstücksgesellschaft mbH.
Für die Bearbeitung Ihrer Anfrage senden Sie uns bitte Ihre vollständigen Kontaktdaten einschließlich einer Rückrufnummer.
Alle Angaben wurden uns durch die Eigentümerseite oder Dritte übermittelt. Flächenangaben sind Circa Werte und wurden von uns nicht überprüft. Für die Richtigkeit der im Exposé gemachten Angaben übernehmen wir keine Gewähr. Das Angebot erfolgt freibleibend, Irrtümer und Zwischenvermietung/-verkauf behalten wir uns ausdrücklich vor. Es gelten unsere Allgemeinen Geschäftsbedingungen, die Bestandteil des Exposés sind.
Personenbezogenen Daten werden von uns absolut vertraulich behandelt und unter keinen Umständen an Dritte weitergegeben. Die Speicherung und Verarbeitung von persönlichen Daten erfolgt gemäß DSGVO lediglich zu Bearbeitung der Anfragen und Aufträge. Nicht benötigte Daten werden unverzüglich gelöscht.
Weitere Dokumente
OPERIS AGBGrundriss
Grundriss EG
>
>
Grundriss DG
>
>
Grundriss KG
>
>
Adresse
25421 Pinneberg
Interessante Orte
Preis- und Lageinformationen
Preistrend für Bestandsimmobilien in Pinneberg