Attraktive Immobilie in Planung. Mietkauf möglich. Machen Sie den Check: Jetzt prüfen ob Sie Miet-Kauf berechtigt sind!
Raus aus der Alt-Immobilie - Rein in die eigenen vier Wände
- Ohne Eigenkapital
- Trotz Schulden
Vereinbaren Sie jetzt Ihren Termin mit unseren Miet-Kauf-Spezialisten!
Rheinberg Erstbezug
47495 Rheinberg
Die vollständige Adresse der Immobilie erhalten Sie vom Anbieter.
Auf Karte anzeigen
Die vollständige Adresse der Immobilie erhalten Sie vom Anbieter.
Infos
| Haustyp | Einfamilienhaus |
|---|---|
| Wohnfläche ca. | 140 m2 |
| Nutzfläche | 0 m2 |
| Grundstücksfläche | 501 m2 |
| Zimmer | 4 |
| Schlafzimmer | 3 |
| Badezimmer | 1 |
| Anzahl Garage/Stellplatz | 0 |
Kosten
| Kaltmiete |
1.750 € |
|---|---|
| Nebenkosten | keine Angabe |
| Heizkosten | keine Angabe |
| Gesamtmiete | 1.750 € |
Weiter mieten oder doch kaufen?
Wer in Miete wohnt, überweist dem Vermieter im Laufe der Jahre hohe Summen, die sich
auch in die eigenen vier Wände investieren lassen könnten.
Bausubstanz & Energieausweis
| Baujahr | 2026 |
|---|---|
| Qualität der Austattung | Gehoben |
| Heizungsart | Wärmepumpe |
Beschreibung des Objekts
Ausstattung
Gemeinsam mit Ihnen entwickeln wir von der ersten Idee bis zum fertigen Projekt-Konzept das perfekt zu Ihnen passende Traumhaus, um Ihren individuellen Haustraum zu verwirklichen. Sie erzählen uns was Ihnen wichtig ist, wir beraten Sie, geben wichtige Tipps und Tricks und entwickeln dann für Sie das perfekt passende Haus-Konzept. So wird Ihr neues White and Black Haus auch garantiert zu Ihrem neuen Traumhaus. Es ist uns besonders wichtig, und dies zählen wir auch zu einer unserer ganz großen Stärken, dass Sie von uns bereits im Standard ein Leistungspaket erhalten, das keinerlei Lücken aufweist. Und das von Anfang an. Wir möchten gemeinsam mit Ihnen transparent und realistisch planen und Ihnen unliebsame Überraschungen ersparen. Unser All-Inclusive-Konzept beinhaltet deshalb alle relevanten Hausbau-Details und alle wichtigen Leistungen rund um Ihr neues White and Black Haus.
Mit diesem Konzept beraten wir Sie von Anfang an ehrlich und fair. Wir entwickeln mit Ihnen gemeinsam bedarfs- und budgetorientiert Ihr individuelles Traumhaus made by White and Black Haus.
Lage
Zum Verkauf steht ein großzügiges, 500 m² großes
Baugrundstück in begehrter Wohnlage von Rheinberg-Borth
Sonstige Angaben
Finanzielle Sicherheit und KfW-QNG-Förderung:
Unsere Experten können Ihnen bei der Klärung aller Fragen zur Finanzierung und den möglichen Förderungen zur Seite stehen, einschließlich der Kreditanstalt für Wiederaufbau (KfW) und des Qualitätssiegels Nachhaltiges Bauen (QNG).
Die KfW bietet verschiedene Förderprogramme für energieeffizientes Bauen und Sanieren an, und unser Schwabenhaus könnte von diesen Förderungen profitieren, insbesondere wenn es die KfW-Anforderungen für Energieeffizienz erfüllt.
Das Qualitätssiegel Nachhaltiges Bauen (QNG) ist ein Qualitätsnachweis für nachhaltiges Bauen und kann dazu beitragen, die Umweltauswirkungen des Hauses zu minimieren und die Energieeffizienz zu steigern. Unsere Experten können Ihnen dabei helfen, die QNG-Zertifizierung zu erreichen und von den finanziellen Vorteilen zu profitieren, die sie bietet.
Wir sind bestrebt, sicherzustellen, dass Sie nicht nur Ihr Traumhaus bekommen, sondern auch finanzielle Sicherheit und Unterstützung auf Ihrem Weg zum Eigenheim haben. Zögern Sie nicht, uns zu kontaktieren, um alle Ihre Finanzierungsfragen zu besprechen und eine maßgeschneiderte Lösung zu finden, die Ihren Bedürfnissen entspricht.
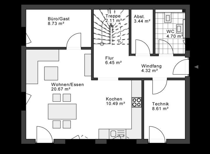
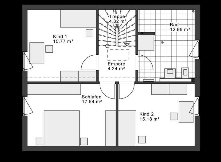
Grundriss
Grundriss EG
>
>
Grundriss OG
>
>
Adresse
47495 Rheinberg
Interessante Orte
Preis- und Lageinformationen
Preistrend für Bestandsimmobilien in Rheinberg