Attraktive Immobilie in Planung. Mietkauf möglich. Machen Sie den Check: Jetzt prüfen ob Sie Miet-Kauf berechtigt sind!
Raus aus der Alt-Immobilie - Rein in die eigenen vier Wände
- Ohne Eigenkapital
- Trotz Schulden
Vereinbaren Sie jetzt Ihren Termin mit unseren Miet-Kauf-Spezialisten!
Erstbezug Duisburg-Fahrn
47179 Duisburg
Die vollständige Adresse der Immobilie erhalten Sie vom Anbieter.
Auf Karte anzeigen
Die vollständige Adresse der Immobilie erhalten Sie vom Anbieter.
Infos
| Haustyp | Einfamilienhaus |
|---|---|
| Wohnfläche ca. | 140 m2 |
| Nutzfläche | 0 m2 |
| Grundstücksfläche | 600 m2 |
| Zimmer | 4 |
| Schlafzimmer | 3 |
| Badezimmer | 1 |
| Anzahl Garage/Stellplatz | 0 |
Kosten
| Kaltmiete |
1.750 € |
|---|---|
| Nebenkosten | keine Angabe |
| Heizkosten | keine Angabe |
| Gesamtmiete | 1.750 € |
Weiter mieten oder doch kaufen?
Wer in Miete wohnt, überweist dem Vermieter im Laufe der Jahre hohe Summen, die sich
auch in die eigenen vier Wände investieren lassen könnten.
Bausubstanz & Energieausweis
| Baujahr | 2026 |
|---|---|
| Qualität der Austattung | Gehoben |
| Heizungsart | Wärmepumpe |
Beschreibung des Objekts
Ausstattung
Gemeinsam mit Ihnen entwickeln wir von der ersten Idee bis zum fertigen Projekt-Konzept das perfekt zu Ihnen passende Traumhaus, um Ihren individuellen Haustraum zu verwirklichen. Sie erzählen uns was Ihnen wichtig ist, wir beraten Sie, geben wichtige Tipps und Tricks und entwickeln dann für Sie das perfekt passende Haus-Konzept. So wird Ihr neues White and Black Haus auch garantiert zu Ihrem neuen Traumhaus. Es ist uns besonders wichtig, und dies zählen wir auch zu einer unserer ganz großen Stärken, dass Sie von uns bereits im Standard ein Leistungspaket erhalten, das keinerlei Lücken aufweist. Und das von Anfang an. Wir möchten gemeinsam mit Ihnen transparent und realistisch planen und Ihnen unliebsame Überraschungen ersparen. Unser All-Inclusive-Konzept beinhaltet deshalb alle relevanten Hausbau-Details und alle wichtigen Leistungen rund um Ihr neues White and Black Haus.
Mit diesem Konzept beraten wir Sie von Anfang an ehrlich und fair. Wir entwickeln mit Ihnen gemeinsam bedarfs- und budgetorientiert Ihr individuelles Traumhaus made by White and Black Haus.
Lage
Die Lage in unmittelbarer Nähe des Rheins und die üppigen Grünflächen bieten vielfältige Möglichkeiten für Aktivitäten im Freien zur Erholung.
Hier finden Sie eine Fülle von Einkaufsmöglichkeiten, Ärzten, Banken und allen Dingen des täglichen Bedarfs.
Die Nähe zu Supermärkten, Apotheken, Ärzten, Bankfilialen, Kindergärten und Schulen macht den Alltag äußerst bequem und praktisch.
Duisburg- Fahrn ist verkehrstechnisch gut angebunden. Über die A59 gelangen Sie schnell zu den Metropolstädten des Ruhrgebiets, darunter Oberhausen, Mülheim, Moers und Essen. Die Autobahnanbindung macht es einfach, die Region zu erkunden.
Sonstige Angaben
- Miet-Kauf möglich.
- Bonität vorausgesetzt.
- Ohne Einsatz von Eigenkapital möglich
- Altschulden, Verbindlichkeiten kein Hindernis.
Abbildungen können Extras beinhalten.
Ausgewiesener Preis exklusiv Erwerb und sonstigen Baunebenkosten
Bitte haben Sie Verständnis, das die Anfragen chronologisch bearbeitet werden und nur mit kompletten Kontaktdaten beantwortet werden Telefonnummer, Vor- und Zuname und E-Mail. Es handelt sich um ein reales Projekt.
Termine nur nach Vereinbarung in einem unserer regionalen Info-Center.
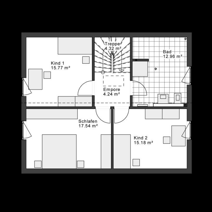
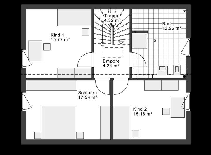
Grundriss
Grundriss EG
>
>
Grundriss OG
>
>
Adresse
47179 Duisburg
Interessante Orte
Preis- und Lageinformationen
Preistrend für Bestandsimmobilien in Fahrn