Diese große Doppelhaushälfte in Griesheim wurde 1995 erbaut und bietet auf ca. 146 m² Wohnfläche auf drei Etagen viel Platz für eine Familie . Im EG befindet sich eine Diele, Gäste-WC eine sep. Küche mit Einbauküche , sowie der Wohn-Essbereich mit direkten Zugang zur West-Terrasse und dem kleinen Vorgarten. Das Haus verfügt über 7 Zimmer davon sind drei Zimmer im 1.OG eins davon mit Westbalkon 3 Zimmer befinden sich im DG diese sind Durchgangszimmer und ein Tageslichtbad-WC 1.OG mit Badewanne . sowie ein Tageslichtduschbad-WC im DG. Das Haus ist unterkellert und bietet zusätzlichen Stauraum. 2 PKW-Stellplätze direkt vor dem Haus stehen zur Verfügung. Das Haus wird ab dem 01.Feb.2026 bezugsfrei sein.
Gr. Doppelhaushälfte mit Einbauküche, Terrasse, kl Garten, Westbalkon +2PKW-Stellplätze vor dem Haus
64347 Griesheim
Die vollständige Adresse der Immobilie erhalten Sie vom Anbieter.
Auf Karte anzeigen
Die vollständige Adresse der Immobilie erhalten Sie vom Anbieter.
Infos
| Haustyp | Doppelhaushaelfte |
|---|---|
| Etagenzahl | 2 |
| Wohnfläche ca. | 146 m2 |
| Grundstücksfläche | 250 m2 |
| Bezugsfrei ab | Absofort |
| Zimmer | 7 |
| Schlafzimmer | 5 |
| Badezimmer | 2 |
| Haustiere | Nein |
| Garage/Stellplatz | Außenstellplatz |
| Anzahl Garage/Stellplatz | 2 |
Kosten
| Kaltmiete |
1.930 € |
|---|---|
| Nebenkosten | + 90 € |
| Heizkosten | keine Angabe |
| Gesamtmiete | 2.070 € (zzgl. Heizkosten) |
| Miete für Garage/Stellplatz | 50 € |
| Kaution o. Genossenschaftsanteile | 3960 |
Weiter mieten oder doch kaufen?
Wer in Miete wohnt, überweist dem Vermieter im Laufe der Jahre hohe Summen, die sich
auch in die eigenen vier Wände investieren lassen könnten.
Bausubstanz & Energieausweis
| Baujahr | 1995 |
|---|---|
| Letzte Sanierung | 2018 |
| Objektzustand | Gepflegt |
| Qualität der Austattung | Normal |
| Heizungsart | Zentralheizung |
| Wesentliche Energieträger | Gas |
| Energieausweis | liegt vor |
| Energieausweistyp | Bedarfsausweis |
| Energieverbrauchskennwert | 181,7 kWh/(m²*a) |
| Energieeffizienzklasse | F |
181,7
kWh/(m²*a)
Energieeffizienzklasse F
- A+
- A
- B
- C
- D
- E
- F
- G
- H
- 0
- 25
- 50
- 75
- 100
- 125
- 150
- 175
- 200
- 225
- >250
Beschreibung des Objekts
Ausstattung
ZH-Gas wurde 2018 erneuert
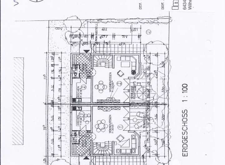
EG = Eingangsdiele , Gäste-WC , Küche Wohn-Essbereich mit Terrasse , kleinen Garten.
1.OG. 3 Zimmer ,eins davon mit Zugang zum Westbalkon, Tageslichtbad-WC mit Wanne und Flur.
DG 3 Durchgangszimmer, Tageslichtduschbad-WC , kl. Flur
Sowie 1 Heiz./Wasch .-u. Trockenraum
1 Kellerabstellraum
Lage
Griesheim ist eine Stadt im Landkreis Darmstadt-Dieburg in Hessen. Die Stadt bietet eine gute Infrastruktur mit Einkaufsmöglichkeiten, Ärzten und Schulen. Die Anbindung an den öffentlichen Nahverkehr ist gut ausgebaut, und die Autobahn A5 ist schnell erreichbar. Zahlreiche Grünflächen und Naherholungsgebiete in der Umgebung laden zu Freizeitaktivitäten ein.
Sonstige Angaben
Max. 5 Personen Gas, Strom ,Müll, Schornsteinfeger zahlt der Mieter direkt an den Versorger.
Die Vormieter waren 5 Personen
Abschlagszahlung im Monat 170,-Gas
130,-€ Strom
Der Müll kostet 1x pro Monat 11,80€ 50ltr. Tonne
im Jahr 141,60€ !
Grundriss
vm12720pl_EG
>
>
Adresse
64347 Griesheim
Interessante Orte
Preis- und Lageinformationen
Preistrend für Bestandsimmobilien in Griesheim