Das im Kalenderjahr 1992 in massiver Bauweise errichtete 6-Familienhaus befindet sich in einem reinen Wohngebiet und liegt nur wenige Gehminuten vom Innenstadtbereich entfernt. Von hier aus lassen sich alle Einkäufe und sonstige Angelegenheiten bequem regeln. Das Wohnhaus ist mit weissen Kunststofffenstern mit Isolierverglasung und Jalousien ausgestattet. Im Objekt sind Gasetagenheizungen vorhanden, welche 2024 erneuert wurden. Jeder Mieter schließt einen separaten Gaslieferungsvertrag mit einem Anbieter seiner Wahl ab. Die Kosten für die Anmietung von Wärmezählern, das Ablesen der Wärmezähler und die Erstellung von Heizkostenabrechnungen entfallen somit. Die Warmwasseraufbereitung erfolgt im Badezimmer über den vorhandenen Durchlauferhitzer. In der Küche ist seitens des Mieters ein Untertischgerät anzuschaffen. Für jede Wohnung sind separate Wasserzähler vorhanden, so dass der exakte Verbrauch ermittelt und abgerechnet werden kann. Gemeinschaftlich werden der vorhandene Wasch- und Trockenraum und der Fahrradabstellplatz genutzt. Jede Wohneinheit besitzt im Keller noch einen abschließbaren Abstellraum. Im Außenbereich ist seitens des Eigentümers ein Müllabstellplatz errichtet worden. Das Objekt ist mit einem Kabel-TV Anschluss ausgestattet. Die Anmeldung obliegt dem jeweiligen Mieter. Unmittelbar vor dem Objekt befindet sich für jede Wohneinheit ein PKW-Stellplatz, welcher mit mtl. EUR 30,00 separat zu vergüten ist. In den angegebenen Nebenkosten sind bereits die Kosten für die Hausreinigung enthalten.
Gepflegte 2-Zimmerwohnung mit Balkon in Zentrumsnähe
47623 Kevelaer
Die vollständige Adresse der Immobilie erhalten Sie vom Anbieter.
Auf Karte anzeigen
Die vollständige Adresse der Immobilie erhalten Sie vom Anbieter.
Infos
| Wohnungskategorie | Etagenwohnung |
|---|---|
| Etage | 2 von 3 |
| Wohnfläche ca. | 62 m2 |
| Bezugsfrei ab | 01.01.2026 |
| Zimmer | 2 |
| Schlafzimmer | 1 |
| Badezimmer | 1 |
| Haustiere | Nein |
| Garage/Stellplatz | Außenstellplatz |
| Anzahl Garage/Stellplatz | 1 |
Kosten
| Kaltmiete |
560 € |
|---|---|
| Nebenkosten | + 190 € |
| Heizkosten | keine Angabe |
| Gesamtmiete | 750 € |
| Miete für Garage/Stellplatz | 30 € |
| Kaution o. Genossenschaftsanteile | 1.120,00 EUR |
Weiter mieten oder doch kaufen?
Wer in Miete wohnt, überweist dem Vermieter im Laufe der Jahre hohe Summen, die sich
auch in die eigenen vier Wände investieren lassen könnten.
Bausubstanz & Energieausweis
| Baujahr | 1992 |
|---|---|
| Objektzustand | Gepflegt |
| Heizungsart | Etagenheizung |
| Wesentliche Energieträger | Gas |
| Energieausweis | liegt vor |
| Energieausweistyp | Verbrauchsausweis |
| Energieverbrauchskennwert | 156,9 kWh/(m²*a) |
| Energieeffizienzklasse | E |
156,9
kWh/(m²*a)
Energieeffizienzklasse E
- A+
- A
- B
- C
- D
- E
- F
- G
- H
- 0
- 25
- 50
- 75
- 100
- 125
- 150
- 175
- 200
- 225
- >250
Beschreibung des Objekts
Ausstattung
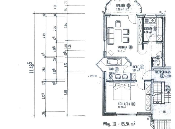
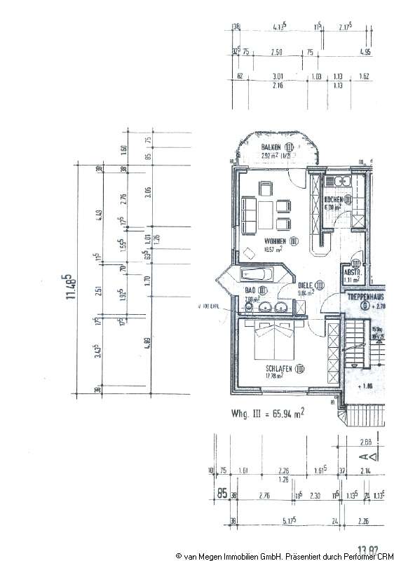
Die zu vermietende Einheit befindet sich im 1. Obergeschoss und besteht aus 2 Zimmern, Küche, Bad, Abstellraum und Balkon. Die komplette Wohnung, außer Bad sind seitens des Mieters mit einem Vinylboden ausgelegt. Der vorhandene Vinylboden kann bei Bedarf kostenlos übernommen werden. Der Eingangsbereich mit Wohnzimmer hat eine Größe von ca. 28,41 qm und ist der größte Raum der Wohnung. Zum Balkon hin ist ein dreiteiliges bodentiefes Fenster- / Türlement vorhanden. Durch die Vielzahl der Fenster gelangt viel Tageslicht ins Objektinnere. Vom Wohnbereich aus kann man den ca. 5,84 qm großen Balkon betreten. Hier kann man ab dem frühen Mittag bis in die Abendstunden die Sonne genießen. Der Balkon ist gefliest. Die Küche ist mit ca. 20 cm x 20 cm großen weißen Bodenfliesen ausgelegt. Es ist ein weißer Fliesenspiegel angebracht. Die vorhandene Einbauküche ist Eigentum des derzeitigen Mieters, kann aber gegen Kostenerstattung übernommen werden. Gegenüber der Küche befindet sich ein kleiner Abstellraum, in dem Staubsauger, Putzutensilien, etc. abgestellt werden können. Das Schlafzimmer hat eine Größe von ca. 17,78 qm und bietet viel Stellfläche für Schrankelemente. Das Schlafzimmer ist genauso wie das Wohnzimmer mit einem Kabel-TV Anschluss ausgestattet. Die weißen Wandfliesen im Badezimmer sind deckenhoch verlegt. Der Boden ist ebenfalls weiß gefliest. Das geräumige Bad ist mit einer Duschwanne nebst Glasduschwand ausgestattet. Die Einrichtungsgegenstände sind weiß. Zur ordnungsgemäßen Belüftung befinden sich im Bad 2 Fensterelemente. Selbstverständlich ist im Eingangsbereich eine Gegensprechanlage vorhanden.
Lage
Das gepflegte 6 - Familienhaus wurde in Zentrumsnähe der Pilgerstadt Kevelaer errichtet. Im Kalenderjahr 2019 hatte die Stadt am Niederrhein insgesamt 160.000 Übernachtungen. Kevelaer gilt am Niederrhein als eine der schönsten Städte. Die unmittelbare Nähe zur holländischen Grenze gibt Ihnen die Möglichkeit einige Einkaufsmöglichkeiten zu nutzen und bietet Ihnen diverse Ausflugsziele.
Die Kleinstadt hat insgesamt ca. 28.000 Einwohner. In Kevelaer sind Kindergärten, Grund-, Haupt-, Real- und Sonderschulen vorhanden. Ein Gymnasium ist ebenfalls vorhanden. Sportmöglichkeiten sind in unbegrenzter Zahl vorhanden.
Kevelaer bietet Ihnen sämtliche Einkaufsmöglichkeiten und lädt mit seinen Gaststätten und Kneipen zum gemütlichen Beisammensein ein.
Sonstige Angaben
Die Wohnung wird ohne Bodenbeläge, unrenoviert und besenrein an den Mieter übergeben. Die Wohnung ist derzeit noch vermietet, kann aber nach vorheriger Terminabsprache mit uns kurzfristig besichtigt werden. Lassen Sie sich von der gepflegten Wohnung überraschen und vereinbaren noch heute einen Besichtigungstermin mit uns.
Grundriss
Grundriss WE 3
>
>
Adresse
47623 Kevelaer
Interessante Orte
Preis- und Lageinformationen
Preistrend für Bestandsimmobilien in Kevelaer