Diese 2,5-Zimmer-Wohnung befindet sich im Dachgeschoss eines gepflegten, 3 Wohneinheiten umfassenden Hauses in Dreieich - Sprendlingen. Mit einer Wohnfläche von ca. 75 m² bietet die Wohnung freundliches Wohnambiente. Die Schrägen im Dachgeschoss vermitteln ein Gefühl der Geborgenheit.
Das Gebäudes wurde 1965 errichtet. Das Haus wurde zuletzt im Jahr 2022 modernisiert und energetisch saniert. Es präsentiert sich in einem guten Zustand mit normaler Ausstattungsqualität. Die Wohnung verfügt über Wohnzimmer, Schlafzimmer, kleines Arbeitszimmer, Küchenraum mit Einbauküche und Platz für einen Esstisch, sowie in Duschbad. Ferner ist ein begehbarer Einbauschrank vorhanden. Waschmaschine und Wäschetrockner finden Platz in der Waschküche im Keller. Dort gibt es auch einen kleinen der Wohnung zugeordneten Verschlag.
Die Wohnung ist ideal für Singles oder Paare, die eine ruhige und dennoch gut angebundene Wohnlage suchen.
Energetisch sanierte 2,5-Zimmer Dachgeschosswohnung in Dreieich - Sprendlingen
63303 Dreieich
Die vollständige Adresse der Immobilie erhalten Sie vom Anbieter.
Auf Karte anzeigen
Die vollständige Adresse der Immobilie erhalten Sie vom Anbieter.
Infos
| Wohnungskategorie | Dachgeschoss |
|---|---|
| Etage | 3 von 3 |
| Wohnfläche ca. | 75 m2 |
| Nutzfläche | 75 m2 |
| Bezugsfrei ab | 1.12.2025 |
| Zimmer | 2,5 |
| Schlafzimmer | 1 |
| Badezimmer | 1 |
| Haustiere | Nein |
Kosten
| Kaltmiete |
1.035 € |
|---|---|
| Nebenkosten | + 245 € |
| Heizkosten | in Nebenkosten enthalten |
| Gesamtmiete | 1.280 € |
| Kaution o. Genossenschaftsanteile | 3.105,00 |
Weiter mieten oder doch kaufen?
Wer in Miete wohnt, überweist dem Vermieter im Laufe der Jahre hohe Summen, die sich
auch in die eigenen vier Wände investieren lassen könnten.
Bausubstanz & Energieausweis
| Baujahr | 1965 |
|---|---|
| Letzte Sanierung | 2022 |
| Objektzustand | Saniert |
| Qualität der Austattung | Normal |
| Energieausweis | liegt vor |
| Energieausweistyp | Bedarfsausweis |
| Energieverbrauchskennwert | 123,0 kWh/(m²*a) |
| Energieeffizienzklasse | D |
123,0
kWh/(m²*a)
Energieeffizienzklasse D
- A+
- A
- B
- C
- D
- E
- F
- G
- H
- 0
- 25
- 50
- 75
- 100
- 125
- 150
- 175
- 200
- 225
- >250
Beschreibung des Objekts
Lage
Dreieich - Sprendlingen, gelegen im Kreis Offenbach, bietet eine gute Infrastruktur mit zahlreichen Einkaufsmöglichkeiten für den täglichen Bedarf. Ärzten aller Fachrichtungen und Apotheken sind vorhanden.
Die Anbindung an den öffentlichen Nahverkehr durch S-Bahn- und Buslinien gewährleisten, eine schnelle Erreichbarkeit der umliegenden Städte insbesondere von Frankfurt, Darmstadt sowie des Flughafens. Die Autobahnen A 5 und A661 sind ebenfalls schnell erreichbar.
Diverse Freizeitmöglichkeiten wie Parks und Sportvereine, Frei- und Hallenbad runden das Angebot der Gemeinde ab.
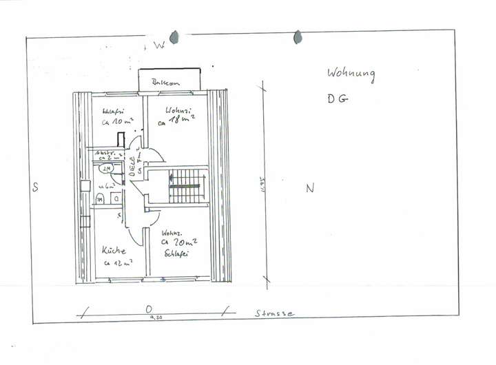
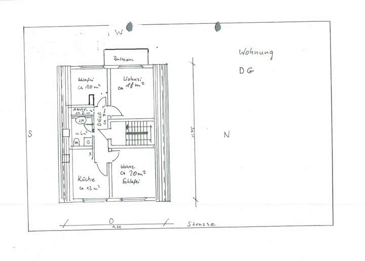
Grundriss
DG Wohnung Grundriss
>
>
Adresse
63303 Dreieich
Interessante Orte
Preis- und Lageinformationen
Preistrend für Bestandsimmobilien in Dreieich