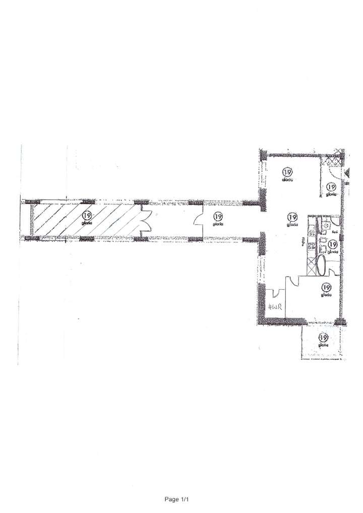
Über den Eingangsbereich gelangt man in den großen Wohnbereich mit integrierter Einbauküche. Das Schlafzimmer mit Balkon schließt sich an den Wohnbereich an. Der Hauswirtschaftsraum ist ebenfalls vom Wohnbereich zugänglich.
Das moderne Badezimmer hat zwei Zugänge und ist sowohl vom Wohnbereich und auch direkt vom Schlafzimmer aus zugänglich.
An den Wohnbereich schließt sich ein offener Raum an, über den man ein
weiteres Zimmer (Durchgangszimmer) erreicht.
Die große Loggia ist über diese vorgelagerten Räume zu erreichen.
Aufteilung der Räume:
- großzügiger Wohnbereich mit integrierter Einbauküche
- innenliegendes Badezimmer mit Wanne und Dusche
- Schlafzimmer mit Balkon
- Hauswirtschaftsraum mit Anschluss für Waschmaschine
- Loggia
Zur Wohnung gehört ein Kellerabteil.
Die Wohnung ist derzeit noch bewohnt;
Bilder von den Wohnbereichen stehen
zum Schutz der Privatsphäre nicht zur Verfügung.
**Bezugsfrei** Moderne Wohnung mit interessantem Grundriss
Billy-Wilder-Promenade 43,
14167 Berlin
Auf Karte anzeigen
Infos
| Wohnungskategorie | Etagenwohnung |
|---|---|
| Etage | 2 von |
| Wohnfläche ca. | 118 m2 |
| Bezugsfrei ab | 01.12.2025 |
| Zimmer | 3 |
| Haustiere | Nein |
Kosten
| Kaltmiete |
1.973 € |
|---|---|
| Nebenkosten | + 475 € |
| Heizkosten | in Nebenkosten enthalten |
| Gesamtmiete | 2.448 € |
| Kaution o. Genossenschaftsanteile | 5.917,50 € |
Weiter mieten oder doch kaufen?
Wer in Miete wohnt, überweist dem Vermieter im Laufe der Jahre hohe Summen, die sich
auch in die eigenen vier Wände investieren lassen könnten.
Bausubstanz & Energieausweis
| Objektzustand | Gepflegt |
|---|---|
| Qualität der Austattung | Normal |
| Heizungsart | Zentralheizung |
| Wesentliche Energieträger | Fernwärme |
| Energieausweis | laut Gesetz nicht erforderlich |
Beschreibung des Objekts
Ausstattung
Wohn-/Essbereich: Parkett
Bad/WC: Fliesen
- isolierverglaste Holzfenster
- Einbauküche
Lage
Lichterfelde, am südlichen Stadtrand gelegen, gehört zum Bezirk Steglitz. Auf dem Gelände der früheren McNair Barracks befinden sich die denkmalgeschützten Häuser der ehemaligen Telefunken-Fabrik. Diese wurden aufwendig saniert und umfunktioniert. Es sind hier exklusive Wohnungen, Lofts und Penthäuser entstanden.
Die Freiflächen zwischen den einzelnen Gebäuden sind parkähnlich angelegt und laden zum erholsamen Verweilen ein.
Einkaufsmöglichkeiten für die Dinge des täglichen Lebens befinden sich in der nahen Umgebung.
Öffentliche Verkehrsmittel zum S/U-Bahnhof Rathaus Steglitz (Buslinien) sind fußläufig in wenigen Minuten zu erreichen. Mit dem Auto erreichen Sie in rd. 7 Minuten das Zentrum Lichterfelde-West und ca. 15-25 Minuten benötigen Sie zu den Fernbahnhöfen Südkreuz und Hauptbahnhof.
Sonstige Angaben
Hausmeister vor Ort
Grundriss
Grundriss
>
>
Adresse
Billy-Wilder-Promenade 43, 14167 Berlin
Interessante Orte
Preis- und Lageinformationen
Preistrend für Bestandsimmobilien in Lichterfelde (Steglitz)