Dieses 1979 erbaute Einfamilienhaus präsentiert sich Ihnen in einem erstklassigen Zustand mit einer gepflegten und zeitgemäßen Ausstattung. Der in Split-Level-Bauweise gestaltete Innenbereich zeichnet sich dabei durch seine großzügige und offene Aufteilung aus. Ob als Generationenhaus oder einfach zum Wohnen und Arbeiten, durch die Einliegerwohnung finden Sie vielseitige Nutzungsmöglichkeiten. Die Einliegerwohnung verfügt über einen separaten/eigenen Zugang, kann aber auch direkt mit dem Wohnhaus verbunden werden.
Die Wohnfläche beträgt ca. 190 m². Die Grundstücksgröße beträgt ca. 659 m².
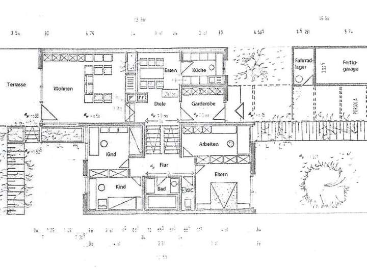
Die Hauptwohnung erstreckt sich mit 4 Zimmern, Küche, Wohndiele, 2 Bädern und Gäste-WC über das Erd-, Ober- und ebenerdige Gartengeschoss. Die Einliegerwohnung verfügt über 1 Zimmer, Küche, Bad. Im Außenbereich lädt die große Terrasse mit den zwei Ebenen zum Wohlfühlen ein und der schöne Garten ist eine Oase zur Erholung und Entspannung.
Die Energieversorgung erfolgt über eine Gaszentralheizung von 2010, welche als Fußbodenheizung verlegt ist. Ein Gaskamin befindet sich ebenfalls im Wohnzimmer. Die Kunststoff-Fenster sind mit Isolierverglasung ausgestattet. Neben diversen und sehr praktischen Einbauschränken ist in der Einliegerwohnung noch eine Einbauküche vorhanden.
Nutzfläche steht Ihnen im Keller- und Heizungsraum, sowie einem praktischen Gartenhäuschen zu Verfügung. Für Ihre Fahrzeuge finden Sie in der großen Garage und dem davorliegenden PKW-Stellplatz ausreichend Parkmöglichkeiten.
1-A Lage... 1-A Ausstattung... 1-A Zustand... lichtdurchflutetes Architektenhaus mit Einliegerwhg.
67663 Kaiserslautern
Die vollständige Adresse der Immobilie erhalten Sie vom Anbieter.
Auf Karte anzeigen
Die vollständige Adresse der Immobilie erhalten Sie vom Anbieter.
Infos
| Haustyp | Einfamilienhaus |
|---|---|
| Wohnfläche ca. | 190 m2 |
| Grundstücksfläche | 659 m2 |
| Bezugsfrei ab | ab sofort bezugsfrei |
| Zimmer | 5 |
| Badezimmer | 3 |
| Haustiere | Nein |
| Garage/Stellplatz | Garage |
| Anzahl Garage/Stellplatz | 2 |
Kosten
| Kaltmiete |
2.040 € |
|---|---|
| Nebenkosten | + 190 € |
| Heizkosten | keine Angabe |
| Gesamtmiete | 2.230 € |
| Miete für Garage/Stellplatz | 60 € |
| Kaution o. Genossenschaftsanteile | 2 Monatsmieten |
Weiter mieten oder doch kaufen?
Wer in Miete wohnt, überweist dem Vermieter im Laufe der Jahre hohe Summen, die sich
auch in die eigenen vier Wände investieren lassen könnten.
Bausubstanz & Energieausweis
| Objektzustand | Gepflegt |
|---|---|
| Qualität der Austattung | Normal |
| Heizungsart | Zentralheizung |
| Wesentliche Energieträger | Gas |
| Energieausweis | liegt vor |
| Energieausweistyp | Bedarfsausweis |
| Energieverbrauchskennwert | 97,2 kWh/(m²*a) |
| Energieeffizienzklasse | D |
97,2
kWh/(m²*a)
Energieeffizienzklasse D
- A+
- A
- B
- C
- D
- E
- F
- G
- H
- 0
- 25
- 50
- 75
- 100
- 125
- 150
- 175
- 200
- 225
- >250
Beschreibung des Objekts
Lage
Genießen Sie die privilegierte Lage dieses Wohnhauses in einem sehr ruhigen, familienfreundlichen Umfeld von Kaiserslautern. Universität, Forschungseinrichtungen und der erholsame Pfälzer Wald sind in unmittelbarer Nähe. Die Grundversorgung ist exzellent (Kindergärten, Schulen, Ärzte, Einkaufsmöglichkeiten), ergänzt durch ein vielfältiges Freizeitangebot. Durch die optimale Anbindung erreichen Sie das Stadtzentrum und den Hauptbahnhof Kaiserslautern schnell und unkompliziert.
Sonstige Angaben
Die Angaben zum Objekt wurden vom Vermieter bekannt gegeben. Trotz aller Sorgfältigkeit können wir für die Richtigkeit und Vollständigkeit dieser Angaben keine Haftung übernehmen. Durch die gesetzlich vorgeschriebene schriftliche Belehrungs- und Nachweispflicht zum Widerruf können wir leider nur noch E-Mail Anfragen bearbeiten.
Der monatliche Mietpreis beträgt Euro 2.100,-- zzgl. Nebenkosten, dieser setzt sich aus Euro 2.040,-- + Euro 60,-- für die Garage und den PKW-Stellplatz zusammen.
Wir freuen uns auf Ihre Anfrage und vereinbaren gerne Ihren persönlichen Besichtigungstermin.
Weitere Interessante Objekte finden Sie auf
www.Stadelmeyer.info
Grundriss
Grundriss
>
>
Grundriss
>
>
Adresse
67663 Kaiserslautern
Interessante Orte
Preis- und Lageinformationen
Preistrend für Bestandsimmobilien in Innenstadt