Das im Jahr 2014 errichtete, barrierefrei zugängliche KfW-Effizienzhaus 70 präsentiert sich als modernes und hochwertig ausgestattetes Einfamilienhaus mit einer Wohnfläche von ca. 131 m². In bester Wohnlage von Rastede gelegen, überzeugt die Immobilie durch ihre attraktive Umgebung, die ruhiges Wohnen mit guter Infrastruktur verbindet.
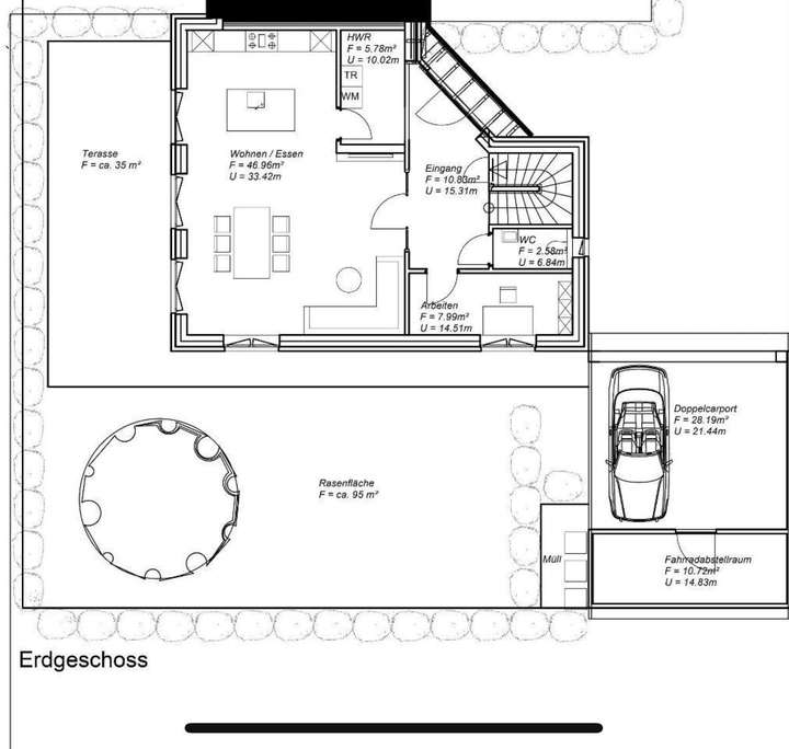
Das Haus umfasst drei großzügig geschnittene Zimmer und bietet dank der gehobenen Innenausstattung ein komfortables Wohnambiente. Der offen gestaltete Wohnbereich im Erdgeschoss ist mit edlem Echtholzparkett versehen und bildet das Herzstück des Hauses. Die moderne, hochwertige Einbauküche integriert sich harmonisch in den Wohnraum und erfüllt höchste Ansprüche. Ein separates Gäste-WC steht zusätzlich im Erdgeschoss zur Verfügung.
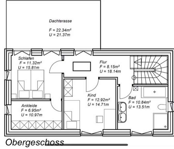
Im Obergeschoss befindet sich ein voll ausgestattetes Hauptbad mit Dusche und Badewanne sowie ein weiteres WC im Badbereich. Neben einer Terrasse im Erdgeschoss bietet die Immobilie eine große Dachterrasse im Obergeschoss, die zusätzlichen Freiraum zur Erholung schafft.
Für Fahrzeuge steht ein großzügiger Doppelcarport bereit. Eine installierte Wallbox ermöglicht das komfortable Laden eines Elektrofahrzeugs und unterstreicht den zeitgemäßen Standard des Hauses.
Die energieeffiziente Bauweise gemäß KfW-70-Standard gewährleistet niedrige Betriebskosten sowie nachhaltiges Wohnen. Haustiere sind im Objekt nicht gestattet. Die Verfügbarkeit ist ab dem 15.01.2026 gegeben.
Insgesamt bietet die Immobilie ein hervorragendes Gesamtpaket aus Lage, Ausstattung und energetischer Qualität – ideal für anspruchsvolle Interessenten, die modernen Wohnkomfort in begehrter Umgebung suchen.
Elegantes Einfamilienhaus (3 Zi.) in Rastede mit Doppelcarport
Hebbelstraße 10B,
26180 Rastede
Auf Karte anzeigen
Infos
| Haustyp | Einfamilienhaus |
|---|---|
| Etagenzahl | 2 |
| Wohnfläche ca. | 131 m2 |
| Nutzfläche | 38 m2 |
| Grundstücksfläche | 433 m2 |
| Bezugsfrei ab | 15.1.2026 |
| Zimmer | 3 |
| Schlafzimmer | 3 |
| Badezimmer | 1 |
| Haustiere | Nein |
| Garage/Stellplatz | Carport |
| Anzahl Garage/Stellplatz | 2 |
Kosten
| Kaltmiete |
1.500 € |
|---|---|
| Nebenkosten | + 150 € |
| Heizkosten | + 100 € |
| Gesamtmiete | 1.750 € (zzgl. Heizkosten) |
| Kaution o. Genossenschaftsanteile | 4500.0 |
Weiter mieten oder doch kaufen?
Wer in Miete wohnt, überweist dem Vermieter im Laufe der Jahre hohe Summen, die sich
auch in die eigenen vier Wände investieren lassen könnten.
Bausubstanz & Energieausweis
| Baujahr | 2014 |
|---|---|
| Objektzustand | Neuwertig |
| Qualität der Austattung | Gehoben |
| Heizungsart | Zentralheizung |
| Wesentliche Energieträger | Gas |
| Energieausweis | liegt zur Besichtigung vor |
Beschreibung des Objekts
Lage
Rastede, ein charmanter Ortsteil von Ammerland, besticht durch seine ruhige und dennoch gut angebundene Lage. Die Umgebung bietet eine hohe Lebensqualität mit vielfältigen Einkaufsmöglichkeiten für den täglichen Bedarf sowie Ärzte und Apotheken. Zahlreiche Grünflächen und Parks laden zu Erholung und Freizeitaktivitäten ein. Die gute Infrastruktur mit Anbindung an öffentliche Verkehrsmittel erleichtert die Mobilität.
Grundriss
Lageplan
>
>
Obergeschoss
>
>
Erdgeschoss
>
>
Adresse
Hebbelstraße 10B, 26180 Rastede
Interessante Orte
Preis- und Lageinformationen
Preistrend für Bestandsimmobilien in Rastede