Dieses moderne Einfamilienhaus mit ca. 150 m² Wohnfläche und 6 Zimmern steht ab dem 01.02.2026 zur Vermietung. Das Haus bietet auf zwei Etagen großzügigen Wohnraum und ist mit einer hochwertigen Innenausstattung versehen. Der Doppel-Carport bietet Platz für Ihre Fahrzeuge. Das Grundstück umfasst ca. 760 m² und bietet Potenzial für Gartengestaltung. Haustiere sind in diesem Objekt leider nicht gestattet.
Neueres freistehendes Einfamilienhaus mit Garten und großer überdachter Terrasse
84160 Frontenhausen
Die vollständige Adresse der Immobilie erhalten Sie vom Anbieter.
Auf Karte anzeigen
Die vollständige Adresse der Immobilie erhalten Sie vom Anbieter.
Infos
| Haustyp | Einfamilienhaus |
|---|---|
| Etagenzahl | 2 |
| Wohnfläche ca. | 150 m2 |
| Nutzfläche | 20 m2 |
| Grundstücksfläche | 760 m2 |
| Bezugsfrei ab | 1.2.2026 |
| Zimmer | 6 |
| Schlafzimmer | 5 |
| Badezimmer | 1 |
| Haustiere | Nein |
| Garage/Stellplatz | Carport |
| Anzahl Garage/Stellplatz | 2 |
Kosten
| Kaltmiete |
1.450 € |
|---|---|
| Nebenkosten | + 120 € |
| Heizkosten | keine Angabe |
| Gesamtmiete | 1.570 € (zzgl. Heizkosten) |
| Miete für Garage/Stellplatz | 60 € |
| Kaution o. Genossenschaftsanteile | 4.000,00 |
Weiter mieten oder doch kaufen?
Wer in Miete wohnt, überweist dem Vermieter im Laufe der Jahre hohe Summen, die sich
auch in die eigenen vier Wände investieren lassen könnten.
Bausubstanz & Energieausweis
| Baujahr | 2007 |
|---|---|
| Letzte Sanierung | 2022 |
| Objektzustand | Vollständig Renoviert |
| Qualität der Austattung | Gehoben |
| Heizungsart | Gas-Heizung |
| Wesentliche Energieträger | Gas |
| Energieausweis | liegt vor |
| Energieausweistyp | Verbrauchsausweis |
| Energieverbrauchskennwert | 68,0 kWh/(m²*a) |
| Energieeffizienzklasse | B |
68,0
kWh/(m²*a)
Energieeffizienzklasse B
- A+
- A
- B
- C
- D
- E
- F
- G
- H
- 0
- 25
- 50
- 75
- 100
- 125
- 150
- 175
- 200
- 225
- >250
Beschreibung des Objekts
Ausstattung
Die Gasheizung wurde 2024 erneuert. Der künftige Mieter muss einen Gasliefervertrag auf seinen Namen abschließen, die Heizkosten sind nicht in den Nebenkosten enthalten.
Ein zusätzlicher Schwedenofen befindet sich im Ess-/Wohnzimmer.
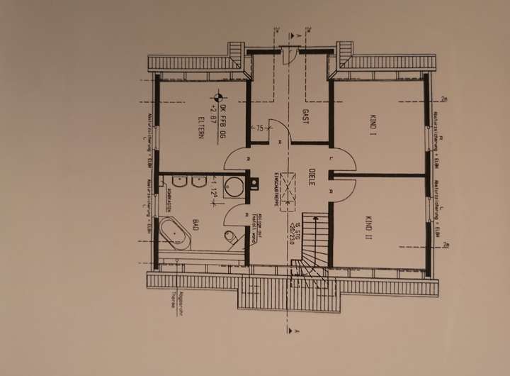
Im Erdgeschoß befindet sich eine große Küche, ein Ess- Wohnzimmer, ein weiteres Zimmer das als Büro oder Schlafzimmer genutzt werden kann, ein Gäste-WC und ein Hauswirtschaftsraum.
Im Obergeschoß befindet sich das große Badezimmer und 4 weitere Schlafräume. Im Spitzboden können Sachen eingelagert werden.
Die große teilweise überdachte Terrasse lädt zum verweilen ein.
Hinter dem Doppelcarport befindet sich ein weiterer Lagerraum.
Lage
Frontenhausen ist eine Marktgemeinde im niederbayerischen Landkreis Dingolfing-Landau. Die Lage bietet eine gute Infrastruktur mit Einkaufsmöglichkeiten, Ärzten und Schulen. Die Anbindung an das überregionale Straßennetz ist gut, was schnelle Erreichbarkeit von umliegenden Städten ermöglicht. Die Umgebung lädt zu Freizeitaktivitäten im Grünen ein.
Von wirtschaftlicher Bedeutung ist das BMW-Werk Dingolfing mit ca. 20 000 Arbeitnehmer. Haus liegt sehr ruhig in einer Wohnsiedlung ca. 800 m südwestlich des Ortszentrum zwischen freistehenden ein- und zweigeschoßigen Gebäuden.
Sonstige Angaben
Ohne Makler, ohne Provision
Das Haus ist frei ab 01.02.2026.
Der Gesamtmietpreis Kaltmiete incl der beiden Carports beträgt 1450 €.
Grundriss
IMG_20251109_203323
>
>
IMG_20251109_203335
>
>
Adresse
84160 Frontenhausen
Interessante Orte
Preis- und Lageinformationen
Preistrend für Bestandsimmobilien in Frontenhausen