Diese moderne Doppelhaushälfte besticht durch eine durchdachte Architektur, hochwertige Ausstattung und ein großzügiges Raumkonzept. Mit einer Wohnfläche von ca. 122,23 m² und einem großen Grundstück bietet das Haus viel Platz für individuelle Wohnwünsche.
Ausstattung & Highlights:
Wohnfläche: ca. 122,23 m²
Grundstück: großzügige Parzelle mit viel Grünfläche auf 716 m²
Zimmer: 3 großzügige Zimmer mit optimaler Raumaufteilung
Energieeffiziente Bauweise für niedrige Energiekosten
Moderne Fenster mit elektrischen Rollläden für erhöhten Komfort im Obergeschoß
Carport: Sicherer Stellplatz für Ihr Fahrzeug mit Ladestation für Elektroautos
Terrasse: Großzügiger Außenbereich für entspannte Stunden im Freien
Hochwertige Materialien & moderne Technik
Großzügiger Eingangsbereich mit Garderobenmöglichkeit
Offener Wohn-/Essbereich mit bodentiefen Fenstern für viel Tageslicht
Direkter Zugang zur sonnigen Terrasse und dem großen Garten
Gäste-WC mit stilvollen Sanitärelementen
Hauswirtschaftsraum mit Anschluss für Waschmaschine/Trockner
Obergeschoss:
3 Große Schlafzimmer mit Blick ins Grüne
2 Hochwertige Badezimmer mit Dusche, Badewanne und modernen Fliesen
Die Immobilie wird nach aktuellen Bau- und Energiestandards errichtet und bietet Ihnen ein nachhaltiges, komfortables Wohnkonzept.
Verfügbarkeit: ab März 2026
Infos
| Haustyp | Doppelhaushaelfte |
|---|---|
| Etagenzahl | 2 |
| Wohnfläche ca. | 122 m2 |
| Nutzfläche | 129,7 m2 |
| Grundstücksfläche | 716 m2 |
| Bezugsfrei ab | 01.03.2026 |
| Zimmer | 3 |
| Schlafzimmer | 3 |
| Badezimmer | 2 |
| Garage/Stellplatz | Carport |
| Anzahl Garage/Stellplatz | 4 |
Kosten
| Kaltmiete |
1.875 € |
|---|---|
| Nebenkosten | keine Angabe |
| Heizkosten | keine Angabe |
| Gesamtmiete | 2.225 € (zzgl. Nebenkosten) |
| Kaution o. Genossenschaftsanteile | 5625 € |
Weiter mieten oder doch kaufen?
Wer in Miete wohnt, überweist dem Vermieter im Laufe der Jahre hohe Summen, die sich
auch in die eigenen vier Wände investieren lassen könnten.
Bausubstanz & Energieausweis
| Baujahr | 2025 |
|---|---|
| Objektzustand | Erstbezug |
| Qualität der Austattung | Gehoben |
| Heizungsart | Wärmepumpe |
| Wesentliche Energieträger | Umweltwärme |
| Energieausweis | liegt vor |
| Energieausweistyp | Bedarfsausweis |
| Energieverbrauchskennwert | 32,7 kWh/(m²*a) |
| Energieeffizienzklasse | A |
32,7
kWh/(m²*a)
Energieeffizienzklasse A
- A+
- A
- B
- C
- D
- E
- F
- G
- H
- 0
- 25
- 50
- 75
- 100
- 125
- 150
- 175
- 200
- 225
- >250
Beschreibung des Objekts
Lage
Leben im Grünen mit optimaler Anbindung an Rostock
Clausdorf gehört zur Gemeinde Satow im Landkreis Rostock und besticht durch seine ruhige, naturnahe Umgebung sowie die unmittelbare Nähe zur Hansestadt Rostock. Die Region zeichnet sich durch eine hohe Lebensqualität aus – hier verbinden sich ländliche Idylle und moderne Infrastruktur auf ideale Weise.
Die Hansestadt Rostock ist in nur ca. 10–15 Minuten mit dem Auto erreichbar und bietet eine Vielzahl an Einkaufsmöglichkeiten, kulturellen Einrichtungen, medizinischer Versorgung und Gastronomie. Zudem verfügt Rostock über ein breites Bildungsangebot von Grundschulen bis hin zur Universität.
Kritzmow, das etwa 3 Kilometer entfernt liegt, bietet bereits eine gute Infrastruktur mit Supermärkten (Edeka, Netto), Apotheken, Ärzten und Banken sowie einem Kindergarten und einer Grundschule.
Für Pendler bietet die Autobahn A20 eine schnelle Anbindung an weitere Städte und Regionen Mecklenburg-Vorpommerns.
Die Nähe zur Ostsee macht diesen Standort besonders attraktiv: Warnemünde und der Ostseestrand sind in etwa 20 Minuten erreichbar, sodass ausgedehnte Strandspaziergänge, Wassersport oder entspannte Tage am Meer jederzeit möglich sind.
Wohnen im Postweg 8 – Ruhe und Natur vor den Toren Rostocks
Das Objekt befindet sich in einer begehrten Wohnlage in Clausdorf, einer kleinen, gewachsenen Ortschaft mit einer Mischung aus Neubauten und Bestandsimmobilien.
Ruhige Wohnlage: Der Postweg ist eine wenig befahrene Straße mit gepflegtem Umfeld und familiärer Nachbarschaft.
Naturverbundenes Wohnen: Direkt angrenzende Felder, Wiesen und Wälder laden zu ausgedehnten Spaziergängen, Fahrradtouren oder Outdoor-Aktivitäten ein.
Schnelle Anbindung: Trotz der ruhigen Lage sind sowohl Kritzmow als auch Rostock schnell erreichbar – sei es mit dem Auto oder dem gut ausgebauten öffentlichen Nahverkehr.
Freizeitmöglichkeiten: Neben der Nähe zur Ostsee gibt es in der Umgebung zahlreiche Freizeitangebote wie Sportvereine, Reitmöglichkeiten, Golfplätze und Wanderwege.
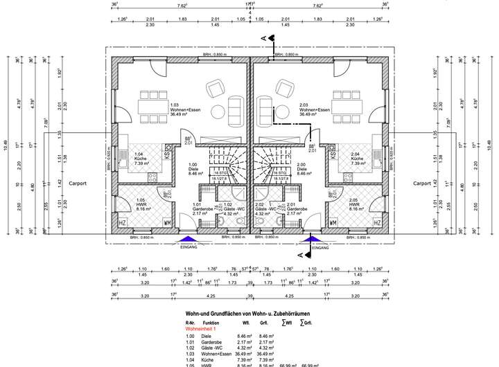
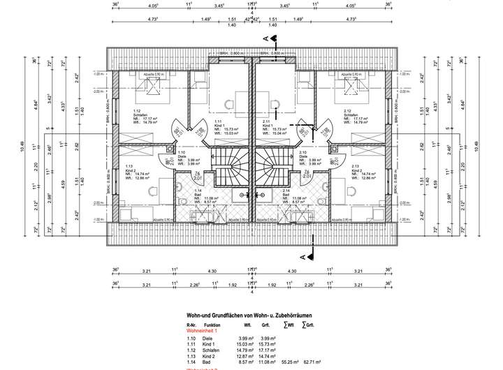
Grundriss
Grundriss EG
>
>
Grundriss OG
>
>
Grundriss EG
>
>
Grundriss OG
>
>
Adresse
Postweg 8, 18239 Satow
Interessante Orte
Preis- und Lageinformationen
Preistrend für Bestandsimmobilien in Satow