Dieses exklusive, neu erbaute Endreihenhaus mit ca. 141 m² Wohnfläche und ca. 241 m² Grundstücksfläche befindet sich in Einhausen. Das Haus ist ca. ab Januar / Februar 2026 bezugsfrei und bietet eine gehobene Innenausstattung, die keine Wünsche offenlässt.
Das Haus und der Garten befindet sich in den letzten Zügen der Fertigstellung - diese soll bis Januar 2026 weitestgehend abgeschlossen sein. Die Fotos zeigen den aktuellen Stand im Dezember 2025. In Kürze wird überall im Außenbereich noch Rollrasen verlegt. Optional werden die Grundstücke eingezäunt und es wird nach Absprache ggf. eine Gartenhütte errichtet.
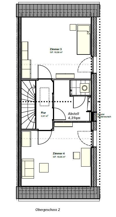
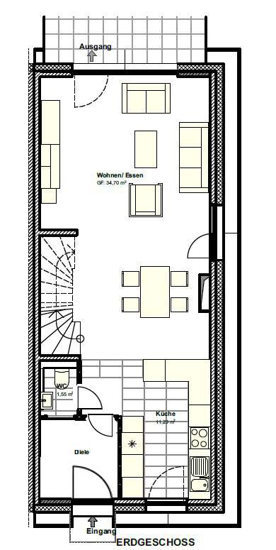
Ein sehr helles und offenes Haus auf 3 Etagen mit großer offener Küche und angrenzendem Ess- und Wohnbereich. Blick auf die offene Terrasse un den Garten. Im 1. und 2. OG jeweils 2 weitere Zimmer als Schlafzimmer / Kinderzimmer / Gästezimmer oder Büro.
Im 1. OG ein geräumiges Badezimmer mit Wanne und offener Dusche sowie Doppel-Waschtisch und angrenzendem HWR für Trockner und Waschmaschine. Im 2. OG noch ein Lagerraum / Abstellraum sowie einem Technikraum mit WWP.
Im EG sind hochwertige Fliesen verlegt - in den oberen Stockwerken befindet sich hochwertiger Laminat-Boden.
Mit 5,5 Zimmern und einem Gäste-WC ist ausreichend Platz für die ganze Familie vorhanden. Geplant für Paare mit viel Raum-Bedarf oder Familien mit 1-2 Kindern. Dieses Haus ist ideal für anspruchsvolle Mieter, die Wert auf Qualität und ein neues Zuhause legen. Haustiere sind nicht gestattet. Nichtraucher erwünscht.
Das Haus ist mit einer eigenen PV-Anlage / Photovoltaik-Anlage ausgestattet. Außerdem wurde das Haus nach den neuesten Niedrigenergie-Standards gebaut als KFW-40 Haus.
Zum Haus gehören 2 Parkplätze direkt am Grundstück. Die Parkplätze sind mit Netzwerk und Strom vorbereitet, sodaß die Installation einer Wallbox / E-Ladestation möglich ist.
Zur Lagerung besitzt das Haus außerdem einen Spitzboden / Dachboden von ca. 21 qm zusätzlich zur angegebenen Wohnfläche.
Neues Endreihenhaus mit 5,5 Zimmern in Einhausen - Erstbezug
Die alte Heckenteilung 26a,
64683 Einhausen
Auf Karte anzeigen
Infos
| Haustyp | Reiheneckhaus |
|---|---|
| Etagenzahl | 3 |
| Wohnfläche ca. | 141 m2 |
| Grundstücksfläche | 241 m2 |
| Zimmer | 5,5 |
| Schlafzimmer | 1 |
| Badezimmer | 1 |
| Haustiere | Nein |
| Garage/Stellplatz | Außenstellplatz |
| Anzahl Garage/Stellplatz | 2 |
Kosten
| Kaltmiete |
2.125 € |
|---|---|
| Nebenkosten | + 300 € |
| Heizkosten | keine Angabe |
| Gesamtmiete | 2.425 € (zzgl. Heizkosten) |
| Miete für Garage/Stellplatz | 100 € |
| Kaution o. Genossenschaftsanteile | 6.375,00 |
Weiter mieten oder doch kaufen?
Wer in Miete wohnt, überweist dem Vermieter im Laufe der Jahre hohe Summen, die sich
auch in die eigenen vier Wände investieren lassen könnten.
Bausubstanz & Energieausweis
| Baujahr | 2025 |
|---|---|
| Objektzustand | Erstbezug |
| Qualität der Austattung | Gehoben |
| Heizungsart | Elektro-Heizung |
| Wesentliche Energieträger | Strom |
| Energieausweis | liegt zur Besichtigung vor |
Beschreibung des Objekts
Ausstattung
Bodentiefe Fenster
Fliesen im EG und den Bädern
Laminat in den Räumen der oberen Stockwerke und Flure
Holztreppe
Glasfaseranschluss
Netzwerk / Netzwerkdosen in allen Wohnräumen
PV-Anlage
Lage
Einhausen ist ein charmanter Ort mit guter Infrastruktur - gelegen zwischen Mannheim / Heidelberg und Darmstadt - nur wenige Kilometer entfernt von Bensheim oder Heppenheim an der Bergstraße und im Einzugsgebiet von Frankfurt.
Das Haus liegt in einem ruhigen Neubaugebiet am Stadtrand - ein Einkaufsmarkt befindet sich in nur ca. 500 Metern Entfernung.
Die Lage bietet eine gute Anbindung an umliegende Städte und eine angenehme Wohnatmosphäre.
Es gibt einen Autobahnanschluss in wenigen km Entfernung an die A5 und A67
Einkaufsmöglichkeiten für den täglichen Bedarf sowie Freizeitmöglichkeiten sind in der Nähe vorhanden und tragen zu einem hohen Lebensstandard bei. Der Waldrand ist nur wenige hundert Meter entfernt.
Grundriss
Erdgeschosse EG 1
>
>
Obergeschoss OG1
>
>
Obergeschoss OG2
>
>
Lageplan Haus 1 und Garten
>
>
Adresse
Die alte Heckenteilung 26a, 64683 Einhausen
Interessante Orte
Preis- und Lageinformationen
Preistrend für Bestandsimmobilien in Einhausen