https://www.empelder-hof.de
Alle Wohnungen erhalten eine Fußbodenheizung (Wohn- und Nebenräume). Zusätzliche Einzelraumthermostate zur individuellen Bedienung der einzelnen Räume (Außer HWRund Flur).
Bodenbeläge: Alle Räume mit Ausnahme der Bäder, Hauswirtschaftsräume und Wohnungsfluren erhalten PVC- Bodenbeläge in Optik Holz oder Fliese.
Bäder und WC erhalten Fliesen aus Feinsteinzeug in farblicher Abstimmung mit den Wandfliesen. Hauswirtschafts- bzw. Abstellräume in den Wohnungen erhalten den gleichen Fliesenbelag.
Die Zimmertüren werden ausgeführt als efalzte Holztürblätter, Oberfläche lackiert weiß, Holzumfassungszargen in weiß.
Die Innenwände der Wohnung werden verputzt mit Gipsputz. Die weitere Bekleidung mit Malervlies (Qualitätsstufe Q3) oder Vliestapeten beklebt und weiß gestrichen. Trockenbauwände gespachtelt und weiß gestrichen.
Vom 1.OG bis 3.OG werden Balkone gebaut.Das Staffelgeschoss erhält jeweils eine Dachterrasse mit begrünter Flachdachabdichtung.
Fenster und Fenstertüren als Energiesparfenster für hohe Ansprüche aus Kunststoff mit 6-Kammer-Profilsystem, 3 Dichtungsebenen und 3-facher Wärmeschutzverglasung. Farbtöne weiß innenseitig und grau auf der Außenseite. Alle Fensterelemente zwischen dem EG und dem 3.OG erhalten motorisch betriebene Rollläden.
Waschmaschinenanschluss: Ein Waschmaschinenunterputztraps ist geplant in den HW-Räumen.
Es ist ein Fahrstuhl vorhanden vom Erdgeschoss bis in die obersten Wohngeschosse (4.OG).
Lüftungsanlage: Einrohrentlüftungssystem im Bad und HWR mit Raumluftsteuerung (automatisch und manuell) und passives Lüftungssystem in den Fensterrahmen (Fensterspaltlüfter) sorgen für Nachlauf der Frischluft.
Abstellmöglichkeiten: Einige Wohnungen (ohne Abstellmöglichkeit in der Wohnung) erhalten einen abschließbaren Abstellraum im Dachgeschoss.
Einbauküchen. Die Wohnungen können vermieterseits mit Einbauküchen ausgestattet werden. Diese kosten zwischen 40 und 53 Euro Mehrmiete - je nach Wohnung und Ausstattung.
Gerne kann auch ein Außenstellplatz für 35 € mit angemietet werden.
Neubau Empelder Hof! 2 Zimmerwohnung, Balkon
Ronnenberger Straße 16 c,
30952 Ronnenberg
Auf Karte anzeigen
Infos
| Wohnungskategorie | Etagenwohnung |
|---|---|
| Etage | 1 von 4 |
| Wohnfläche ca. | 57 m2 |
| Bezugsfrei ab | 01.05.2026 |
| Zimmer | 2 |
| Schlafzimmer | 1 |
| Badezimmer | 1 |
| Garage/Stellplatz | Außenstellplatz |
| Anzahl Garage/Stellplatz | 1 |
Kosten
| Kaltmiete |
848 € |
|---|---|
| Nebenkosten | + 197 € |
| Heizkosten | in Nebenkosten enthalten |
| Gesamtmiete | 1.045 € |
| Miete für Garage/Stellplatz | 35 € |
| Kaution o. Genossenschaftsanteile | 2544 |
Weiter mieten oder doch kaufen?
Wer in Miete wohnt, überweist dem Vermieter im Laufe der Jahre hohe Summen, die sich
auch in die eigenen vier Wände investieren lassen könnten.
Bausubstanz & Energieausweis
| Baujahr | 2025 |
|---|---|
| Letzte Sanierung | 2025 |
| Objektzustand | Erstbezug |
| Qualität der Austattung | Gehoben |
| Wesentliche Energieträger | Umweltwärme |
| Energieausweis | liegt vor |
| Energieausweistyp | Bedarfsausweis |
| Energieverbrauchskennwert | 9,2 kWh/(m²*a) |
| Energieeffizienzklasse | A+ |
9,2
kWh/(m²*a)
Energieeffizienzklasse A+
- A+
- A
- B
- C
- D
- E
- F
- G
- H
- 0
- 25
- 50
- 75
- 100
- 125
- 150
- 175
- 200
- 225
- >250
Beschreibung des Objekts
Ausstattung
Wir stellen aus Dezember aktuelle Bilder einer Musterwohnung zur Verfügung, Aus diesen Bildern ist die Bauausführung zu erkennen.
Lage
Ronnenberg ist eine Stadt in der Region Hannover und hat eine Anwohnerzahl von etwa 24.000 Einwohnern. Die Stadt liegt südwestlich von Hannover und erstreckt sich über eine hügelige Landschaft mit Wäldern, Feldern und kleinen Dörfern. In den letzten Jahren konnte die Bevölkerungszahl der Stadt kontinuierlich wachsen, vor allem ufgrund neuer Wohngebiete und einer attraktiven Lage im Speckgürtel von Hannover.Durch die steigende Anzahl an Einwohnern investiert die Stadt auch verstärkt in Infrastrukturmaßnahmen wie den Ausbau von Schulen, Kindergärten und öffentlichen Einrichtungen, um den Bedürfnissen der wachsenden Bevölkerung gerecht zu werden.
In Ronnenberg gibt es gute öffentliche Verbindungen nach Hannover und in die umliegenden Städte. Die Stadt ist an das regionale Nahverkehrsnetz angeschlossen und verfügt über Buslinien, die regelmäßig nach Hannover fahren. Die Fahrzeit beträgt je nach Verkehrslage etwa 20-30 Minuten. Zusätzlich gibt es auch eine S-Bahn-Verbindung von Ronnenberg nach Hannover. Die S-Bahn-Linie S1 verkehrt regelmäßig und bietet eine schnelle und bequeme Möglichkeit, um in die Landeshauptstadt zu gelangen. Die Fahrt dauert etwa 15-20 Minuten.
Ronnenberg ist bekannt für seine malerische Umgebung und bietet zahlreiche Möglichkeiten für Outdoor-Aktivitäten wie Wandern, Radfahren und Spazierengehen. Die Stadt verfügt auch über einige historische Sehenswürdigkeiten, darunter die Burg Ronnenberg und die St. Johannes Kirche. In Ronnenberg finden Sie auch verschiedene Geschäfte, Restaurants und Cafés die zum Verweilen einladen. Ein Ärztehaus ist ebenfalls in weniger als 5 Minuten von der Wohnanlage zu Fuß erreichbar. Insgesamt ist Ronnenberg ein ruhiger und idyllischer Ort, am Rande von Hannover für jede Generation gut geeignet.
Sonstige Angaben
Alle Angaben beruhen auf Informationen des Eigentümers und sind freibleibend, unverbindlich und veränderbar.
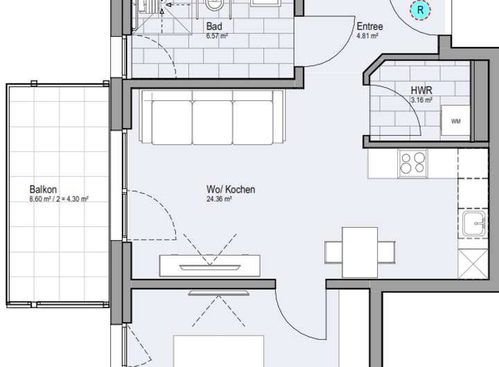
Grundriss
Haus 16 c WE 7
>
>
Adresse
Ronnenberger Straße 16 c, 30952 Ronnenberg
Interessante Orte
Preis- und Lageinformationen
Preistrend für Bestandsimmobilien in Ronnenberg